绘制机械CAD图纸中包含有大量的产品零部件,传统的明细表(BOM)编辑方式需手动绘制表格填写数据,且后期再次编辑时数据查找非常麻烦,耗费大量时间。中望CAD机械版2015的明细表功能可以根据已标注好的序号快速的生成明细表,而且明细表采用了新实体技术,支持通过双击进行编辑,使得明细表的编辑工作变得简单、方便,从而提高了绘图效率。
步骤一:
在中望CAD机械版2015中添加完图幅后,在程序里面输入命令“XH” 就会弹出下图所示的对话框。

图/中望CAD机械版序号设置对话框
设计师在序号类型中可以根据实际需求调整序号内容、显示及其他选项。当然也可以设置引出序号和对应的引线类型。
步骤二:
在“引出序号 主图幅”界面点击【确定】按钮开始序号标注。如下图所示,选定序号标注的位置后单击鼠标左键弹出编辑框。

图/确定序号标注的具体位置

图/中望CAD机械版序号编辑对话框
填写图号、名称、数量和材料等对应数据后点击【确定】,即可完成序号标注。
步骤三:
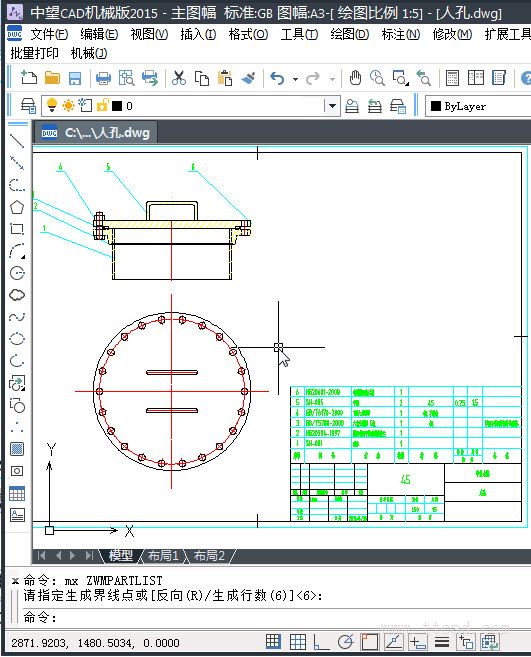
将所有零件标注序号后输入命令“MX”即可自动生成完整详细的明细表。

图/中望CAD机械版自动生成明细表
如果遇到同一零件重复标记的情况,设计师可以在图纸中找到重复的序号直接删除即可,中望CAD机械版会自动调整标注的序号顺序;修改序号标注的内容时,明细表也会自动同步更新。

图/智能的序号/明细表编辑功能
通过中望CAD机械版的序号/明细表(BOM)生成的功能,原本需要手动完成的编辑工作变得简单,设计效率也得到大幅度提升。
免责声明:
1;所有标注为智造资料网zl.fbzzw.cn的内容均为本站所有,版权均属本站所有,若您需要引用、转载,必须注明来源及原文链接即可,如涉及大面积转载,请来信告知,获取《授权协议》。
2;本网站图片,文字之类版权申明,因为网站可以由注册用户自行上传图片或文字,本网站无法鉴别所上传图片或文字的知识版权,如果侵犯,请及时通知我们,本网站将在第一时间及时删除,相关侵权责任均由相应上传用户自行承担。
[complaint:内容投诉]
智造资料网打造智能制造3D图纸下载,在线视频,软件下载,在线问答综合平台 » 中望CAD序号/明细表自动生成及编辑实战技巧(图文教程)
1;所有标注为智造资料网zl.fbzzw.cn的内容均为本站所有,版权均属本站所有,若您需要引用、转载,必须注明来源及原文链接即可,如涉及大面积转载,请来信告知,获取《授权协议》。
2;本网站图片,文字之类版权申明,因为网站可以由注册用户自行上传图片或文字,本网站无法鉴别所上传图片或文字的知识版权,如果侵犯,请及时通知我们,本网站将在第一时间及时删除,相关侵权责任均由相应上传用户自行承担。
[complaint:内容投诉]
智造资料网打造智能制造3D图纸下载,在线视频,软件下载,在线问答综合平台 » 中望CAD序号/明细表自动生成及编辑实战技巧(图文教程)

