暖通设计人员在进行建筑空调水系统设计过程中, 经常需要在图纸中布置各类设备,最常见的设备如风机盘管,应用CAD功能布置的风机盘管多为图块形式,难以具备详细的设备信息,更难以实现设备与配套管线的智能连接于联动,浩辰暖通CAD软件很好的解决了传统图块无法具备以上功能的问题。
1.支持用户自定义的设备接口
希望水系统设备能够自动连接配套管线,需要对设备图块进行连接定义,运行浩辰暖通软件“智能水路——风机盘管布置”命令,在绘图区域任意布置风机盘管图块。

运行“智能水路——风机盘管连接定义”命令,按CAD命令行提示选择需要定义的设备,在弹出的窗口中依次确认各类管线的连接点位置、引出管径、最小长度……,该处不仅可以定义设备的水管接口,同时可以定义风管接口,二者操作模式相同。

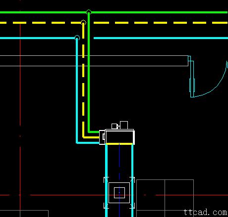
至此,用户自定义的设备接口记录入软件当中,不仅该图块可实现管线的自动引出和智能连接,同型号设备均可实现此类功能,通过“风机盘管连接干管”即可达到下图效果。

2.设备信息的批量更新
风机盘管的全部设备信息均取自对应厂商提供的设备选型手册,如需更新,可通过“智能水路——风机盘管编辑”功能进行数据编辑,用户也可以通过该命令进行数据库的扩充,将本地图块录入至软件中,方便调用。

另外,也可以通过“智能水路——风机盘管负荷分配”实现图面所有设备的一次性数据更新,此处可将负荷计算的房间冷热负荷批量分配到各房间的设备上,以便精确计算各设备所需的供水量,实现空调水系统的精确分析。

免责声明:
1;所有标注为智造资料网zl.fbzzw.cn的内容均为本站所有,版权均属本站所有,若您需要引用、转载,必须注明来源及原文链接即可,如涉及大面积转载,请来信告知,获取《授权协议》。
2;本网站图片,文字之类版权申明,因为网站可以由注册用户自行上传图片或文字,本网站无法鉴别所上传图片或文字的知识版权,如果侵犯,请及时通知我们,本网站将在第一时间及时删除,相关侵权责任均由相应上传用户自行承担。
[complaint:内容投诉]
智造资料网打造智能制造3D图纸下载,在线视频,软件下载,在线问答综合平台 » 浩辰CAD暖通软件--智能的水系统设备(图文教程)
1;所有标注为智造资料网zl.fbzzw.cn的内容均为本站所有,版权均属本站所有,若您需要引用、转载,必须注明来源及原文链接即可,如涉及大面积转载,请来信告知,获取《授权协议》。
2;本网站图片,文字之类版权申明,因为网站可以由注册用户自行上传图片或文字,本网站无法鉴别所上传图片或文字的知识版权,如果侵犯,请及时通知我们,本网站将在第一时间及时删除,相关侵权责任均由相应上传用户自行承担。
[complaint:内容投诉]
智造资料网打造智能制造3D图纸下载,在线视频,软件下载,在线问答综合平台 » 浩辰CAD暖通软件--智能的水系统设备(图文教程)

