凸模是模具中用于成型制品内表面的零件,也是冲压模具工作时必不可少的配件,应用场景较多。为了帮助大家掌握其绘制方法,本篇CAD教程将简单介绍如何使用浩辰CAD机械2012软件快速绘制有压边圈的首次拉深模具凸模。
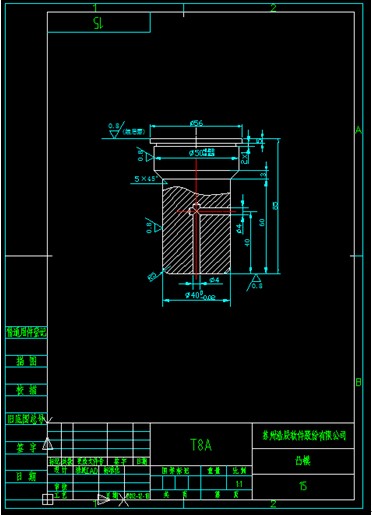
凸模根据材质、形状、用途的不同可以分为引导凸模、子母凸模、抽牙凸模、检知梢、六角凸模、椭圆凸模、成型凸模、扇型凸模、异形凸模、高速钢凸模、钨钢凸模等。安装在压力机上的模具装配了凸模之后直接与材料(金属或非金属)接触,使材料发生分离或塑性变形,从而获得所需的零件。冲压件的质量、生产效率以及生产成本等,与模具设计和模具配件的精密度质量等有着直接的关系(如图1)。

图1
当使用浩辰CAD机械2012绘制基准和轮廓时,相贯线功能是一大亮点——浩辰CAD机械2012提供了强大的相贯线绘制功能,可智能化的生产相贯线。
要使用此功能,我们可以依次点击【浩辰机械】—【构造工具】—【相贯线】。这时候命令行会提示我们选择锥(柱)体的相应母线。然后,我们根据该提示选择图1中两条水平的线段,再选择垂直的两条线段。当四条线段选择线段之后,相贯线就生成了。这样我们就可以在最终绘制的凸模中看到自己想要的效果。

图2
绘制相贯线仅是凸模绘制的一小步,在接下来的教程中,我们将陆续为大家带来其它部分的绘制步骤,希望大家继续关注。
免责声明:
1;所有标注为智造资料网zl.fbzzw.cn的内容均为本站所有,版权均属本站所有,若您需要引用、转载,必须注明来源及原文链接即可,如涉及大面积转载,请来信告知,获取《授权协议》。
2;本网站图片,文字之类版权申明,因为网站可以由注册用户自行上传图片或文字,本网站无法鉴别所上传图片或文字的知识版权,如果侵犯,请及时通知我们,本网站将在第一时间及时删除,相关侵权责任均由相应上传用户自行承担。
[complaint:内容投诉]
智造资料网打造智能制造3D图纸下载,在线视频,软件下载,在线问答综合平台 » 浩辰教程机械2012:(70)首次拉深模具、凸模绘制(图文教程)
1;所有标注为智造资料网zl.fbzzw.cn的内容均为本站所有,版权均属本站所有,若您需要引用、转载,必须注明来源及原文链接即可,如涉及大面积转载,请来信告知,获取《授权协议》。
2;本网站图片,文字之类版权申明,因为网站可以由注册用户自行上传图片或文字,本网站无法鉴别所上传图片或文字的知识版权,如果侵犯,请及时通知我们,本网站将在第一时间及时删除,相关侵权责任均由相应上传用户自行承担。
[complaint:内容投诉]
智造资料网打造智能制造3D图纸下载,在线视频,软件下载,在线问答综合平台 » 浩辰教程机械2012:(70)首次拉深模具、凸模绘制(图文教程)

