浩辰教程机械2012:(34)减速机箱体设计(图文教程)

  一般来说,减速机的箱体设计是在完成了减速机的内部传动零件设计和计算之后进行的。因为我们需要根据减速机齿轮大小、传动轴的扭力大小等数据计算出箱体的大小、尺寸等数据。下面,我们就来看一下如何在减速机基础上完成减速机箱体的设计(使用软件为浩辰CAD机械2012,读者可以点击浩辰CAD官网下载)。

  在设计箱体之前,我们首先要做减速机的设计,简单介绍如下:

  1、传动方案的拟定

  我们可以以原理简图的形式将传动方案表达出来,然后按照需求编写工作拉力、工作速度、卷筒直径等数据。然后,我们可以加入工作条件、技术条件等设计要求。

  2、按照实际设计需要进行相应的计算和一些零件的选择,大致可分为电动机的选择(需决定电动机类型、电动机功率、电动机转速),计算总传动比及分配各级的传动比,计算运动参数及动力参数,计算传动零件的设计,计算齿轮传动的设计等。

  为了方面设计师设计,浩辰CAD机械软件在图库中预置了减速机的标准件图库,可供我们直接调用(如图1)。

浩辰教程机械2012:(34)减速机箱体设计(图文教程),CAD,教程,第1张浩辰教程机械2012:(34)减速机箱体设计(图文教程),CAD机械,教程,第2张 

图1

  然后,我们就可以正式开始减速器箱体的设计了。

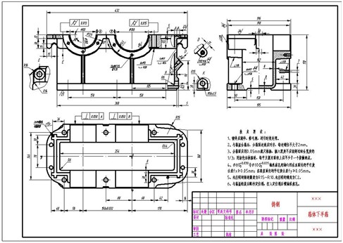
  一般的箱体设计为铸铁形式,包含的元素分为底座和上盖。我们以复杂的上盖为例,里面细分包括了主体、轴承座、螺丝固定孔等,一般以三个视图加局部视图的形式进行表达。

  主体绘制完成之后,我们就可以进行标注了。除基本的尺寸标注外,还包括了一些形位公差标注、粗糙度、基准标注、螺纹标注。在标注方面,浩辰CAD机械软件还提供了智能标注、以及粗糙度、形位公差、基准、焊接符号等直接标注(如图2)。

  浩辰教程机械2012:(34)减速机箱体设计(图文教程),CAD机械,教程,第3张

  图2

  然后,我们就可以编写技术要求并填写明细表和标题栏了。完成之后进行检查审核并修改错误,我们的CAD设计图就完成了(如图3)。

  浩辰教程机械2012:(34)减速机箱体设计(图文教程),CAD机械,教程,第4张

  图3

免责声明:
1;所有标注为智造资料网zl.fbzzw.cn的内容均为本站所有,版权均属本站所有,若您需要引用、转载,必须注明来源及原文链接即可,如涉及大面积转载,请来信告知,获取《授权协议》。
2;本网站图片,文字之类版权申明,因为网站可以由注册用户自行上传图片或文字,本网站无法鉴别所上传图片或文字的知识版权,如果侵犯,请及时通知我们,本网站将在第一时间及时删除,相关侵权责任均由相应上传用户自行承担。
[complaint:内容投诉]
智造资料网打造智能制造3D图纸下载,在线视频,软件下载,在线问答综合平台 » 浩辰教程机械2012:(34)减速机箱体设计(图文教程)