在机械设计中,做轴类零件的投影图时是让很多设计师头疼的事。通常,我们可以使用同心圆来解决问题,但使用同心圆作图需要反复的调整捕捉点的位置,显得非常的麻烦。
为了解决此问题,浩辰CAD机械软件设置了孔轴投影功能,使得对轴类零件进行投影的工作变得简单方便,下面请看我们的CAD教程。
以下图的齿轮为例(如图1),如果我们使用同心圆功能绘制左视图,不但捕捉特征点时很麻烦,在做好左视图后还需要调整左视图的位置(如图1)。

图1
我们再试一下孔轴投影功能,要使用此功能,可以依次点击浩辰CAD机械2012菜单栏中的【辅助工具】—【创建视图】—【孔轴投影】,软件会弹出对话框(如图2)。

图2
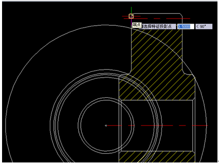
点击孔轴投影功能,这时命令行会提示选择轴线。按照命令行的提示点击需要投影零件的轴线后,命令行又会提示我们选择特征投影点,我们每选中一个特征投影点时就会同时绘制出相应的圆(如图3)。
图3
所有的投影点都选择完后,点击回车确定。然后按照命令行中的提示“指定第二个点或<使用第一个点作为位移>”。当我们移动鼠标的时候会发现制作好的投影图会随着鼠标移动。在合适的位置上点击下鼠标左键,左视图就绘制完毕了(如图4)。
图4
浩辰CAD机械软件的【孔轴投影】功能在很大的程度上提高了我们的绘图效率,熟练掌握此功能后,绘制轴类零件的投影图就不再是一件麻烦的事了。
相关阅读:
免责声明:
1;所有标注为智造资料网zl.fbzzw.cn的内容均为本站所有,版权均属本站所有,若您需要引用、转载,必须注明来源及原文链接即可,如涉及大面积转载,请来信告知,获取《授权协议》。
2;本网站图片,文字之类版权申明,因为网站可以由注册用户自行上传图片或文字,本网站无法鉴别所上传图片或文字的知识版权,如果侵犯,请及时通知我们,本网站将在第一时间及时删除,相关侵权责任均由相应上传用户自行承担。
[complaint:内容投诉]
智造资料网打造智能制造3D图纸下载,在线视频,软件下载,在线问答综合平台 » 浩辰教程机械2012:(17)孔轴投影(图文教程)
1;所有标注为智造资料网zl.fbzzw.cn的内容均为本站所有,版权均属本站所有,若您需要引用、转载,必须注明来源及原文链接即可,如涉及大面积转载,请来信告知,获取《授权协议》。
2;本网站图片,文字之类版权申明,因为网站可以由注册用户自行上传图片或文字,本网站无法鉴别所上传图片或文字的知识版权,如果侵犯,请及时通知我们,本网站将在第一时间及时删除,相关侵权责任均由相应上传用户自行承担。
[complaint:内容投诉]
智造资料网打造智能制造3D图纸下载,在线视频,软件下载,在线问答综合平台 » 浩辰教程机械2012:(17)孔轴投影(图文教程)

