随着经济的发展,参数化设计在工业设计中运用的越来越多。在以前,这种功能为国外软件所独有,后来,一些优秀的国产CAD软件也渐渐具备了参数化设计功能。其中,浩辰CAD机械软件根据画法几何原理,采用参数化和变量化技术开发,把一个对象拆分成点和线的关系,使其相互关联,通过运算产生不同的对象。其在算法完全符合国内机械行业标准,具备极高的实用性。
下面我以浩辰CAD机械软件为例,浅析参数化设计:
在常规的工程图中,尺寸标注是常值不能进行尺寸驱动,如果想要进行尺寸驱动,首先要将常规图形(也称草图)的尺寸参数化。这种尺寸驱动的过程便是浩辰CAD机械软件参数化过程的核心,它可以让图形自由的随着尺寸值的更改而变化,形成最终图形。
操作步骤举例:
插入一个标准螺栓:

图1
然后使用参数化设计中的参数化处理,选中这个螺栓和标注。

图2
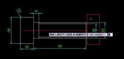
在选择完基点之后,再使用参数化驱动工具,选择您想修改的位置的标注,选取标注后会提示:

图3
请输入新的尺寸值或测量新尺寸<>:这时我输入110回车。得到结果如下

图4
浩辰CAD尺寸驱动不仅可以这样直观的修改常量,还可以把已知常量通过表达式的形式进行计算。

图5
尺寸驱动有广泛的应用前景,能给使用者带来明显的效益:
1.在方案设计阶段(即“概念”设计阶段),设计师关心的是设计对象的形状,而不是约束图形的具体尺寸值。随着设计的进展,尺寸值才能在逐步修改中确定。虽然现在用CAD软件进行修改比手工方式方便很多,但尺寸驱动对图纸的修改仍然是一个自动化的过程。
2.利用尺寸驱动可以编制专业应用软件:尺寸驱动作为图形绘制模块,加上专用计算模块就可以实现某一产品的自动设计。
3.可以作为三维特征参数化造型的二维草绘器。
4.可以进行系列化产品的设计:不同的行业都有自己的非标准常用图形或结构,任何CAD软件都不能将这些元素全部包括在内。用户必须通过非编程手段建立大量这样的基于参数化的图形,才能在设计工作中大幅度提高设计效率和质量。浩辰机械中的“参数化设计”就能满足这样的需求。
5.建立各种标准的参数化图形库:标准件与“系列产品设计”不同,它不仅要达到参数化的要求,使用尺寸约束图形。还要有标准数据库,让尺寸变量之间的约束关系满足特定标准件的使用要求。
浩辰CAD机械 参数化设计系统是一个全参数化、变量化的系统,它充分考虑了工程设计过程中的各种需求,能支持从概念设计到结构设计,从零件设计到部件设计的全过程,适用于产品的草图设计、修改设计及系列化产品的设计和管理,该系统的开发成功大大增强了浩辰CAD在工程设计方面的能力,也有效的提高了用户的设计效率。
1;所有标注为智造资料网zl.fbzzw.cn的内容均为本站所有,版权均属本站所有,若您需要引用、转载,必须注明来源及原文链接即可,如涉及大面积转载,请来信告知,获取《授权协议》。
2;本网站图片,文字之类版权申明,因为网站可以由注册用户自行上传图片或文字,本网站无法鉴别所上传图片或文字的知识版权,如果侵犯,请及时通知我们,本网站将在第一时间及时删除,相关侵权责任均由相应上传用户自行承担。
[complaint:内容投诉]
智造资料网打造智能制造3D图纸下载,在线视频,软件下载,在线问答综合平台 » 浩辰CAD教程_参数化设计(图文教程)

