9.14 后传动箱
一、实例分析
在长方体的四个面创建4个圆台,要注意圆台所对应的面,不能混。
二、学习目标
在学习本实例时,注意以下要点:
掌握圆台创建的方法;
掌握切除特征的基本设计方法和技巧。
掌握倒圆角特征的基本设计方法和技巧。
三、设计过程
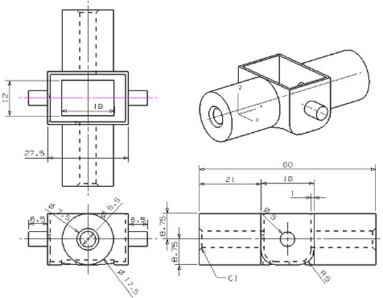
后传动箱的结构图如图9-144所示,绘制步骤如下:

图9-144 后传动箱结构图
1. 选择“文件”|“新建”命令,新建名称为houchuandongxiang.prt的部件文档,再选择“起始”|“建模”命令打开建模功能;

(a) (b)
图9-145 绘制长方体
2.单击“长方体”按钮
,在“长方体”参数对话框内输入“长度XC”为“17.5”,“宽度YC”为“27.5”,“高度ZC”为“18”,如图9-145(a)所示,单击“确定”按钮,得到长方体如图9-145(b)所示;
3. 单击“外壳”按钮
,选择“18*27.5”面,设置“厚度”为“1”,效果如图9-146所示;

图9-146 抽壳操作 图9-147 腔体操作
4.单击“腔体”按钮
,选择内底面作为放置面,选择长为“27.5”的边作为水平参考,在“腔体”
参数对话框内输入“长度”为“18”,“宽度”为“12”,“深度”为“3”,定位在底面中心,如图9-147所示;
5.单击“圆台”按钮
,在弹出的“圆台”参数对话框内输入“直径”为“17.5”,“高度”为“21”选择“17.5*27.5”的平面作为放置面,定位在该面的中心,如图9-148(a)所示,同样在另一侧绘制同样的圆台,如图9-148(b)所示;

(a) (b)
图9-148 绘制圆台1
6.重复圆台操作,在弹出的“圆台”参数对话框内输入“直径”为“5”,“高度”为“6.5”选择“17.5*18”的平面作为放置面,定位在该面的中心,如图9-149(a)所示,同样在另一侧绘制同样的圆台,如图9-149(b)所示;
7.单击“边倒圆”按钮
,对图9-150(a)所示位置作R5的圆角,单击“确定”按钮,效果如图9-150(b)所示;

(a) (b)
图9-149绘制圆台2

(a) (b)
图9-150 边倒圆
8.单击“孔”按钮
,选择φ17.5圆台的端面作为放置面,在“孔”参数对话框内输入“直径”为“5”,“深度”为“120”,定位在圆弧中心,效果如图9-151所示;

图9-151 创建孔 图9-152 倒斜角
9.单击“”
对圆台上孔作1的倒角,如图9-152所示;
10.保存,见光盘part/9/houchuandongxiang.pat
该文章所属专题:UG卡丁车设计实例教程
相关阅读:
1;所有标注为智造资料网zl.fbzzw.cn的内容均为本站所有,版权均属本站所有,若您需要引用、转载,必须注明来源及原文链接即可,如涉及大面积转载,请来信告知,获取《授权协议》。
2;本网站图片,文字之类版权申明,因为网站可以由注册用户自行上传图片或文字,本网站无法鉴别所上传图片或文字的知识版权,如果侵犯,请及时通知我们,本网站将在第一时间及时删除,相关侵权责任均由相应上传用户自行承担。
[complaint:内容投诉]
智造资料网打造智能制造3D图纸下载,在线视频,软件下载,在线问答综合平台 » UG卡丁车设计实例教程(十四)_后传动箱(图文教程)

