Pro/E工程图教程-(17)接头座工程图(图文教程)

导入视图

(1)点击工具栏中【新建】Pro/E工程图教程-(17)接头座工程图(图文教程),Pro/E工程图教程-(17)接头座工程图,教程,第1张按钮,弹出如图1所示的对话框,选择“绘图”按钮,创建模型youguan的工程图并调如gb_a4的模板,如图2所示。

Pro/E工程图教程-(17)接头座工程图(图文教程),Pro/E工程图教程-(17)接头座工程图,教程,第2张

图1 接头座的二维设置

Pro/E工程图教程-(17)接头座工程图(图文教程),Pro/E工程图教程-(17)接头座工程图,教程,第3张

图2 模版的选择

(2) 点击下拉菜单【插入】→【绘图视图】→【一般…】,弹出如图3所示的“绘图视图”对话框,“视图类型”选项中“模型视图名”选为FRONT面;“可见区域”中选中默认设置;在“比例”选项卡中输入合适的比例值;“剖面”中选择“2D截面”添加截面A,如图4所示;然后依次完成“视图状态、视图显示、原点、对齐”等选项卡的设置,从而完成接头座全剖视图的绘制。

Pro/E工程图教程-(17)接头座工程图(图文教程),Pro/E工程图教程-(17)接头座工程图,教程,第4张

图3 视图类型的选择

Pro/E工程图教程-(17)接头座工程图(图文教程),Pro/E工程图教程-(17)接头座工程图,教程,第5张

图4 剖面的设置

该文章所属专题:Pro/E工程图教程

然后依次完成“视图状态、视图显示、原点、对齐”等选项卡的设置,从而完成接头座全剖视图的绘制。单击“确定”按钮,出现如图5的剖视图:

 

Pro/E工程图教程-(17)接头座工程图(图文教程),Pro/E工程图教程-(17)接头座工程图,教程,第6张

图5 剖面的视图

标注

(3) 点击工具栏的“标注”按钮Pro/E工程图教程-(17)接头座工程图(图文教程),Pro/E工程图教程-(17)接头座工程图,教程,第7张分别完成接头座长度、宽度和直径的标注,图下图6所示,类似可标出接头座的其他长度。

Pro/E工程图教程-(17)接头座工程图(图文教程),Pro/E工程图教程-(17)接头座工程图,教程,第8张

图6 尺寸的标注

(4) 点击下拉菜单【插入】→【绘图符号】)→【定制…】弹出定制绘图符号对话框如下图7 所示,依次对“定制绘图符号”对话框中的“一般,分组,可变文本”选项卡进行设置,输入对应粗糙度值3.2,完成粗糙度的标注,如下图8所示:

Pro/E工程图教程-(17)接头座工程图(图文教程),Pro/E工程图教程-(17)接头座工程图,教程,第9张

图7  表面粗糙度的符号设置

Pro/E工程图教程-(17)接头座工程图(图文教程),Pro/E工程图教程-(17)接头座工程图,教程,第10张

图8 符号的建立

(5) 点击工具栏中“注释”按钮Pro/E工程图教程-(17)接头座工程图(图文教程),Pro/E工程图教程-(17)接头座工程图,教程,第11张,弹出“菜单管理器”从而完成技术要求和零件菜单栏的填写,如图9所示:

Pro/E工程图教程-(17)接头座工程图(图文教程),Pro/E工程图教程-(17)接头座工程图,教程,第12张 Pro/E工程图教程-(17)接头座工程图(图文教程),Pro/E工程图教程-(17)接头座工程图,教程,第13张

图9 技术要求的设置

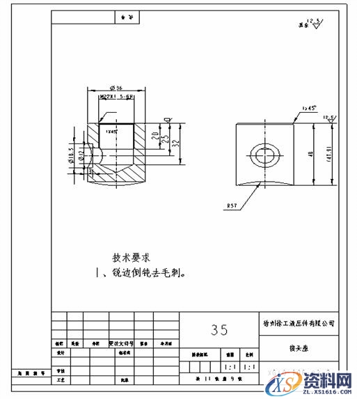
(6) 通过以上标注方式,最终完成接头座的工程图,如下图10所示:

Pro/E工程图教程-(17)接头座工程图(图文教程),Pro/E工程图教程-(17)接头座工程图,教程,第14张

图10 接头座的工程图

该文章所属专题:Pro/E工程图教程

免责声明:
1;所有标注为智造资料网zl.fbzzw.cn的内容均为本站所有,版权均属本站所有,若您需要引用、转载,必须注明来源及原文链接即可,如涉及大面积转载,请来信告知,获取《授权协议》。
2;本网站图片,文字之类版权申明,因为网站可以由注册用户自行上传图片或文字,本网站无法鉴别所上传图片或文字的知识版权,如果侵犯,请及时通知我们,本网站将在第一时间及时删除,相关侵权责任均由相应上传用户自行承担。
[complaint:内容投诉]
智造资料网打造智能制造3D图纸下载,在线视频,软件下载,在线问答综合平台 » Pro/E工程图教程-(17)接头座工程图(图文教程)