2.1 导入视图
(1)点击工具栏中【新建】按钮
,弹出如图1所示的“新建”对话框,选择“绘图”按钮,创建模型youguan的工程图;选用gb_a4模板,调入如图2所示的gb_a4图框。

图1 “新建”对话框

图2 GB_A4图框样式
(2)选择下拉菜单【插入】→【绘图视图】→【一般…】,弹出如图3所示的“绘图视图”对话框,插入油管的主视图。
a) 在“视图类型”选项卡中“模型视图名”选为TOP面;
b) “可见区域”中选中默认设置;
c) 在“比例”选项卡中的
后输入0.26的比例值;
d) “剖面”选项中选择“2D截面”,然后单击
按钮;
设置为“全部”;在
下拉列表中选取剖截面L,如图4所示,最后单击“确定”按钮;
e) 完成“剖面”的设置后,选择“视图显示”选项卡,如图5所示,选择【视图显示】→【显示线型】→【无隐藏线】→【相切边显示样式】→【无】,点击应用,完成设置。
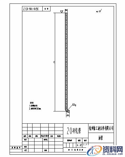
f) 最后完成“视图显示、原点、对齐”选项卡的设置,从而完成油管的全剖视图的绘制,如图6所示。

图3 一般视图“绘图视图”对话框

图4 “绘图视图”对话框中“剖面“的选项卡设置

图5 选择视图的显示类型

图6 油管的全剖视图
该文章所属专题:Pro/E工程图教程
2.2 标注
(1)点击工具栏中的标注按钮
,弹出下图7所示的标注“菜单管理器”,通过选择所要标注的边、轴线等图元,完成油管长度和宽度方向的尺寸标注;
注:对于油管直径的标注,只需双击已标注的尺寸文本,通过修改如图8所示的“尺寸属性”对话框中的选项卡“属性、尺寸文本、尺寸样式”等的参数设置,从而完成油管直径的标注,如下图9所示。

图7 “标注”菜单管理器

(a)“尺寸属性”对话框中的“属性”选项卡

(b)“尺寸属性”对话框中的“尺寸文本”选项卡

图8 “尺寸属性”对话框
(c)“尺寸属性”对话框中的“文本样式”选项卡


(a)长度的标注 (b)直径的标注
图9 油管长度和直径的标注
(2)选择菜单【插入】→【绘图符号】→【定制】命令。系统弹出下图10所示的“定制绘图符号”对话框。
a) 在“一般”选项卡中“类型”下拉菜单处选择“在图元上….”;
b) “分组”选项卡中MECHINED中勾选ROUGHNESS选项;
c) “可变文本”选项卡中在aver_roughness后的方框中输入粗糙度值;
d) 单击“确定”按钮完成如图11所示的粗糙度符号的标注。
图10 “定制绘图符号“对话框

图11 油管粗糙度的标注
(3)点击工具栏中“注释”按钮
,弹出“菜单管理器”从而完成技术要求和零件菜单栏的填写,如图12所示:

(a)“注释”菜单管理器 (b) 技术要求的标注
图12 “注释”的标注
(4)通过以上标注方式,最终完成油管的工程图,如下图13所示:

图13 油管的工程图
该文章所属专题:Pro/E工程图教程
1;所有标注为智造资料网zl.fbzzw.cn的内容均为本站所有,版权均属本站所有,若您需要引用、转载,必须注明来源及原文链接即可,如涉及大面积转载,请来信告知,获取《授权协议》。
2;本网站图片,文字之类版权申明,因为网站可以由注册用户自行上传图片或文字,本网站无法鉴别所上传图片或文字的知识版权,如果侵犯,请及时通知我们,本网站将在第一时间及时删除,相关侵权责任均由相应上传用户自行承担。
[complaint:内容投诉]
智造资料网打造智能制造3D图纸下载,在线视频,软件下载,在线问答综合平台 » Pro/E工程图教程-(13)油管工程图(图文教程)

