前 言
专用机床或自动化加工设备实现零件多工序加工,通常采用回转工作台(即转台)结构形式,转台上根据加工工序的要求布置多个夹具,转台每个工序夹具外侧的固定工作台上相应布置有零件和各工序的加工设备。一个工序加工完成后,夹具及零件跟随转台转至下一个工序,转台最后一个工位是装卸工位(取下加工好的零件,同时放上未加工零件)。
对于特别的加工工序要求,例如回转体零件磨削、外表抛光处理,零件需要在夹具的带动下旋转,这样零件及夹具除了跟随转台转动外(公转)外还有自转。
图1 圆台多工位机床
一、一种多工位自旋转夹具控制装置
1.结构介绍
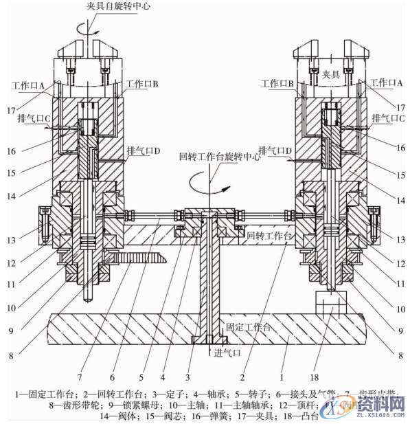
多工位自旋转夹具控制装置构如图2所示。其中左边视图表示转台上某一工位夹具处于夹紧、自旋转的工作状态,右边视图表示某一工位夹具处于停止自转、夹具松开的装置卸工位状态。
如图2所示:定子由螺钉固定在固定工作台上,转子由螺钉固定在回转工作台上,定子和转子之间有轴承,中空的定子下方连接总进气管,中空的转子根据转台夹具工位数分出多个出气口,并和各夹具的阀座之间用气管和接头联通起来。
夹具17(气动三爪卡盘)通过螺钉固定在阀体上,阀体与主轴通过螺纹连接并紧为一体,主轴通过主轴轴承、齿形帯轮及锁紧螺母安装在阀座上、其中主轴与齿形帯轮通过键连接在一起,阀座用螺钉固定在回转工作台上。这样,齿形皮带带动齿形帯轮、主轴、阀体、夹具17及零件一起旋转。顶杆在主轴中间的孔内滑动。
在阀芯上方与阀体内孔的顶面之间装有使阀芯复位的弹簧。凸台用螺钉及定位销安装在固定工作台上,其具体位置在转台夹具装夹那个工位下方,凸台顺着顶杆运动轨迹有上、下两个斜坡,中间有一段平面,平面长度控制夹具17松开时间。
图2 夹具结构示意图
2 工作原理
如图2左边视图所示:工件及夹具在齿形皮带的驱动下不停地转动,而主轴內孔的顶杆处于自由状态,阀芯在弹簧的作用下处于下方位置。此时,压缩空气经由定子和转子及气管和接头进入阀座,再经由主轴內孔及阀芯的中间环腔到达工作口A,控制夹具夹紧零件;而夹具另一端排出的压缩空气由工作口B进入阀体,经由阀芯最上面的环型腔通到排气口C排出阀体。
如图2右边视图所示:齿形帯轮与齿形皮带脱离啮合,工件及夹具停止自转,顶杆处于工作状态,即顶杆被凸台顶起,阀芯在顶杆的作用下克服弹簧的压力被顶到上方位置。此时,压缩空气经由定子和转子及气管和接头进入阀座,再经由主轴內孔及阀芯的中间环腔到达工作口B,控制夹具松开;而夹具17另一端排出的压缩空气由工作口A进入阀体,经由阀芯最下面的环型腔通到排气口D排出阀体。
二、四工位自动松夹夹具应用
1.设计发展前景
四工位自动松夹夹具特别适用于像羊角销这类小型结构件的加工,通过回转台进行工位转换,在加工工位和装卸工位转换时油缸实现自动松夹,使每件的加工时间由原来的1 min/件提高到0.108 min/件,每个工位可以装夹四个工件,三个加工工位能同时完成三道不同工序的加工,装卸工位可以不间断的装卸工件,实现机床使用的连续性。
图3 夹具主视图与俯视图
2.结构组成及原理
如图3所示,通过底板1与数控回转台固定连接,然后由四根立柱2将底板1与上盖3连接在一起,底板1上有V型支撑11,弹簧片12和支架13,在上盖3上安装有四个油缸6,分别为四个工位提供松夹动力源,活塞杆7上安装压板8和两个压块9,压板8与压块9通过导向套5和导杆4实现准确夹紧工件,在支架13上安装有顶杆10,当压块9在压紧零件的同时,会借助弹簧片12的弹力作用,使零件在轴向上顶紧顶杆10来保证工件的轴向位置正确。两件拨杆16安装在配油轴14上,跟机床防护固定,不作旋转动作。
图4 松紧转换机构详图
如图4所示,配油轴14上有两对螺孔分别与液压站上的两组阀连接,给本夹具提供动力源,配油套15上呈90°方向分布着四对螺纹分别与其对应的夹紧油缸6连接,配油套15与夹具上盖3连接在一起随数控回转台作90°旋转动作,通过配油轴14和配油套15的相对旋转实现加工工位与装卸工位的油缸松夹自动转换,无论哪个方向的油缸随转台转到装卸工位时都自动松开,当离开装卸工位时自动夹紧。
结 语
多工位夹具在机床加工中具有可以减少辅助时间,提高加工效率的特点。
东莞潇洒职业培训学校开设课程有:数控编程培训、塑胶模具设计培训,冲压模具设计培训,精雕、ZBrush圆雕培训、Solidworks产品设计培训、pro/E产品设计培训、AutoformR7工艺分析培训,潇洒职业培训学校线下、线上网络学习方式,随到随学,上班学习两不误,欢迎免费试学!联系电话:13018639977
联系电话:13018639977(微信同号)QQ:2033825601
学习地址:东莞市横沥镇新城工业区兴业路121号-潇洒职业培训学校
1;所有标注为智造资料网zl.fbzzw.cn的内容均为本站所有,版权均属本站所有,若您需要引用、转载,必须注明来源及原文链接即可,如涉及大面积转载,请来信告知,获取《授权协议》。
2;本网站图片,文字之类版权申明,因为网站可以由注册用户自行上传图片或文字,本网站无法鉴别所上传图片或文字的知识版权,如果侵犯,请及时通知我们,本网站将在第一时间及时删除,相关侵权责任均由相应上传用户自行承担。
[complaint:内容投诉]
智造资料网打造智能制造3D图纸下载,在线视频,软件下载,在线问答综合平台 » 大批量小型结构件加工方案前 言一、一种多工位自旋转夹具控制装置二、四工位自动松夹夹具应用结 语

