塑料板材和片材是人们接触较多的塑料产品,目前大部分都采用挤出法生产。这种方法生产的特点是模具结构简单、生产过程连续、成本低。塑料板材和片材被广泛地用作化工防腐、包装、衬垫、绝缘和建筑材料。板材的厚度在lmm以上,最厚达20mm;片材的厚度范围在0.25~1mm之间。板材和片材的常用塑料有聚氯乙烯(硬质与软质)、聚乙烯(高、中、低压)、聚丙烯、ABS、抗冲击聚苯乙烯、聚酰胺、聚甲醛、聚碳酸脂、醋酸纤维、丙烯酸类树脂等,其中前四种应用较多。
板材和片材的挤出成型特点是采用扁平狭缝机头,机头的进料口为圆形,内部逐渐由圆形过渡成狭缝形,出料口宽而薄,可以挤出各种厚度及宽度的板材和片材。熔体在挤出成型过程中沿着机头宽度方向均匀分布,而且流速相等,挤出的板材和片材厚度均匀,表面平整。
用于挤出板材和片材的挤出机头有鱼尾式机头、支管式机头、螺杆式机头和衣架式机头等四种类型。
8-6-1 鱼尾式机头
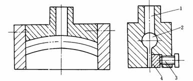
机头带阻流器的鱼尾式机头阻流棒的模腔与鱼尾形状相似,如图8-18所示。熔融物料从机头中部进入模腔后,向两侧分流,在口模处挤出具有一定宽度和厚度的板材和片材。由于物料在进口处的压力和流速比机头两侧大,又由于两侧比中部散热快,因此物料粘度增大,造成中部出料多,两侧出料少,挤出的板材和片材厚度不均匀。为避免此情况出现,获得厚度均匀一致的塑件,通常在机头的模腔内设置阻流器(如图8-18所示)或阻流棒(如图8-19所示),以增大物料在机头模腔中部的流动阻力,调节模腔内料流阻力的大小,使物料在整个口模长度上的流速相等,压力均匀。

图8-18
鱼尾式机头结构简单,制造方便,可用于多种塑料的挤出成型,如聚烯烃类塑料、聚氯乙烯和聚甲醛等。但用这种方法生产的板材和片材的幅宽一般小于500mm,厚度小于3mm,因此不适于挤出宽幅板(片)材。鱼尾式机头的鱼尾扩张角通常取80o左右。

图8-19 带阻流器和阻流棒的鱼尾式机头
8-6-2 支管式机头
支管式机头的模腔为管状,有一个纵向切口与口模区相连。支管式机头的管状模腔与口模平行,可以贮存一定量的物料,同时使进入模腔的料流稳定并均匀地挤出宽幅塑件。
支管式机头的特点是机头体积小、重量轻、模腔结构简单、温度较易控制和容易制造加工,可以成型的板材和片材幅宽较大且宽度可以调整,一般聚乙烯、聚丙烯、聚酯等板材和片材都是采用这种机头挤出成型的。
根据支管式机头的结构形式及进料位置的不同,有以下几种常用结构形式:
1. 直支管型机头
一端供粉直支管型机头如图8-20所示,物料由支管一端进入,支管另一端封闭,模腔与挤出料流方向一致,塑件板材的宽度可由幅度调节块进行调节。中间进料直支管型机头如图8-21所示,物料由支管中部进入,充满模腔后,从支管模腔的口模缝隙中挤出,塑件的宽度可由调节块进行调节,这种机头挤出的板材性能在宽度方向上具有对称性。

图8-20 一端供料直支管型机头 图8-21 中间进料直支管型机头
直支管型机头的特点是结构简单,幅宽能调节,能生产宽幅产品,适用于聚乙烯和聚丙烯等塑料的挤出成型。直支管型机头的缺点是物料在支管内停留时间长,容易分解变色,温度控制困难。
(2)中间进料弯支管型机头
中间进料弯支管型机头如图8-22所示,模腔为流线型,无死角,适合于热稳定性差的塑料(如聚氯乙烯等)成型,但机头制造困难,幅宽不能凋节。
(3)带有阻流棒的双支管型机头
带有阻流棒的双支管型机头如图8-23所示,这种机头用于加工熔融粘度高的宽幅塑件。阻流棒的作用是用来调节流量,限制模腔中部塑料熔体的流速,使宽幅板材和片材的壁厚均匀性提高,成型幅宽可达l000~2000mm。缺点是塑料熔体在支管模腔内停留时间较长,易过热分解,故不大适合于热敏性塑料,但这种情况有时可通过缩短支管直径及模口流道长度加以改善。如果塑料的粘度低,流动性好,成型温度高,塑件的幅宽小,可采用一个支管成型;如果塑料的粘度高,板材较宽,则必须要用两个支管成型。

图8-22 中间进料的弯支管型机头
1-进料口;2-弯支管型模腔;3-模口调节螺钉;4-模口调节块

图8-23 带有阻流棒的双支管型机头
1-支管模腔;2-阻流棒;3-模口调节块
8-6-3 螺杆式机头
螺杆式机头又称螺杆分配式机头,与支管型机头相似,二者的主要区别是螺杆式机头内插入了一根分配螺杆,如图8-24所示。螺杆由电动机带动旋转,可以进行无级调速,所以物料不会停滞在支管内。由于螺杆均匀地将物料分配到机头的整个宽度上,因此可以通过螺杆转速的变化来调整板材的厚度。
分配螺杆直径比挤出机螺杆直径小一些,以保证主螺杆的挤出量大于分配螺杆的挤出量,这样才能使板材连续挤出、不断料。分配螺杆一般为多头螺纹,螺纹头数为4~6。因多头螺纹挤出量大,可减少物料在机头内的停留时间,因此流动性和热稳定性差的塑料的挤出也变得比较容易。
分配螺杆与挤出机主螺杆连接方式有两种,一种是一端供料式螺杆机头(如图8-24所示),另一种是中央供料式螺杆机头(如图8-25所示)。
螺杆式机头的温度控制比鱼尾式机头容易。由于分配螺杆的转动,塑料熔体在机头内流动时受剪切、摩擦作用产生热量,使熔体温度升高并进一步塑化,机头的温度从进料口到出料口逐渐降低。螺杆机头的缺点是物料在模腔内的运动发生了变化,由圆周运动变为直线运动,制品容易出现波浪形痕迹。

图8-24 螺杆分配式机头 图8-25 中央供料式螺杆机头
l-挤出机螺杆;2-分配螺杆;3-机头体
该文章所属专题:塑料模具设计教程
1;所有标注为智造资料网zl.fbzzw.cn的内容均为本站所有,版权均属本站所有,若您需要引用、转载,必须注明来源及原文链接即可,如涉及大面积转载,请来信告知,获取《授权协议》。
2;本网站图片,文字之类版权申明,因为网站可以由注册用户自行上传图片或文字,本网站无法鉴别所上传图片或文字的知识版权,如果侵犯,请及时通知我们,本网站将在第一时间及时删除,相关侵权责任均由相应上传用户自行承担。
[complaint:内容投诉]
智造资料网打造智能制造3D图纸下载,在线视频,软件下载,在线问答综合平台 » 塑料模具设计教程_8-6板、片材挤出成型机头(图文教程)

