2.5 几何体的投影
按照一定规则形成的简单立体称为基本体。
机器零件无论其形状如何复杂,都可看成是由棱柱、棱锥、圆柱、圆锥、圆球、圆环等基本体按一定方式组合而成的。如图2-30是由基本体组合而成的机件。根据基本体在机件中所起的作用不同,常加工成带切口、穿孔等结构而形成带切口的基本体。

图2-30 机件表面的几何形状
按表面性质的不同,基本体通常分为平面立体和曲面立体两类。本章研究上述两类立体的投影及立体表面取点、取线的作图方法。
2.5.1 平面立体的投影
平面立体是由平面围成的,平面立体上相邻两表面的交线称为棱线。常见的平面立体有棱柱和棱锥。
2.5.1.1 棱柱
1 棱柱的投影
棱柱由两个形状、大小相同且平行的顶、底面和若干个矩形棱面围成。
图2-31为一水平放置的正六棱柱和它的三面投影,它的顶面和底面为正六边形,且为水平面,水平投影反映实形,六个棱面为铅垂面,在水平投影面上的投影有积聚性。正面投影为三个相邻的矩形,中间矩形线框为前后棱面的投影,反映实形,左右两线框是其余四个棱面的投影,为类似形;侧面投影的两个相邻矩形,读者可自行分析。
作棱柱的三面投影时,一般先画有积聚性的投影,然后按投影关系,完成其他两面投影。
2 棱柱表面上取点和取线
在图2-31中,由于棱柱表面都处在特殊位置,所以棱柱表面上点的投影均可利用平面投影的积聚性来作图。在判断可见性时,若该平面处于可见位置,则该面上点的同面投影也可见,反之为不可见。有积聚投影的平面上的点的投影,不必判断其可见性。
如图2-31(b)所示,已知正六棱柱棱面ABCD上点M的正面投影m′,求该点的水平投影m和侧面投影m″。

图2-31 六棱柱的投影及面上取点
由于点M所属棱面ABCD为铅垂面,其水平投影有积聚性,因此点M的水平投影m必在该棱面积聚性投影abcd上,根据m′、m求出m″,由于ABCD的侧面投影为可见,故m″也为可见。
例2-11 设五棱柱的表面上有点A、B和线段CD、DE,且a′、b′、c″d″、d″e″为已知(图2-32(a)),试完成它们的其余两投影。

图2-32 五棱柱面上取点取线
解 点A在五棱柱的前棱面上,由于该面的水平投影和侧面投影均有积聚性,可直接求得a、a″;点B在右棱面上,而右棱面的水平投影有积聚性,故作图时利用积聚性先求b,再根据YHB=YWB和b′求得b″。由于右棱面在侧面投影上为不可见面,故b″为不可见(加括号表示)。求作线段CD、DE的其余投影,需求出线段两端点的各投影,然后把同面投影相连。图中处在棱线上的点D可根据d″直接求得d′和d;点C的两投影可由YWC=YHC确定c后再求c′,用同样的方法可求得e和e′。连线时,由于CD所在棱面的正面投影不可见,故c′d′为不可见,用虚线表示。
2.5.1.2 棱锥
1 棱锥的投影
棱锥是由一个多边形底面和若干个共顶点的三角形棱面所围成的。从棱锥顶点到底面的距离叫做棱锥的高。当棱锥底面为正多边形,各棱面是全等的等腰三角形时,称之为正棱锥。

图2-33四棱锥的投影及面上取点
图2-33所示为四棱锥及其投影,它的底面为水平面,其水平投影反映实形,前后棱面为侧垂面,其侧面投影有积聚性,其水平投影和正面投影为前后棱面的类似形;左右棱面为正垂面,其正面投影有积聚性,其余两投影为左右棱面的类似形。作图时,宜先画出棱锥底面的各投影,然后画出锥顶的各投影,最后将它与底面各顶点的同面投影连接起来即可。
2 棱锥表面上取点和取线
设在四棱锥前棱面上有一点C的正面投影c′(图2-33),求其水平投影c和侧面投影c″。利用前棱面的侧面投影有积聚性,可先求出c″,然后由YWC=YHC和c′求得c。若只给出四棱锥的正面投影和水平投影,且有一点D在前棱面上,d′为已知,求d时,须在该棱面上过D作一辅助线(如KM),即先过d′作k′m′,然后求km,则d必在km上,如图2-33所示。
例2-12 已知三棱锥表面上直线HM、MN的正面投影h′m′、m′n′,试求其水平投影和侧面投影(图2-34)。

图2-34 三棱锥表面上取线
解 分析:由题设h′m′∥a′b′,且AB为水平线,故直线HM为棱面SAB上的水平线,即HM∥AB。MN为棱面SBC上的一般位置直线,点M在棱线SB上,必须作辅助线求点N的其余投影。
作图步骤:
(1) 由于点M在棱线SB上,根据m′,先求出m″后再求得m;
(2) 在水平投影上作hm∥ab,在侧面投影上作h″m″∥a″b″;
(3) 在棱面SBC上作辅助线SD确定点N的水平投影n和侧面投影n″;
(4) 分别连接点M、N的水平投影mn和侧面投影m″n″;
(5) 判别可见性,因棱面SBC的侧面投影不可见,故m″n″亦不可见,应连虚线,如图2-34(b)所示。
2.5.2 曲面立体的投影
曲面立体是由曲面或曲面和平面围成的,常见的曲面立体有圆柱、圆锥、圆球和圆环。这些曲面都是由母线(直线或圆)绕某一轴线旋转而成的,所以又称为回转体。常见的四种回转面的形成方式见表2-8。
表2-8 四种回转面的形成方式
圆柱面 | 圆锥面 | 圆球面 | 圆环面 |
|
|
|
|
2.5.2.1 圆柱
1 圆柱的投影
圆柱是由圆柱面及顶、底平面围成的。圆柱面可看成是由一平行于轴线的直线母线绕轴线旋转而成的(如图2-35(a)),它的三面投影见图2-35(b)。该圆柱的轴线垂直于水平面,顶面和底面均为水平面,故其水平投影反映实形;圆柱面的水平投影积聚为一个圆周,圆柱面上任何点和线的投影都积聚在该圆周上。正面投影中,上下两外形线分别是圆柱的顶面和底面有积聚性的投影,左右两外形线分别是圆柱面上最左、最右两素线的投影,最左、最右素线在水平投影中均积聚成一点,而在侧面投影中都重合在圆柱轴线的投影上。侧面投影中,左右两外形线分别为圆柱的最后、最前素线的投影。

图2-35 圆柱的投影
关于可见性问题,对正面投影来说,前半个圆柱面是可见的;在侧面投影,左半个圆柱面是可见的。
2 圆柱表面上取点和取线
当圆柱面的回转轴线垂直于某一投影面时,则圆柱面在该投影面上的投影具有积聚性,利用这一投影性质,在圆柱面上取点、取线的作图比较简便。
例2-13 设已知从属于圆柱面上点K的正面投影,试求其他两个投影(图2-36)。
解 由于(k′)不可见,故点K在圆柱面后半部,又因圆柱面的水平投影有积聚性,故点K的水平投影k必落在后半圆周的水平投影上。根据(k′)及k即可求出k″,由于点k又在圆柱左半部,故其侧面投影k″为可见。
例2-14 补画圆柱的侧面投影,并求作圆柱面上线段ABC的其余两投影(图2-37(a))。
解 分析:线段ABC是前半个圆柱面上的一段曲线,点A和点B分别在圆柱的最左、最前素线上,处于特殊

图2-36 圆柱面上取点 图2-37 求作圆柱面上线段ABC的其余两投影
位置,点C处在圆柱面上的一般位置。
作图步骤:
(1) 补画圆柱的侧面投影;
(2) 点A、B、C的水平投影均积聚在圆周上,根据点的投影规律分别确定其水平投影和侧面投影;
(3) 为使作图更准确,需在曲线ABC上取若干点(如点Ⅰ、Ⅱ),并求出相应的水平投影和侧面投影;
(4) 区分可见性,依次光滑连点成线,见图2-37(b)。
2.5.2.2 圆锥
1 圆锥的投影
圆锥是由圆锥面和底平面围成的。圆锥面可看成是由一与轴线相交的直母线绕轴线回转而成的,如图2-38(a)所示。图2-38(b)为轴线垂直于H面的圆锥的投影。

图2-38 圆锥的投影
由图2-38(b)可见,圆锥面的三面投影都没有积聚性,正面投影和侧面投影中的左右外形线分别是圆锥面上最左、最右素线和最后、最前素线的投影,水平投影中圆的范围既是圆锥底面的投影,也是圆锥面的投影。
2 圆锥面上取点和取线
由于圆锥面的投影没有积聚性,故在圆锥面上取点、取线,必须通过在圆锥面上作辅助线的方法求解。既可过锥顶作直素线为辅助线,也可作纬圆为辅助线。如已知圆锥面上点K的正面投影k′,试求其他两投影时,具体作法如下。
(1)过锥顶的素线法(图2-39(b)):
①由锥顶s′过k′作直线s′k′并延长交底圆的投影于e′;
②求出点E的水平投影e,并连se;
③按点的投影规律在se上作K的水平投影k;
④根据k′和k便可求得k″。

图2-39 圆锥面上取点
(2)辅助纬圆法(图2-39(c)):

图2-40 属于圆锥面曲线的投影
①过k′作直线垂直于轴线的投影且与外形线相交于e′,与轴线的投影相交于o′,则o′e′为辅助纬圆的半径;
②在水平投影中,以o为圆心,o′c′为半径画圆,即是辅助纬圆的投影;
③根据k′在辅助圆周上即可得k;
④由k′和k,便可作出侧面投影k″。
例2-15 已知圆锥面上曲线AE的正面投影a′e′
(图2-40),试求其他两投影。
解 分析:将曲线AE看成由n个点(如5个点)组成,由于a′e′可见,故曲线AE在圆锥前半部。
作图:利用辅助纬圆法分别求出A、B、C、D、E五个点的其他两投影,然后依次连接成光滑曲线,点C(c,c′,c″)属于圆锥面的左视转向线S1,c″在s″1″上,点C把曲线分成两部分,曲线CE在圆锥面的左半部分,其侧面投影c″e″为可见,画成粗实线;曲线AC在圆锥面的右半部,其侧面投影a″c″不可见,画成虚线,因此c″是曲线侧面投影可见与不可见部分的分界点。
2.5.2.3 圆球
1 圆球的投影
一圆母线绕其通过圆心的轴线(直径)回转后形成的曲面称为圆球面,圆球面所围成的立体

图2-41 圆球的投影
图2-42 圆球面上取点
称圆球体,如图2-41(a)所示。圆球的三面投影如图2-41(b),它们都是与球直径相等的圆。这三个圆分别为球面上平行于各投影面的最大圆的投影。其中,正面投影上的圆是前半球与后半球分界线
(即主子午线)的投影,与它对应的水平投影重合在平行于 X轴的中心线上,侧面投影重合在平行于Z轴的中心线上。至于水平投影、侧面投影上的圆及与之对应的其余两投影的位置,读者可自行分析。
2 圆球面上取点和取线
在圆球面上取点时,通常只能在球面上作辅助线圆,即可分别作出平行于三个投影面的圆。如图2-42中的点A, A, 已知正面投影a′,求a和a″时,可过点A作平行于H面的圆为辅助圆,也可过A作平行于W面或平行于V面的圆为辅助圆,图中是通过A作平行于H面的辅助圆而获得a和a″。点B是处于主子午线上的特殊点,已知正面投影b′,可直接求得b和b″。
例2-16 已知半球面上点A及线段BC、CD的正面投影,补画半球的水平投影,并求点、线的其余两投影(图2-43(a))。
解 点A是主子午线上的点,此点为特殊点,可直接求得其余两投影。线段BC是球面上平行于赤道圆的一段圆弧,其水平投影仍是一段圆弧,侧面投影是一段直线;线段CD是圆球面上倾斜于水平投影面和侧立投影面的一段圆弧,其水平投影和侧面投影均为一段椭圆弧;点C是特殊点,可直接求得c和c″。点D属一般点,需通过作辅助圆求d和d″。为了作图准确起见,必须在圆弧CD上再取若干一般点(如点Ⅰ、Ⅱ),并采用辅助圆法求出它们的其余两投影,然后依次光滑连线。圆弧CD在右半球面上,其侧面投影为不可见,如图2-43(b)所示。
2.5.2.4圆环
圆环是由环面围成的。环面可看作圆绕与圆共面但不过圆心的轴线旋转而成。图2-44(a)为轴线垂直于H面的圆环的投影,靠近轴的半个环面为内环面,远离轴的半个环面称为外环面。图2-44(b)为圆环的三面投影。

图2-43 求半球面上点、线的其余两投影

图2-44 圆环的投影
该文章所属专题:机械制图技术教程
2.5.3 基本体的尺寸标注
基本体都有一定的长度、宽度和高度。在一般情况下,长、宽、高三个尺寸都要标注,如表2-9中的四棱柱。但有些基本体,这三个尺寸中的两个或三个是互相关联的,如表2-9中的六棱柱,正六边形的对角距与对边距相互关联(即16=18.48×sin60°),故除标出六棱柱的高8以外,注上对边距16,尺寸就完整了,(18.48)则为参考尺寸。圆柱、圆台等的尺寸,宜注在反映回转曲线的投影上,以便减少投影图的数目。对于圆球,只要画出一个投影,标注一个尺寸就行了。表2-9为常见基本体尺寸标注示例。
表2-9 常见基本体尺寸标注示例
|
|
|
| |||
|
|
|
| |||
|
|
|
| |||
2.5.4 带切口的基本体
在生产实际中,我们常遇到一些机件是带有切口的基本体,如被切去一整块或被切槽、钻孔等。基本体被切割后,在其表面上产生各种交线。本节仅讨论交线及其投影是直线或圆(圆弧)时的特殊情况。
2.5.4.1 带切口的平面立体
1 带切口的棱柱
图2-45所示为一个带切口的四棱柱,其切口被侧平面R和水平面T切割而成。平面R与棱柱的前、后棱面的交线为矩形的对边,平面T与棱柱各棱面相交,其交线与底面各边对应平行。作图时,先作反映切口特征的正面投影,再求作切口的水平投影,然后按投影对应关系完成侧面投影。
2 带切口的棱台
图2-46(b)所示是一个带切口的四棱台,其中间的通槽被两个侧平面和一个水平面切割而成。平面R与前后棱面的交线为等腰梯形的两腰,平面T与前后棱面的交线为一矩形的对边。作图时,先作反映切口特征的正面投影,然后求作切口的侧面投影,再由YW=YH完成水平投影,其三面投影如图2-46(a)所示。
2.5.4.2 带切口的曲面立体
1 带切口的圆柱
如图2-47(b)所示,圆柱左上角的切口由一侧平面P和一水平面Q切割而成。侧平面P与圆柱面相交得两条直线AA1、BB1,水平面Q与圆柱面相交得圆弧A1B1。
在投影图中,关键是如何求出交线AA1和BB1的侧面投影。从图2-47(a)可见,切口的特征(或位置)通过正面投影表示出来,据此利用圆柱面水平投影的积聚性便能求出交线的水平投影a(a1)、b(b1),以中心线为基准,按“宽相等”的投影关系便可确定交线的侧面投影。
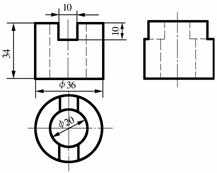
图2-48(b)所示为带切口的圆筒,其切口由水平面及侧平面切割圆筒而成,可先作圆筒的投影,然后作出反映切口特征的正面投影,再按投影规律作出切口的水平投影和侧面投影(图2-48(a))。

图2-45 带切口的四棱柱 图2-46 带切口的棱台

图2-47 带切口的圆柱 图2-48 带切口的圆筒
图2-49为带切口的半圆筒,各切割平面与圆筒内外表面均相交并产生交线,应分别求出。
图2-50为一接头的三面投影及立体图,图中各表面交线的求法与图2-47中交线的求法基本相同,所不同的是接头上部中间开槽后,此部分圆柱的最前、最后素线被切去了,因此,在侧面投影中,图形上部前、后的最外轮廓线为槽壁与圆柱面的交线的投影。
2 带切口的圆球
圆球被任何位置平面切割时,其交线是圆。切割平面与球心的距离h不同,交线圆的直径大小也不相同。h愈小,交线圆的直径愈大;反之,圆的直径愈小。当切割平面为某投影面的平行面时,则交线在该投影面的投影反映圆的实形,如图2-51所示。

图2-49 带切口的半圆筒 图2-50 接头的三面投影

图2-51 平面切圆球 图2-52 带切口的半球
圆2-52所示为上部开槽的半球,这个槽由一个水平面和两个侧平面切割而成。作图时应注意交线圆半径的量取位置。
2.5.4.3 带切口基本体的尺寸标注
带切口基本体的尺寸,由完整的基本体尺寸和切口尺寸组成。标注尺寸时,应先注出完整的基本体的尺寸,然后再标注切口的尺寸。切口的尺寸,通常只需标注确定切割平面位置的定位尺寸,交线本身不需再标注尺寸,因为确定了切割平面位置后,交线的投影可通过作图方法求出,而机件上的交线,均是在加工过程中自然形成的,若再注上尺寸,则工艺上是不合理的。
表2-10为带切口基本体尺寸标注示例。其中带“×”者为多余的尺寸,不应标注。
表2-10 带切口基本体尺寸标注示例
|
|
|
|
|
|
该文章所属专题:机械制图技术教程
1;所有标注为智造资料网zl.fbzzw.cn的内容均为本站所有,版权均属本站所有,若您需要引用、转载,必须注明来源及原文链接即可,如涉及大面积转载,请来信告知,获取《授权协议》。
2;本网站图片,文字之类版权申明,因为网站可以由注册用户自行上传图片或文字,本网站无法鉴别所上传图片或文字的知识版权,如果侵犯,请及时通知我们,本网站将在第一时间及时删除,相关侵权责任均由相应上传用户自行承担。
[complaint:内容投诉]
智造资料网打造智能制造3D图纸下载,在线视频,软件下载,在线问答综合平台 » 机械制图教程-(2.5)几何体的投影(图文教程)






















