細水口模設計
細水口模又稱三板式模,其主要特点是在取出制品的同時﹐將之與流道廢料分離﹐因此﹐其定模部分也必須進行分型。
一) 細水口模主要用來成型下列制品。
1.一模一腔要求側澆口進膠。如果采用大水口模則要麼加大模胚﹐造成浪費﹐要么唧咀嚴重偏心。
2.一模多腔点澆口進膠制品。
3.一模一腔多個点澆口進膠的制品﹐通常用於成型較大型的制品。
二) 拉杆長度確定。
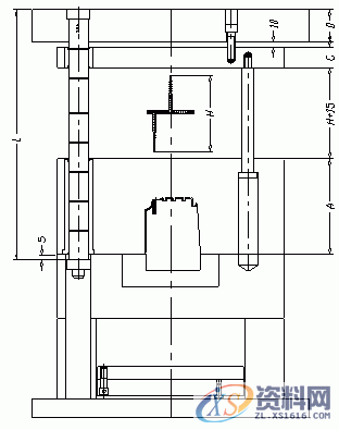
拉杆長度L=前模+水口長度+30﹐見圖﹐也即L=A+C+D+H+30。

N95口罩机现货预订电话:13018639977
CNC数控编程培训、塑胶模具设计培训,冲压模具设计培训,精雕、ZBrush圆雕培训、Solidworks产品设计培训、pro/E产品设计培训,潇洒职业培训学校线下、线上网络学习方式,随到随学,上班学习两不误,欢迎免费试学!
学习联系李老师电话:13018639977(微信同号)QQ:2033825601
学习地址:东莞市横沥镇新城工业区兴业路121号-潇洒职业培训学校
三)定距螺丝
定距螺丝至少采用M5/8”杯头螺丝,同时,要装胶型圈,以利缓冲。
四)尼龙胶钉
一般細水口模較常采用尼龙胶钉代替拉勾﹐控制分型的先后次序。尼龙胶钉結構簡單,易裝配﹐并且可通過調整螺絲的松緊來控制尼龙棒的膨脹﹐開模時﹐利用尼龙棒與孔的摩擦力使A﹑B板一起運動。但對於大型模具﹐這種結構不常用。其頂部常開ø5的孔排氣。
五)水口勾针
水口勾针藏進水口推板內﹐以防阻碍熔融塑料的流動。其大小一般為ø1/4”,其中心与竖直分流道中心重合,如圖所示﹕

六)唧咀
所有細水口模一般采用標准唧咀,超过4545以上的模胚,采用自制唧嘴。
当面板較厚時﹐在保証唧咀托底與面板底之間10MM至少5MM距離的情況下,將唧咀沉入面板﹐見圖;

1;所有标注为智造资料网zl.fbzzw.cn的内容均为本站所有,版权均属本站所有,若您需要引用、转载,必须注明来源及原文链接即可,如涉及大面积转载,请来信告知,获取《授权协议》。
2;本网站图片,文字之类版权申明,因为网站可以由注册用户自行上传图片或文字,本网站无法鉴别所上传图片或文字的知识版权,如果侵犯,请及时通知我们,本网站将在第一时间及时删除,相关侵权责任均由相应上传用户自行承担。
[complaint:内容投诉]
智造资料网打造智能制造3D图纸下载,在线视频,软件下载,在线问答综合平台 » 塑胶模具设计-细水口模设计

