一、理论基础:
1.Autocad2008界面介绍
启动AutoCAD 后,用户界面如图1-1所示,菜单栏、工具栏、工具选项板、绘图窗口、文本窗口与命令行、状态栏等元素组成。
图1-1 用户界面
2.Autocad2008基本绘图命令
2.1 直线
直线是AutoCAD中最基本的图形,也是绘图过程中用得最多的图形。用户可以绘制一系列连续的直线段,但每条直线段都是一个独立的对象。单击“直线”按钮,或在命令行中输入LINE,都可执行该命令。
其命令格式:
命令:line
指定第一点:
指定下一点或 [放弃(U)]:
指定下一点或 [放弃(U)]:
指定下一点或 [闭合(C)/放弃(U)]:
2.2 绘制圆弧
选择 “绘图”→“圆弧”菜单下的级联菜单命令,或单击“圆弧”按钮,或在命令行中输入ARC,都可执行绘制圆弧命令。 如图1-2所示
(1)指定三点方式:ARC命令的默认方式,依次指定3个不共线的点,绘制的圆弧为通过这3个点而且起于第一个点止于第三个点的圆弧。
(2)指定起点、圆心以及另一参数方式 :圆弧的起点和圆心决定了圆弧所在的圆,第3个参数可以是圆弧的端点(中止点)、角度(即起点到终点的圆弧角度)和长度(圆弧的弦长)
(3)指定起点、端点以及另一参数方式 :圆弧的起点和端点决定了圆弧圆心所在的直线,第3个参数可以是圆弧的角度、圆弧在起点处的切线方向和圆弧的半径。

图1-2 圆弧绘制菜单
2.3 绘制矩形
选择“绘图”→“矩形”命令,或单击“矩形”按钮,或在命令行中输入RECTANG来执行矩形命令。
命令行提示中的“标高”选项和“厚度”选项使用较少;“倒角”选项用于设置矩形倒角的值,即从两个边上分别切去的长度,用于绘制倒角矩形;“圆角”选项用于设置矩形4个圆角的半径,用于绘制圆角矩形;“宽度”选项用于设置矩形的线宽。系统给用户提供了3种绘制矩形的方法:一种是通过两个角点绘制矩形,这是默认方法;第二种是通过角点和边长确定矩形;第三种是通过面积来确认矩形。
命令: rectang
指定第一个角点或[倒角(C)/标高(E)/圆角(F)/厚度(T)/宽度(W)]:指定矩形的第一个角点坐标
指定另一个角点或 [面积(A)/尺寸(D)/旋转(R)]: 指定矩形的第二个角点坐标 。
2.4 绘制正多边形
创建正多边形是绘制正方形、等边三角形和八边形等图形的简单方法。用户可以通过选择“绘图”→“正多边形”命令,或单击“正多边形”按钮,或在命令行输入POLYGON来执行正多边形命令。
命令: polygon 输入边的数目 <4>: 指定正多边形的边数
指定正多边形的中心点或 [边(E)]: 指定正多边形的中心点
输入选项 [内接于圆(I)/外切于圆(C)] <I>: 确认绘制多边形的方式
指定圆的半径: 输入圆半径
2.5 绘制圆
选择“绘图”→“圆”菜单下的级联菜单命令,或单击“圆”按钮,或在命令行输入CIRCLE来执行圆命令。
命令: circle
指定圆的圆心或 [三点(3P)/两点(2P)/相切、相切、半径(T)]:
指定圆的半径或 [直径(D)]:
2.6 绘制圆环
圆环是填充环或实体填充圆,即带有宽度的闭合多段线。要创建圆环,就要它的内外直径和圆心。通过指定不同的中心点,可以继续创建具有相同直径的多个副本。要创建实体填充圆,即圆点,就要将内径值指定为0。选择“绘图”→“圆环”命令,或在命令行中输入DONUT命令可以执行圆环命令。
命令: donut
指定圆环的内径 <0.5000>: 50 //输入圆环的内径值
指定圆环的外径 <1.0000>: 80 //输入圆环的外径值
指定圆环的中心点或 <退出>: //拾取圆环的中心点或输入坐标
指定圆环的中心点或 <退出>: //可连续绘制该尺寸的圆环,通过选择不同的中心点,若不绘制, 按Enter键,完成绘制。
2.7 绘制椭圆
选择“绘图”→“椭圆”命令,或单击“椭圆”按钮,或在命令行中输入ELLIPSE来执行椭圆命令,系统提供了3种方式用于绘制精确的椭圆。
一条轴的两个端点和另一条轴半径:单击“椭圆”按钮,按照默认的顺序就可以依次指定长轴的两个端点和另一条半轴的长度,其中长轴是通过两个端点来确定的,已经限定了两个自由度,只需要给出另外一个轴的长度就可以确定椭圆。
一条轴的两个端点和旋转角度:这种方式实际上相当于将一个圆在空间上绕长轴转动一个角度以后投影在二维平面上。
中心点、一条轴端点和另一条轴半径:这种方式需要依次指定椭圆的中心点、一条轴的端点以及另外一条轴的半径。
二、CAD实训
1、建立作图环境
1)设置作图环境与手工绘图前准备图幅相似,用limits命令或格式→图形界限选项。
命令:limits
ON/OFF/<左下角点>:<0,0>(左下角为原点)
右上角点<420,297>:297,210(设置A4图幅)
2)用Zoom命令将作图环境限定的区域填满屏幕。
命令:zoom 全部/中心/动态/范围/上一个/比例/窗口/'(实时>:a11
3) 用Line命令画A4图幅边框。
命令:指定第一点:0,0
指定下一点或 [放弃(U)]:297,0(绝对坐标)
指定下一点或 [放弃(U)]:@0,210(相对坐标)
指定下一点或 [闭合(C)/放弃(U)]:@-297,0(相对坐标)
指定下一点或 [闭合(C)/放弃(U)]:C(封闭线框)
4)保存文件Save。 用Save命令将A4图幅边框存入磁盘以便随时选用。
命令:Save弹出“Save Drawing As”对话框,在文件名(File)栏中输入XX(文件名自行定义,但不应与其它文件名重复),单击“保存”按钮
2、基本绘图命令及使用
掌握画简单直线(line)、画圆(circle)、画弧(arc)、画矩形(rectang)、画多边形(polygon)、画圆环(dount)。
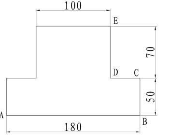
2.1 绘制如图1-3所示图形

图1-3 直线
[参考步骤]
1)用打开命令调用已保存的A4图幅文件 命令:“打开”或“文件”→“打开” 弹出“选择”对话框,拾取 ”xx” 文件(A4图框)
2)用Line命令画图。
命令:指定第一点:(起点A由光标任意确定)
指定下一点或 [放弃(U)]:@180,0(用相对坐标确定B点,得到AB线段
指定下一点或 [放弃(U)]:@50<90 (用极坐标确定C点,得到BC线段)
指定下一点或 [闭合(C)/放弃(U)]:@-40,0(确定D点,得到CD线段)
指定下一点或 [闭合(C)/放弃(U)]:@70<90 (确定E点,得DE线段)
指定下一点或 [闭合(C)/放弃(U)]:@-100,0
指定下一点或 [闭合(C)/放弃(U)]:@0,-70
指定下一点或 [闭合(C)/放弃(U)]:@-40,0
指定下一点或 [闭合(C)/放弃(U)]:@0,-50 (图1-3)完成
指定下一点或 [闭合(C)/放弃(U)]:ENTER(结束画线)
2.2用基本绘图命令绘制以下图形

图1-4 矩形和圆

图1-5 椭圆
3、将以上绘制的图形存盘保存,作为实验结果
附录1:Autocad2008基本绘图命令

附录2:Autocad2008基本绘图知识
(一)命令的输入
1. 直接使用工具按钮。
2. 键盘输入:在“命令:”后直接输入命令或命令缩略字母。
3. 通过下拉式菜单。
(二)命令的重复
1. 在“命令:”后直接回车或按空格键可重复上一个命令。
2. 若点鼠标右键会出现一快捷菜单,菜单的第一项为重复上一命令。
(三)——命令的中断
1. 若要中断当前正在运行的命令可按“Esc”键(习惯上按2次为宜)
2. 通过菜单或工具按钮输入命令时,系统会自动中断当前运行的命令,但可“透明”使用的命令除外。
四、图形显示(ZOOM)
实时平移:不改变图形显示的比例,只改变图形显示范围。
实时缩放:以光标为中心,改变显示比例;转动鼠标滑轮也可达到同样的效果。
窗口缩放:在屏幕上确定一个范围,范围内的所有实体皆显示在屏幕上。
缩放上一个:返回上一个显示的范围。
五、数据形式
1. 坐标形式
绝对坐标 格式:X,Y
相对坐标 格式:@X,Y
相对极坐标 格式:@距离<角度
用鼠标在屏幕上直接点取确定
2. 数值形式
键盘输入
鼠标输入 两点之间的距离作为数值,两点连线与角度基准之间的夹角作为角度值。
1;所有标注为智造资料网zl.fbzzw.cn的内容均为本站所有,版权均属本站所有,若您需要引用、转载,必须注明来源及原文链接即可,如涉及大面积转载,请来信告知,获取《授权协议》。
2;本网站图片,文字之类版权申明,因为网站可以由注册用户自行上传图片或文字,本网站无法鉴别所上传图片或文字的知识版权,如果侵犯,请及时通知我们,本网站将在第一时间及时删除,相关侵权责任均由相应上传用户自行承担。
[complaint:内容投诉]
智造资料网打造智能制造3D图纸下载,在线视频,软件下载,在线问答综合平台 » 机械CAD操作指导(1)基本操作及基本绘图命令(图文教程)

