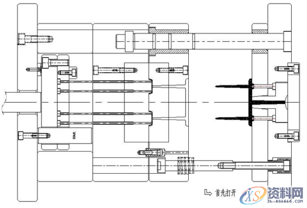
很多模具设计初学者对于三板模的运动原理都不了解,不知道打开模板的顺序和控制打开模板的行程,更不要说去设计三板模模具了。为了让更多的初学者了解三板模,下面我将详细的讲解三板模的运动原理及设计三板模的注意事项。1. 三板模运动原理(1)模具注满胶后,保温保压冷却,由于拉杆弹簧和开闭器的作用,使得水口板和A板之间先打开,拉断水口,打开到小拉杆限位的距离后停住打开,如下图所示:

(2)由于开闭器的作用,使得面板和水口板之间打开,打开到一定距离后,拉杆介子限位限死后停止打开,使得流道脱离咀嘴和水口钩针,如下图所示:

(3)由于小拉杆的作用,面板、水口板和A板之间都无法继续打开,使得A板和B板之间最后打开,打开到一定距离后停止打开,如下图所示:

(4)顶棍顶出,使顶针顶出制品,制品脱离型芯,自由掉落,若无法自由掉落,则需要人工或者机械手去取出,流道凝料需人工或者机械手去取出,如下图所示:

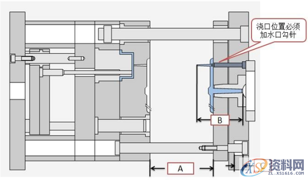
(5)合模,A板驱动复位杆,使顶针板回复位,合模成功,再进行下个周期生产。2.三板模设计注意事项(1)水口板与A板打开的距离A=B+(10-20)mm,B值为流道的长度,且A值必须大于等于120mm,便于人工取浇口凝料。C值一般取8mm或者10mm,浇口位置必须设计水口钩针,拉断浇口。

(2)唧嘴口部必须做2-3°的角度,防止唧嘴与水口板烧死。

(3)为了防止A板和B板先打开,B板上必须安装开闭器。.

(4)为了浇口拉断的残料不影响产品的装配,通常情况下,点浇口处做波点。

N95口罩耳带机、N95切片加内置鼻梁一体机、N95口罩机整套现货,预订电话:13018639977
CNC数控编程培训、塑胶模具设计培训,冲压模具设计培训,精雕、ZBrush圆雕培训、Solidworks产品设计培训、pro/E产品设计培训,潇洒职业培训学校线下、线上网络学习方式,随到随学,上班学习两不误,欢迎免费试学!
联系电话:13018639977(微信同号)QQ:2033825601
学习地址:东莞市横沥镇新城工业区兴业路121号-潇洒职业培训学校
1;所有标注为智造资料网zl.fbzzw.cn的内容均为本站所有,版权均属本站所有,若您需要引用、转载,必须注明来源及原文链接即可,如涉及大面积转载,请来信告知,获取《授权协议》。
2;本网站图片,文字之类版权申明,因为网站可以由注册用户自行上传图片或文字,本网站无法鉴别所上传图片或文字的知识版权,如果侵犯,请及时通知我们,本网站将在第一时间及时删除,相关侵权责任均由相应上传用户自行承担。
[complaint:内容投诉]
智造资料网打造智能制造3D图纸下载,在线视频,软件下载,在线问答综合平台 » ug模具设计-三板模设计注意事项及运动原理

