一 钢直尺
钢直尺是最简单的长度量具,它的长度有150,300,500和1000 mm四种规格。图1-1是常用的150 mm钢直尺。
![]()
图1-1 150 mm钢直尺
钢直尺用于测量零件的长度尺寸(图1-2),它的测量结果不太准确。这是由于钢直尺的刻线间距为1mm,而刻线本身的宽度就有0.1~0.2mm,所以测量时读数误差比较大,只能读出毫米数,即它的最小读数值为1mm,比1mm小的数值,只能估计而得

图1-2 钢直尺的使用方法
a)量长度 b)量螺距 c)量宽度 d)量内孔 e)量深度 f)划线
如果用钢直尺直接去测量零件的直径尺寸(轴径或孔径),则测量精度更差。其原因是:除了钢直尺本身的读数误差比较大以外,还由于钢直尺无法正好放在零件直径的正确位置。所以,零件直径尺寸的测量,也可以利用钢直尺和内外卡钳配合起来进行。
二 内外卡钳

a)内卡钳 b)外卡钳
图1-3 内外卡钳
寸),在钢直尺上进行读数,或在钢直尺上先取下所需尺寸,再去检验零件的直径是否符合。
图1-4 卡钳钳口形状好与坏的对比
正确



![]()
(a)
错误 错误
(b) (c)
图1-5 卡钳开度的调节
2 外卡钳的使用 外卡钳在钢直尺上取下尺寸时,如图1-6(a),一个钳脚的测量面靠在钢直尺的端面上,另一个钳脚的测量面对准所需尺寸刻线的中间,且两个测量面的联线应与钢直尺平行,人的视线要垂直于钢直尺。
正确 错误

(a) (b) (c)

(d) (e)
图1-6 外卡钳在钢直尺上取尺寸和测量方法
3 内卡钳的使用 用内卡钳测量内径时,应使两个钳脚的测量面的联线正好垂直相交于内孔的轴线,即钳脚的两个测量面应是内孔直径的两端点。因此,测量时应将下面的钳脚的测量面停在孔壁上作为支点(图1-7a),上面的钳脚由孔口略往里面一些逐渐向外试探,并沿孔壁圆周方向摆动,当沿孔壁圆周方向能摆动的距离为最小时,则表示内卡钳脚的两个测量面已处于内孔直径的两端点了。再将卡钳由外至里慢慢移动,可检验孔的圆度公差,图1-7b 所示。用巳在钢直尺上或在外卡钳上取好尺寸的内卡钳去


(a) (b)
图1-7 内卡钳测量方法
测量内径,图1-8a 所示。就是比较内卡钳在零件孔内的松紧程度。如内卡钳在孔内有较大的自由摆动时,就表示卡钳尺寸比孔径内小了;如内卡钳放不进,或放进孔内后紧得不能自由摆动,就表示内卡钳尺寸比孔径大了,如内卡钳放入孔内,按照上述的测量方法能有1~2mm的自由摆动距离,这时孔径与内卡钳尺寸正好相等。测量时不要用手抓住卡钳测量,图1-8b 所示,这样手感就没有了,难以比较内卡钳在零件孔内的松紧程度,并使卡钳变形而产生测量误差。

图1-8 卡钳取尺寸和测量方法
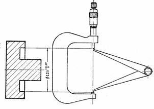
4 卡钳的适用范围 卡钳是一种简单的量具,由于它具有结构简单,制造方便、价格低廉、维护和使用方便等特点,广泛应用于要求不高的零件尺寸的测量和检验,尤其是对锻铸件毛坯尺寸的测量和检验,卡钳是最合适的测量工具。

图1-9 内卡搭外径百分尺测量内径
卡钳虽然是简单量具,只要我们掌握得好,也可获得较高的测量精度。例如用外卡钳比
较两根轴的直径大小时,就是轴径相差只有0.01mm,有经验的老师傅也能分辨得出。又如用内卡钳与外径百分尺联合测量内孔尺寸时,有经验的老师傅完全有把握用这种方法测量高精度的内孔。这种内径测量方法,称为“内卡搭百分尺”,是利用内卡钳在外径百
塞尺又称厚薄规或间隙片。主要用来检验机床特别紧固面和紧固面、活塞与气缸、活塞环槽和活塞环、十字头滑板和导板、进排气阀顶端和摇臂、齿轮啮合间隙等两个结合面之间的间隙大小。塞尺是由许多层厚薄不一的薄钢片组成(图1-10)按照塞尺的组别制成一把一把的塞尺,每把塞尺中的每片具有两个平行的测量平面,且都有厚度标记,以供组合使用。

图1-10 塞尺
测量时,根据结合面间隙的大小,用一片或数片重迭在一起塞进间隙内。例如用0.03mm的一片能插入间隙,而0.04mm的一片不能插入间隙,这说明间隙在0.03~0.04mm之间,所以塞尺也是一种界限量规。塞尺的规格见表1-1。
图1-11 是主机与轴系法兰定位检测,将直尺贴附


1-直尺 2-法兰
图1-11 用直尺和塞尺测量轴的偏移和曲折 图1-12 用塞尺检验车床尾座紧固面间隙
1. 根据结合面的间隙情况选用塞尺片数,但片数愈少愈好;
2. 测量时不能用力太大,以免塞尺遭受弯曲和折断;
3. 不能测量温度较高的工件。
表1-1 塞尺的规格
A型 | B型 | 塞尺片长度/mm | 片数 | 塞尺的厚度及组装顺序 |
组别标记 | ||||
75A13 | 75B13 | 75 | 13 | 0.02;0.02;0.03;0.03;0.04; 0.04;0.05;0.05;0.06;0.07; 0.08;0.09;0.10 |
100A13 | 100B13 | 100 | ||
150A13 | 150B13 | 150 | ||
200A13 | 200B13 | 200 | ||
300A13 | 300B13 | 300 | ||
75A14 | 75B14 | 75 | 14 | 1.00;0.05;0.06;0.07;0.08; 0.09;0.19;0.15;0.20;0.25; 0.30;0.40;0.50;0.75 |
100A14 | 100B14 | 100 | ||
150A14 | 150B14 | 150 | ||
200A14 | 200B14 | 200 | ||
300A14 | 300B14 | 300 | ||
75A17 | 75B17 | 75 | 17 | 0.50;0.02;0.03;0.04;0.05; 0.06;0.07;0.08;0.09;0.10; 0.15;0.20;0.25;0.30;0.35; 0.40;0.45 |
100A17 | 100B17 | 100 | ||
150A17 | 150B17 | 150 | ||
200A17 | 200B17 | 200 | ||
300A17 | 300B17 | 300 | ||
该文章所属专题:量具使用
1;所有标注为智造资料网zl.fbzzw.cn的内容均为本站所有,版权均属本站所有,若您需要引用、转载,必须注明来源及原文链接即可,如涉及大面积转载,请来信告知,获取《授权协议》。
2;本网站图片,文字之类版权申明,因为网站可以由注册用户自行上传图片或文字,本网站无法鉴别所上传图片或文字的知识版权,如果侵犯,请及时通知我们,本网站将在第一时间及时删除,相关侵权责任均由相应上传用户自行承担。
[complaint:内容投诉]
智造资料网打造智能制造3D图纸下载,在线视频,软件下载,在线问答综合平台 » 量具使用-1.钢直尺、内外卡钳及塞尺(图文教程)

