AutoCAD建筑制图的基础知识教程

内容简介:
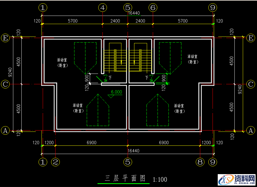
    一般情况下,房屋有几层就应画几个平面图,并在图的下方标注相应的图名,如“底层平面图”、“二层平面图”等。图名下方应加一粗实线,图名右方标注比例。当房屋中间若干层的平面布局,构造情况完全一致时,则可用一个平面图来表达这相同布局的若干层,称之为标准层平面图。
    底层平面图应画出房屋本层相应的水平投影,以及与本栋房屋有关的台阶、花池、散水等的投影;二层平面图除画出房屋二层范围的投影内容之外,还应画出底层平面图无法表达的雨篷、阳台、窗眉等内容,而对于底层平面图上已表达清楚的台阶、花池、散水等内容就不再画出;三层以上的平面图则只需画出本层的投影内容及下一层的窗眉、雨蓬等这些下一层无法表达的内容。屋顶平面图是用来表达房屋屋顶的形状、女儿墙位置、屋面排水方式、坡度、落水管位置等的图形。
AutoCAD建筑制图的基础知识教程,建筑CAD制图基础知识,制图,AutoCAD,教程,第1张

    用一假想水平剖切平面经过房屋的门窗洞口之间把房屋剖切开,移去剖切平面已上的部分,将其下面部分向H面作正投影所得到的水平剖面图。

AutoCAD建筑制图的基础知识教程,建筑CAD制图基础知识,制图,AutoCAD,教程,第2张


免责声明:
1;所有标注为智造资料网zl.fbzzw.cn的内容均为本站所有,版权均属本站所有,若您需要引用、转载,必须注明来源及原文链接即可,如涉及大面积转载,请来信告知,获取《授权协议》。
2;本网站图片,文字之类版权申明,因为网站可以由注册用户自行上传图片或文字,本网站无法鉴别所上传图片或文字的知识版权,如果侵犯,请及时通知我们,本网站将在第一时间及时删除,相关侵权责任均由相应上传用户自行承担。
[complaint:内容投诉]
智造资料网打造智能制造3D图纸下载,在线视频,软件下载,在线问答综合平台 » AutoCAD建筑制图的基础知识教程