UG编程-拆铜公与出铜公工程图纸教程!

UG编程-拆铜公与出铜公工程图纸教程!,图纸,教程,第1张

拆铜公的准则

UG编程-拆铜公与出铜公工程图纸教程!,图纸,教程,第2张

UG编程-拆铜公与出铜公工程图纸教程!,图纸,教程,第3张

拆铜公的注意事项

UG编程-拆铜公与出铜公工程图纸教程!,图纸,教程,第4张

UG编程-拆铜公与出铜公工程图纸教程!,图纸,教程,第5张

UG编程-拆铜公与出铜公工程图纸教程!,图纸,教程,第6张

UG编程-拆铜公与出铜公工程图纸教程!,图纸,教程,第7张

UG编程-拆铜公与出铜公工程图纸教程!,图纸,教程,第8张

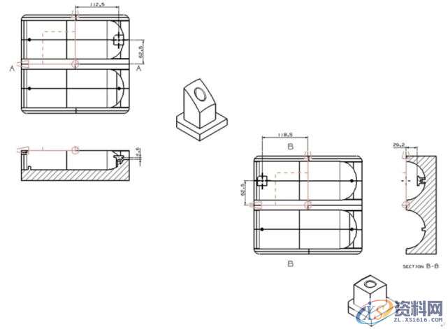
2.拆铜公具体步骤

UG编程-拆铜公与出铜公工程图纸教程!,图纸,教程,第9张

UG编程-拆铜公与出铜公工程图纸教程!,图纸,教程,第10张

UG编程-拆铜公与出铜公工程图纸教程!,图纸,教程,第11张

请输入图片描述

(1)学会调入〖注塑模工具〗工加2033825601学习UG编程具条,并把握〖创立方块〗、〖分割实体〗和〖替换实体〗等常用的功能的运用。

(2)要点把握模具中哪些部位需求拆铜公,拆成“整公”或 “散公”等。

(3)学会怎么快速创立铜公基准板。

(4)要点把握怎么使基准板的中心与加工中心的间隔为整数。

(5)避免铜公碰到侧壁,合理设置EDM冲水高度。

(6)当铜公的四周是直壁,且厚度足够时,则可不用创立基准板

KN95口罩耳带机现货、N95切片加内置鼻梁一体机、N95口罩机整套现货,预订电话:13018639977

CNC数控编程培训、塑胶模具设计培训,冲压模具设计培训,精雕、ZBrush圆雕培训、Solidworks产品设计培训、pro/E产品设计培训,潇洒职业培训学校线下、线上网络学习方式,随到随学,上班学习两不误,欢迎免费试学!

联系电话:13018639977(微信同号)QQ:2033825601

学习地址:东莞市横沥镇新城工业区兴业路121号-潇洒职业培训学校

免责声明:
1;所有标注为智造资料网zl.fbzzw.cn的内容均为本站所有,版权均属本站所有,若您需要引用、转载,必须注明来源及原文链接即可,如涉及大面积转载,请来信告知,获取《授权协议》。
2;本网站图片,文字之类版权申明,因为网站可以由注册用户自行上传图片或文字,本网站无法鉴别所上传图片或文字的知识版权,如果侵犯,请及时通知我们,本网站将在第一时间及时删除,相关侵权责任均由相应上传用户自行承担。
[complaint:内容投诉]
智造资料网打造智能制造3D图纸下载,在线视频,软件下载,在线问答综合平台 » UG编程-拆铜公与出铜公工程图纸教程!