一.分模篇
注塑模具设计分模可分为两种;自动分模与手动分模,现在的设计师手动分模用得最多,想学习模具设计分模的朋友建议也学手动分模,下面我来教大家如何用手动分模方式来分模,我们以丰田标志的产品作为案例,希望对大家有帮助(针对的对象是初学者)。

1.首先先将产品拔好模,然后利用“缩放体”命令将产品方缩水,缩水率为1.005,如图所示

2.利用“扩大面”命令,创建分型面,分型线是产品的最大轮廓截面上,如图所示


3.利用“修剪片体”命令,修剪分型面,修剪边界选择产品的最大轮廓线,如图所示


4.利用注塑模向导里的“创建方块”命令,将产品包起来,选择体的面,间隙设置为30mm,结果如图所示

5.创建出来的包块用“求差”命令与产品求差,然后利用“拆分体”命令将包块拆分成前后模仁,工具选项选择面或平面,结果如图所示

6.拆分后的结果如图所示


二.浇注系统的确定
浇注系统是由主流道、分流道、冷料井和浇口组成,浇口的类型、数量、大小和位置的选择直接影响到产品的品质,浇口的位置可以用模流分析软件分析出来,但很多情况下都是凭着经验去确定浇口位置。我们以丰田标志的产品作为案例,分析一下此产品如何进胶。
1.确定浇口位置
(1)首先外观面不允许进胶,影响产品美观,如下图黄色面都属于外观面。

(2)后模四处外侧倒扣要做滑块(绿色),做滑块的地方无法进胶,所有只剩下四处位置,如下图红色箭头所示。

2.确定浇口类型
(1)浇口类型的选择是根据塑料特性来选取,如下表格所示。

(2)浇口类型优先选择自动断水口,能自动断水口的进胶类型有细水口点进胶、潜水进胶、牛角潜水进胶、热流道点进胶等,细水口点进胶需要三板模,成本高暂不考虑,热流道点进胶成本更高,所以我们考虑用潜水进胶,此产品塑胶材料为ABS,查表可知ABS料适用于所有类型的浇口。观察4处可进胶位置,可选择潜骨位进胶

3.确定浇口数量
(1)此产品的尺寸为:62.81X62.81X24.99mm,属于小产品,一般情况下小于120mm以下的产品用一个胶口进胶即可

4.产品排位的确定
(1)此产品外侧有4个滑块,无法排很多穴,最佳的排位方式为1出2,模胚可以用两板模,且流道好设计,如下图所示


三、模仁大小的确定
模仁的大小是根据产品的大小、产品的形状、型腔数及排位有关,通常产品尺寸越大,型腔数越多,那么所需采用的模仁、模架的尺越大,加工时间也就越长,因此价格也就越高,我们以丰田标志产品作为实例,来跟大家讲解如何确定模仁大大小。
1.模仁大小的确认可参照以下经验表格来取数



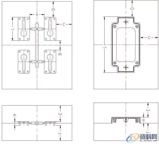
2.A值的确定
A值是表示两产品之间的距离,中间有流道,进胶方式和排位方式我们已经确认了,见(丰田标志注塑模具设计之浇注系统的确定)的贴,此产品外侧需做四个滑块抽芯,A值的确定无法根据表格经验值取数,必须先绘制出滑块,防止A值定的距离太小,滑块会打架,如下图所示滑块需要的空间距离比较多,A值取75-80mm才足够

3.C值与D值得确定
一般情况下C值= D值,此产品的尺寸为62.81X62.81X24.99,L值是在0-80范围偏上,查经验值取25-30mm确认好以后模仁的长宽就可以确定了,一般情况下模仁的长宽取10的倍数,如下图所示

4.前模仁厚度的确定
想要确定前模仁的厚度,必须先测量H值,再确定E值,经过测量H值(胶位深度)=7.6mm,产品L在0-80mm范围,且是偏大值,查经验表E值可选25-30mm,模仁的厚度一般取5的倍数,结果图所示

5.后模仁厚度的确定
想要确定后模仁的厚度,必须先测量后模H值,再确定F值,经过测量后模H值(胶位深度)=17mm,产品L在0-80mm范围,且是偏大值,查经验表F值可选25-30mm,如果有滑块、斜顶等机构,需在原基础上加5-10mm,保证模仁的强度,模仁的厚度一般取5的倍数,后模仁厚度=17+30+(5-10)=55,结果图所示
编辑

东莞潇洒职业培训学校开设课程有:数控编程培训、塑胶模具设计培训,冲压模具设计培训,精雕、ZBrush圆雕培训、Solidworks产品设计培训、pro/E产品设计培训、AutoformR7工艺分析培训,潇洒职业培训学校线下、线上网络学习方式,随到随学,上班学习两不误,欢迎免费试学!联系电话:13018639977
联系电话:13018639977(微信同号)QQ:2033825601
学习地址:东莞市横沥镇新城工业区兴业路121号-潇洒职业培训学校
1;所有标注为智造资料网zl.fbzzw.cn的内容均为本站所有,版权均属本站所有,若您需要引用、转载,必须注明来源及原文链接即可,如涉及大面积转载,请来信告知,获取《授权协议》。
2;本网站图片,文字之类版权申明,因为网站可以由注册用户自行上传图片或文字,本网站无法鉴别所上传图片或文字的知识版权,如果侵犯,请及时通知我们,本网站将在第一时间及时删除,相关侵权责任均由相应上传用户自行承担。
[complaint:内容投诉]
智造资料网打造智能制造3D图纸下载,在线视频,软件下载,在线问答综合平台 » 一看就会的丰田车标图解分模过程

