1.引言
笔记本电脑外壳分为A、B、C和D四大部件,笔记本A壳:显示屏最上面的盖子,大盖子,为A壳,见图1(a)所示。笔记本B壳:显示屏里面的边框(看屏幕的时候,旁边的边),见图1(b)所示。笔记本C壳:键盘旁边的外壳,为C壳,手托位置, 见图1(c)所示。笔记本D壳:机器最底部与桌面接触的位置是D壳, 见图1(d)所示。笔记本外壳是主板、处理器等功能运行部件的载体和保护壳,集成了工艺设计、材料、体积控制、重量控制、散热控制、坚固安全性、环保性等一系列重要性。笔记本外壳材料有ABS工程塑料、镁铝合金、钛合金、碳纤维合金、PC-GF(聚碳酸脂PC)等,其中,以PC+ABS和铝镁合金最常见,这两者也是应用最广泛的笔记本外壳材料。本文介绍PC+ABS材质的笔记本C壳的模具设计。

图1 笔记本电脑外壳分类
2.制品分析
笔记本C壳产品图如图1所示,塑件最大外形尺寸为276.50 mm X 228.30 mm X 9.30 mm,塑件平均胶位厚度1.50mm,按键区域的厚度1.20 mm,塑件质量78.5克,材料为PC+ABS,缩水率为0.37%.
塑件的外观要求是不得存在各种注塑缺陷,塑件不得翘曲变形。PC+ABS融合了PC和ABS各自的优点,与PC相比,PC+ABS合金主要改善了熔融流动性、成型性、可电镀性及外观性。与ABS相比,则主要提高了耐热性、抗冲性及薄壁制品的刚性。
PC+ABS在成型加工前必须进行干燥,使材料含水量降至0.05%以下,最好在0.02%以下,以提高材料加工稳定性能和机械性能。在成型PC+ABS时使用模温机来控制模具温度,建议的模温是50-80℃。较高的模具温度,往往会产生良好的流动、较高的熔接线强度、较小的产品内应力,但成型周期会延长。若模具温度比建议的低,就会导致高内应力并损坏制件的最佳性能。就制件表面和循环周期而言,模具温度为建议温度范围的中间值时,可望得到较好的结果。
塑件两处需要设计滑块抽芯,中间鼠标触摸屏部位窗口边缘两处扣位需要设计斜顶成型,见图2.


图2笔记本C壳产品图
3.模具设计要点
3.1型腔数量
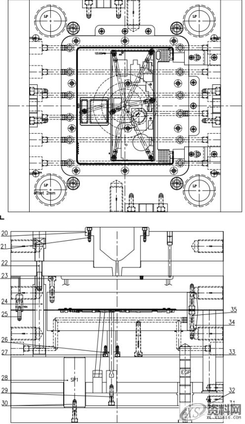
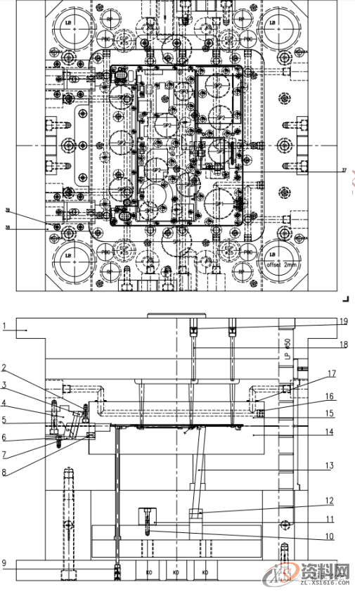
塑件尺寸较大,需要的注塑机吨位较大,因此只能设计1出1的型腔排位。模具设计图见图3,模胚为FCI4550A80B110C120.四边配有零度边锁,以便精密定位。所选择的注塑机为250吨注塑机,经核算,塑化能力和合模力符合要求。
3.2进浇方式设计
塑件尺寸较大,属于扁平薄壁壳体。塑件的流长比较大。因此,确定浇口的位置和数量都比较关键。模具设计中选择了8点进胶,见模具设计图。其中键盘位置6点点浇口进胶,浇口参数见图7。另外两点为大水口搭接式进胶,见图8。
3.3侧向抽芯系统设计
2个滑块尺寸较小,选择斜导柱驱动的后模滑块抽芯。两处斜顶均为T槽滑动的斜顶。
3.4 镶件设计
前后模仁尺寸较大,直接镶入模板精框内的难度较大,因此前后模仁分别设计了挤紧块,以基准角为基准,远离基准角的两个边,模框加大1mm,压入挤紧块。后模仁小镶件,有两种镶法,一种为挂台,一种为锥度,各有特点。小镶件挂台设计有很多优点:一是少了模架和镶件的钻孔和攻丝加工;二是简化模具组装工作量;第三是能够避免漏装螺丝失误发生的可能性。挂台设计要点如下:(1)镶件的挂台应选在镶件的长边上,同时要避开曲线部位。(2)必须保证挂台及所在部位可以磨削或者线切割加工。(3)短的挂台要避开扁顶杆,以免干涉。(4)总之,挂台的设计一定要考虑加工工艺,不可随意设计。(5)镶件的底部有运水胶圈时,不要用挂台,应该用螺丝固定,防止漏水。







3.5冷却系统设计
模具设计了良好的冷却系统,见模具设计图3。
3.6 顶出系统
塑件的顶出除了斜顶之外,还设计了司筒和顶针顶出,见模具设计图2.
东莞潇洒职业培训学校开设课程有:数控编程培训、塑胶模具设计培训,冲压模具设计培训,精雕、ZBrush圆雕培训、Solidworks产品设计培训、pro/E产品设计培训、AutoformR7工艺分析培训,潇洒职业培训学校线下、线上网络学习方式,随到随学,上班学习两不误,欢迎免费试学!联系电话:13018639977
联系电话:13018639977(微信同号)QQ:2033825601
学习地址:东莞市横沥镇新城工业区兴业路121号-潇洒职业培训学校
1;所有标注为智造资料网zl.fbzzw.cn的内容均为本站所有,版权均属本站所有,若您需要引用、转载,必须注明来源及原文链接即可,如涉及大面积转载,请来信告知,获取《授权协议》。
2;本网站图片,文字之类版权申明,因为网站可以由注册用户自行上传图片或文字,本网站无法鉴别所上传图片或文字的知识版权,如果侵犯,请及时通知我们,本网站将在第一时间及时删除,相关侵权责任均由相应上传用户自行承担。
[complaint:内容投诉]
智造资料网打造智能制造3D图纸下载,在线视频,软件下载,在线问答综合平台 » 笔记本C壳注射模设计要点

