中望CAD制图的时候,在布局视图中,可以切换【图纸】、【模型】,确定图形在图纸上的相对位置后,我们可以在布局视图中通过移动功能进行调整图形。
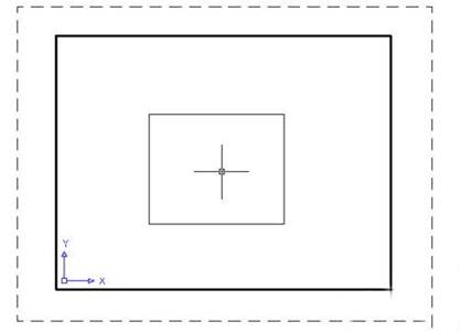
1、打开CAD的页面,切换至【布局1】视图,当前为【布局1】视图,

2、此时为【图纸】空间,点击【图纸】切换至【模型】。在【模型】空间下画一个矩形,通过该矩形来说明【图纸】与【模型】空间的区别。

3、将十字指针置于矩形里面(也可置于外面),然后滑动滚轮,发现矩形变大或缩小了,放大到超过粗线框时,超过部分不显示。该粗线框称为【视口】,可通过菜单栏【视图】——【视口】新建,它限制制图的范围,超过部分不显示。另,此时的矩形是可选中并可编辑的。

4、再切换至【图纸】,滑动滚轮,发现页面缩小或放大了。此时,该矩形是不可选中及编辑的;视口则可编辑。相似的,在【图纸】下的绘画在【模型】下是不可选中及编辑的。

5、通过这两种模式的特性,在绘画时适时转换,比如在【模型】下进行制图,在【图纸】下进行放缩,避免图形的移位及放缩。图形的移动可通过右方工具条中的【移动】来进行。
6、先选中你要移动的图形,然后点击【移动】。同时可将下方的【对象捕捉】打开,此时将指针移至图形边上,有小正方形(或三角形或漏斗形)出现,左键点击,再移动时发现图形跟着指针移动了,当确认好移动最终位置时,再次点击,图形移动成功。

免责声明:
1;所有标注为智造资料网zl.fbzzw.cn的内容均为本站所有,版权均属本站所有,若您需要引用、转载,必须注明来源及原文链接即可,如涉及大面积转载,请来信告知,获取《授权协议》。
2;本网站图片,文字之类版权申明,因为网站可以由注册用户自行上传图片或文字,本网站无法鉴别所上传图片或文字的知识版权,如果侵犯,请及时通知我们,本网站将在第一时间及时删除,相关侵权责任均由相应上传用户自行承担。
[complaint:内容投诉]
智造资料网打造智能制造3D图纸下载,在线视频,软件下载,在线问答综合平台 » 中望CAD中如何在布局视图移动图形(图文教程)
1;所有标注为智造资料网zl.fbzzw.cn的内容均为本站所有,版权均属本站所有,若您需要引用、转载,必须注明来源及原文链接即可,如涉及大面积转载,请来信告知,获取《授权协议》。
2;本网站图片,文字之类版权申明,因为网站可以由注册用户自行上传图片或文字,本网站无法鉴别所上传图片或文字的知识版权,如果侵犯,请及时通知我们,本网站将在第一时间及时删除,相关侵权责任均由相应上传用户自行承担。
[complaint:内容投诉]
智造资料网打造智能制造3D图纸下载,在线视频,软件下载,在线问答综合平台 » 中望CAD中如何在布局视图移动图形(图文教程)

