UG模具设计如何轻松快速关闭自动标注

在UG的草图里面,每画一步都会出现一个标注,我们常常因为标注多而看不清楚图,所以今天李老师就来简单的分享一下UG里面的隐藏标注

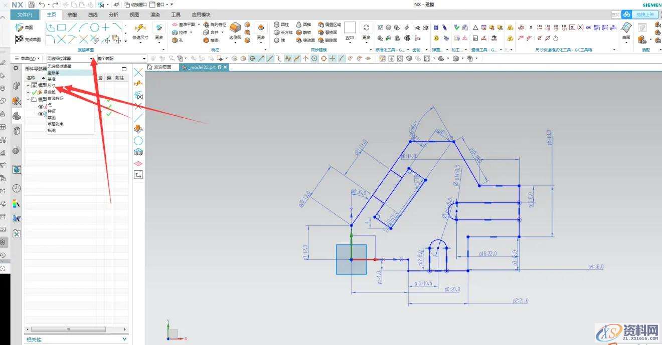
1、首先打开UG软件、调出一张草图

UG模具设计如何轻松快速关闭自动标注,模具设计,标注,第1张

2、鼠标点击左下角的三角形、选择下面的尺寸,效果图如下:

UG模具设计如何轻松快速关闭自动标注,模具设计,标注,第2张

3、鼠标点击尺寸后按住快捷键CTRL+A会自动选中草图的尺寸,效果图如下:

UG模具设计如何轻松快速关闭自动标注,模具设计,标注,第3张

4、选中之后、在输入CTRL+B,隐藏所有的尺寸,效果图如下:

UG模具设计如何轻松快速关闭自动标注,模具设计,标注,第4张

5、已经隐藏完了,一定要把尺寸修改“无选择过滤器”效果图如下:

UG模具设计如何轻松快速关闭自动标注,模具设计,标注,第5张

学会了吗?简单又比较实用的小技巧,今天就分享到这里了,记得关注我学习更多UG小知识!!

(文章转载于网络、仅供学习分享,如有侵权请联系删除)
东莞潇洒职业培训学校目前开设课程有:学历提升、积分入户、数控编程培训、塑胶模具设计培训,压铸模具设计培训、冲压模具设计培训,精雕、ZBrush圆雕培训、Solidworks产品设计培训、pro/E产品设计培训、AutoformR7工艺分析培训,非标自动化设计、PLC编程、CNC电脑锣操机、平面设计等培训,潇洒职业培训学校线下、线上等网络学习方式,随到随学,上班学习两不误,欢迎免费试学!
联系电话:13018636633(微信同号)  QQ:1740467385
学习地址:东莞市横沥镇新城工业区兴业路121号-潇洒职业培训学校

免责声明:
1;所有标注为智造资料网zl.fbzzw.cn的内容均为本站所有,版权均属本站所有,若您需要引用、转载,必须注明来源及原文链接即可,如涉及大面积转载,请来信告知,获取《授权协议》。
2;本网站图片,文字之类版权申明,因为网站可以由注册用户自行上传图片或文字,本网站无法鉴别所上传图片或文字的知识版权,如果侵犯,请及时通知我们,本网站将在第一时间及时删除,相关侵权责任均由相应上传用户自行承担。
[complaint:内容投诉]
智造资料网打造智能制造3D图纸下载,在线视频,软件下载,在线问答综合平台 » UG模具设计如何轻松快速关闭自动标注