塑胶模具设计之复杂的票据打印机设计方法

一.产品分析

票据打印机面壳产品图如图1所示,塑件最大外形尺寸为129.2mm x 71.20mmx67.20 mm,塑件平均胶位厚度为2.30mm,材料为PS,收缩率为1.005,塑件质量为67.52克。

塑胶模具设计之复杂的票据打印机设计方法,模具设计,打印机,塑胶,第1张

图1票据打印机面壳产品图

塑件凹坑处存在倒扣需要走前模滑块,另外一端面需要设计后模滑块。

二.模具设计要点

1.型腔排位:

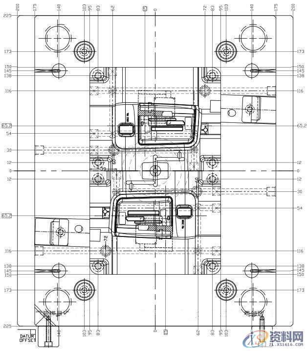
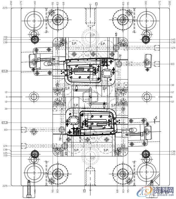
根据塑件的生产批量,结合客户指定的注射机吨位,确定型腔数量为2,模具采用LKM GCI3545A100 B120 C100标准模胚。GCI模胚便于设计前模滑块。

塑胶模具设计之复杂的票据打印机设计方法,模具设计,打印机,塑胶,第2张

图2票据打印机面壳产品图

2.浇注系统设计:

熔融塑料从主流道射入分流道后,通过侧浇口分别充满两个型腔。

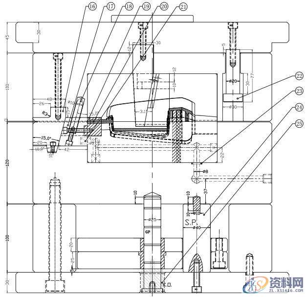
在注射成型生产中,模具的浇口套口部经常会出现流道废料的拉丝现象,使得流道废料挂在动定模之间不易掉落,从而影响模具的全自动生产。在浇口套的端面线切割槽,并镶进去一个防止拉丝的隔片,此举大幅度提高了浇口部分的冷却效果,从而使注塑机喷嘴部分的拉丝现象得以明显改善。如图3所示,此隔片可以用废弃的0.5mm厚的锯片加工而成,过盈配合镶紧。如果需要人工清除成型塑件的流道废料,需要从型腔侧去除。见图5.

缩短注射周期的关键在于减少模具的冷却时间。塑件在模具里最后冷却的部位就是图6中A 和C 相连接的部位,这个部位胶位最厚,开模顶出时流道内部尚未完全凝固,如果冷却时间过短,就会出现流道的不规则变形致使机械手无法抓取,也有可能出现主流道断在浇口套里的现象,冷却时间过长又会影响注射周期。为了解决这一现象,在主流道和分流道处增加两条骨位(凸起),俗称“火箭骨”,如图4中的B,火箭骨厚度1mm,高度为3~5mm,具有很好的实际效果,能有效地缩短注射周期。

塑胶模具设计之复杂的票据打印机设计方法,模具设计,打印机,塑胶,第3张

图3票据打印机面壳产品图

3.顶出系统设计

塑件的顶出采用顶针和司筒顶出。在顶针底板上增加一个圆柱形的顶出镶件,开模顶出时,注塑机顶杆首先和模具的顶出镶件接触,缩短了顶出行程,有利于缩短注射周期。同时,还可以减小顶杆底板的弯曲变形。

塑胶模具设计之复杂的票据打印机设计方法,模具设计,打印机,塑胶,第4张

图4票据打印机面壳产品图

4.冷却系统设计:前后模都设计了相应的冷却回路。

5.侧向抽芯系统设计:前模滑块采用T型槽驱动的抽芯机构,后模滑块采用斜导柱驱动,铲机反铲。

塑胶模具设计之复杂的票据打印机设计方法,模具设计,打印机,塑胶,第5张

图5票据打印机面壳产品图

塑胶模具设计之复杂的票据打印机设计方法,模具设计,打印机,塑胶,第6张

图6票据打印机面壳模具图

微信搜索 UG模具设计砖家 关注学习不迷路,点击主页可查看更多干货内容!

每晚八点有免费直播课程学习,公众号回复学习即可进入课堂!

喜欢老师作品可以转发或收藏,同时请继续关注后期会推出高质量视频和技术资料!

塑胶模具设计之复杂的票据打印机设计方法,模具设计,打印机,塑胶,第7张

图7左防止拉丝隔片 右B为火箭骨

东莞潇洒职业培训学校目前开设课程有:学历提升、积分入户、数控编程培训、塑胶模具设计培训,压铸模具设计培训、冲压模具设计培训,精雕、ZBrush圆雕培训、Solidworks产品设计培训、pro/E产品设计培训、AutoformR7工艺分析培训,非标自动化设计、PLC编程、CNC电脑锣操机、平面设计等培训,潇洒职业培训学校线下、线上等网络学习方式,随到随学,上班学习两不误,欢迎免费试学!
联系电话:13018636633(微信同号)  QQ:1740467385
学习地址:东莞市横沥镇

免责声明:
1;所有标注为智造资料网zl.fbzzw.cn的内容均为本站所有,版权均属本站所有,若您需要引用、转载,必须注明来源及原文链接即可,如涉及大面积转载,请来信告知,获取《授权协议》。
2;本网站图片,文字之类版权申明,因为网站可以由注册用户自行上传图片或文字,本网站无法鉴别所上传图片或文字的知识版权,如果侵犯,请及时通知我们,本网站将在第一时间及时删除,相关侵权责任均由相应上传用户自行承担。
[complaint:内容投诉]
智造资料网打造智能制造3D图纸下载,在线视频,软件下载,在线问答综合平台 » 塑胶模具设计之复杂的票据打印机设计方法