一.产品介绍
电子安全气囊系统是一种被动安全性的保护系统,它与座椅安全带配合使用,可以为乘员提供有效的防撞保护。在汽车相撞时,汽车安全气囊可使头部受伤率减少25%,面部受伤率减少8 0%左右。主要由安全气囊传感器、防撞安全气囊及电子控制装置等组成。驾驶员侧防撞安全气囊装置在方向盘中;乘员侧防撞安全气囊装置一般装在仪表板上。
安全气囊传感器分别安装在驾驶室间隔板左、右侧及中部;中部的安全气囊传感器和安全气囊系统与电子控制装置安装在一起。气囊组件主要由安全气囊、气体发生器和点火器等组成。电子控制装置如用来进行数据采集与数据处理、诊断安全气囊的可靠性,保证在达到预设的数值时,及时发出点火信号,而且正时点火,保证驱动气体发生器有足够大的驱动电流等。本文以某品牌汽车驾驶员侧防撞安全气囊为例,说明此类塑件模具设计的特点。
图1安全气囊壳体产品图
DYM100BK 为TPEE 热塑性聚酯弹性体的一种商品名称,是含有聚酯硬段和聚醚软段的嵌段共聚物。其中聚醚软段和未结晶的聚酯形成无定形相聚酯硬段部分结晶形成结晶微区,起物理交联点的作用。
TPEE 的主要特性:
一、优异的抗弯曲疲劳性能;
二、优异的耐冲击性能,尤其在-50℃;
三、极好的高温性能(120℃);
四、良好的抗撕裂性和耐磨性;
五、出色的耐化学性和耐候性 ;
六、优异的电性能;
TPEE 用于要求减震、耐冲击、耐高温、耐辐射、耐曲挠、具密封性、有弹性、耐油、耐化学品并要求足够强度的领域,如:汽车部件之安全气囊外壳,其它气囊注射用树脂如下图2:
图2安全气囊壳体材料图
二.产品分析
驾驶员侧防撞安全气囊装置在方向盘中,其塑件产品图如图1 所示。DYM100BK 为安全气囊注射用专门材料,硬度为45 度。Hytel®热塑性聚酯弹性体为多项零件和组件提供致胜的性能组合, 它具有橡胶的弹性、塑料的强度和热塑性塑料的易加工性。Hytel®热塑性聚酯弹性体为多项零件和组件提供致胜的性能组合, 它具有橡胶的弹性、塑料的强度和热塑性塑料的易加工性。Hytel®热塑性聚酯弹性体为多项零件和组件提供致胜的性能组合, 它具有橡胶的弹性、塑料的强度和热塑性塑料的易加工性。图1
三.产品设计
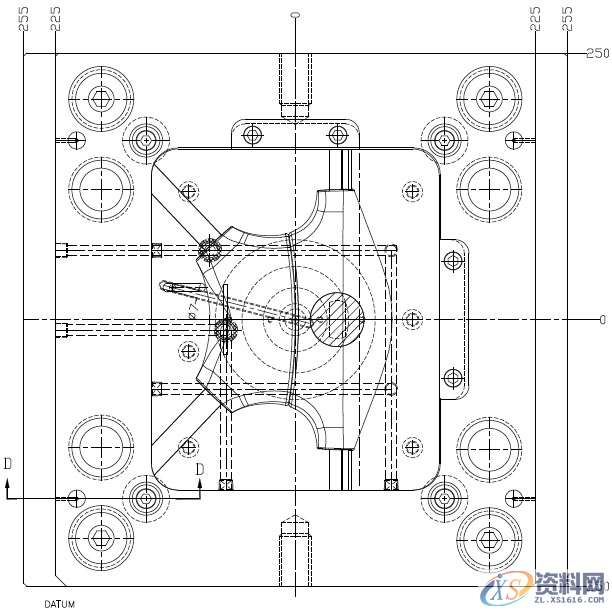
塑件最大外形尺寸为241.51 mm x 181.20 mm x71.85 mm,材料为TPEE,收缩率为1.015,从图1 可以看出,塑件内侧有两处大面积侧凹,需要设计大型斜顶成型,给模具设计带来难度。塑件形状呈扁平型,尺寸较大,模具排位适合1 出1,模架型号DCI4550 A120 B140 C180,模架的精框在模架厂加工,以减少模架变形。
图3安全气囊壳体模具图
在设计浇注系统时,考虑到塑件为大面积外观零件,其塑件表面不能设计点浇口。因此,将浇口设计在塑件的动模侧,潜伏式浇口,这样不会影响塑件外观。为了避免模具排位偏心,模架为细水口模架,浇注系统为细水口转大水口,潜伏式进胶。细水口转大水口处连接点直径为2mm,这个尺寸非常关键,过小会使进胶困难,增加注射压力。
图4安全气囊壳体模具图
过大则会使连接点断裂困难。大型斜顶的设计见模具图2,其斜度分别为15゜(左边)和10゜(右边),行程分别为左边28.4mm,右边18.7mm,由于塑件胶位包在斜顶上面积较大,注塑时热量较为集中,因此,大型斜顶必须设计冷却水路。本套模具采用了保留斜顶中间部分导滑,两侧设计冷却水路,这样充分保证了冷却水嘴在斜顶移动时的管路运动空间。塑件尺寸较大,模仁尺寸为270 mm x 320 mm,因此,定模板和动模板上前后模仁的镶入均采用挤紧块压紧的方式,克服大型模仁边缘磨削的困难。
图5安全气囊壳体模具图
图6安全气囊壳体模具图
东莞潇洒职业培训学校目前开设课程有:学历提升、积分入户、数控编程培训、塑胶模具设计培训,压铸模具设计培训、冲压模具设计培训,精雕、ZBrush圆雕培训、Solidworks产品设计培训、pro/E产品设计培训、AutoformR7工艺分析培训,非标自动化设计、PLC编程、CNC电脑锣操机、平面设计等培训,潇洒职业培训学校线下、线上等网络学习方式,随到随学,上班学习两不误,欢迎免费试学!
联系电话:13018636633(微信同号) QQ:1740467385
学习地址:东莞市横沥镇
1;所有标注为智造资料网zl.fbzzw.cn的内容均为本站所有,版权均属本站所有,若您需要引用、转载,必须注明来源及原文链接即可,如涉及大面积转载,请来信告知,获取《授权协议》。
2;本网站图片,文字之类版权申明,因为网站可以由注册用户自行上传图片或文字,本网站无法鉴别所上传图片或文字的知识版权,如果侵犯,请及时通知我们,本网站将在第一时间及时删除,相关侵权责任均由相应上传用户自行承担。
[complaint:内容投诉]
智造资料网打造智能制造3D图纸下载,在线视频,软件下载,在线问答综合平台 » 塑胶模具设计:一个好的汽车安全气囊壳体是这样设计的

