一. 塑件分析
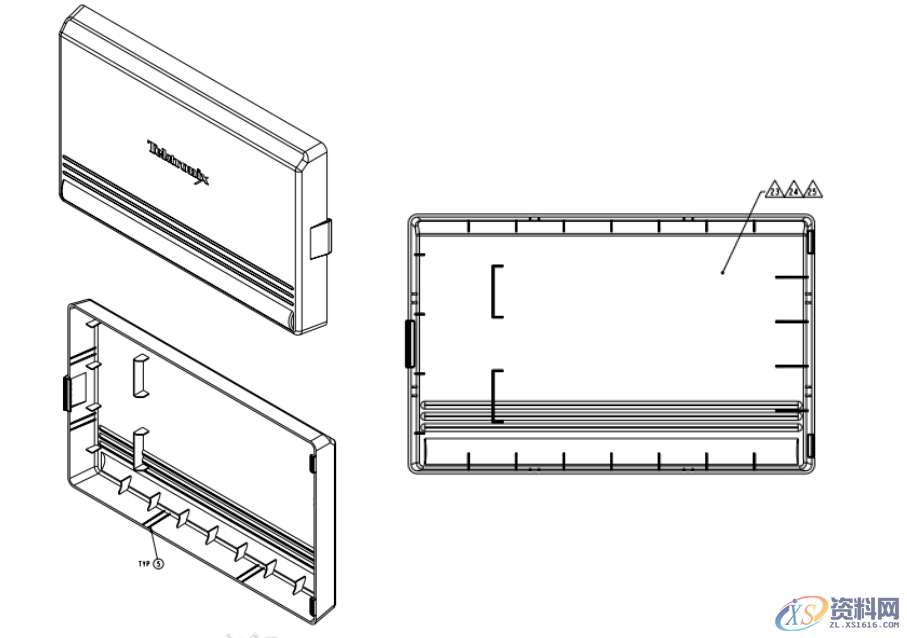
某电器保护盖产品如图1 所示, 材料为 PC+ABS, 收缩率为 5 ‰, PC/ABS是一种通过混炼后合成的改性工程塑料,俗称塑料合金。其中, PC 塑胶原料就是聚碳酸脂, ABS 就是丙烯腈( A)、丁二烯( B)和苯乙 烯( S)的共聚物。这种改性塑料比单纯的 PC 和 ABS 性能更好,例如:抗冲击性提高,耐热性提高,硬度提高等等。
图1-1 保护盖产品图
PC/ABS 塑胶原料作为世界上销售量最大的商业化聚合物合金,近几年都以 10%左右的需求速度增长。PC/ABS 较之 PC 提高了流动性,改善了加工性能,减少了制品对应力的敏感性,因而广泛应用于汽车内饰,外饰,车灯等高强度,高耐热零件。
图1-2保护盖产品图
随着人们环保意识的提高,汽车行业 ELV 等环保可回收法规的相继出台,原材料厂商也不断提供新的解决方案。 电器保护盖产品正是利用了 PC/ABS 的耐冲击强度高的特性。 从产品图中可以看出,该产品尺寸为英制,尺寸较大,外表面为外观面,不允许存在进胶痕迹,因此选择了倒装模具的结构。
图1-3保护盖产品图
二.模具设计方案
1.保护盖模具设计图见图2-1和2-2 为避免在塑件表面出现进料痕 , 保证进料均匀, 模具采用倒装式结构,直接大水口进胶 , 浇口在成型后去除。
2. 制品的分型面的选取见模具图, 制品尺寸较大,排位采取 1 出 1。
3.该模具属于出口美国的模具,模具设计思路整体采用北美地区的模具设计理念,模胚为直身模胚, 顶部无面板。
4. 动模的 3 处斜顶采用三节棍式设计,这是美国著名标准件厂家 PCS 的标准斜顶结构,斜顶的回位设计了行程开关。
图 2-1保护盖模具图
5.为了保证动定模合模的准确性,模胚的四边设计了 4 个精定位边锁, 由模胚厂家安装, 给模具导向。
6. 模具中心设计了流道衬套,便于注塑机加长喷嘴通过,同时为定模提供支撑,起到撑头的作用。
图 2-2保护盖模具图
7. 动定模仁设计了充分的运水, 保证了冷却效果。 保护盖模具运水图见图 3.
图3保护盖模具运水图
8.模具动模的骨位都设计了排气镶件,简化了加工。 保护盖模具动模镶件图见图 4.
图4保护盖模具动模镶件图
9. 倒装模具顶出系统的回位,大多采用油缸顶出,出口美国的模具一般采用 PARKER 和 MILLER 两个品牌的油缸。 为了保证顶出的平衡, 模具两侧的两个顶出油缸需要进油平衡,即设计集中进油块,确保两个油缸的管路长度相等,进油平衡。
10.两侧由于存在油缸,为了模具能平稳放置,设计了支撑腿,见照片。
图 5 保护盖模具照片1
11.出口模具需要设计锁模片,确保模具在运输过程中不至于分型面打开,以免损坏。 锁模片见图 7 中黄色零件。 顶针板也要设计固定装置,防止运输中移动,碰坏型腔,见图5 的照片。
图6保护盖模具照片2
12.塑件的顶出除了有 3 支斜顶外,还设计了扁顶针和圆顶针,扁顶针布置在骨位的底部。 出口美国的模具扁顶针需要镀钛,增加耐磨度。
图7保护盖模具照片3
三.总结
此保护盖属于特大批量生产模具, 客户之前已经开了一套模具, 一套模具从寿命和生产效率都无法满足生产需求,因此客户决定开第二套模具, 通过投产后的实践证明, 模具设计合理, 完全满足大批量生产的要求。 可供同类模具设计时参考。
东莞潇洒职业培训学校目前开设课程有:学历提升、积分入户、数控编程培训、塑胶模具设计培训,压铸模具设计培训、冲压模具设计培训,精雕、ZBrush圆雕培训、Solidworks产品设计培训、pro/E产品设计培训、AutoformR7工艺分析培训,非标自动化设计、PLC编程、CNC电脑锣操机、平面设计等培训,潇洒职业培训学校线下、线上等网络学习方式,随到随学,上班学习两不误,欢迎免费试学!
联系电话:13018636633(微信同号) QQ:1740467385
学习地址:东莞市横沥镇
1;所有标注为智造资料网zl.fbzzw.cn的内容均为本站所有,版权均属本站所有,若您需要引用、转载,必须注明来源及原文链接即可,如涉及大面积转载,请来信告知,获取《授权协议》。
2;本网站图片,文字之类版权申明,因为网站可以由注册用户自行上传图片或文字,本网站无法鉴别所上传图片或文字的知识版权,如果侵犯,请及时通知我们,本网站将在第一时间及时删除,相关侵权责任均由相应上传用户自行承担。
[complaint:内容投诉]
智造资料网打造智能制造3D图纸下载,在线视频,软件下载,在线问答综合平台 » 倒装模具设计案例:电器保护盖的注塑设计

