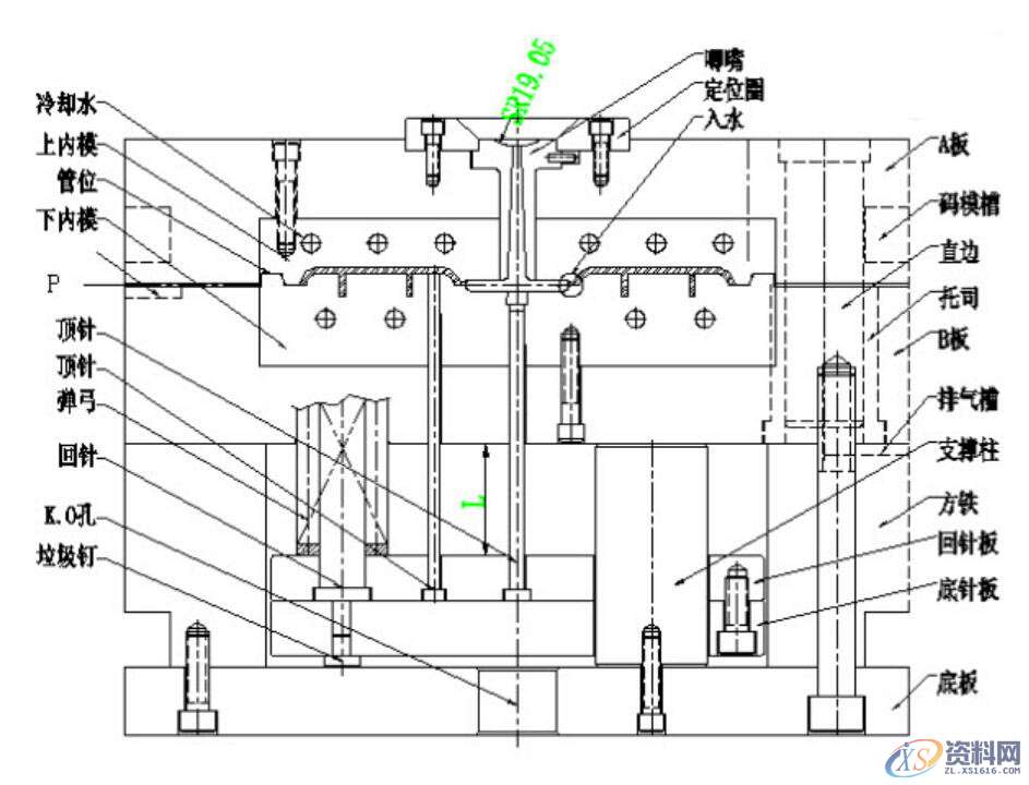
塑胶模具设计由这10大系统构成,新手赶紧收藏
1.结构系统:模架、支撑柱、限位柱等。
2.成型系统:母模仁、公模仁、镶件等。
3.浇注系统:主流道、分流道、浇口、冷料井等。
4.导向定位系统:导柱导套、零度精定位、锥度精定位等。
5.顶出系统:顶针、司筒针、推板、气顶、螺纹顶出、复合顶出等。
6.温控调节系统:水路、水塔、喷管等。
7.排气系统:分型面排气、镶件排气、顶针排气、排气钢等。
8.抽芯系统:前模抽芯、后模抽芯,斜顶等。
9.标准件系统:螺丝、顶针、防水圈等。
10.安全复位系统:微动开关、强制回位等。



东莞潇洒职业培训学校目前开设课程有:学历提升、积分入户、数控编程培训、塑胶模具设计培训,压铸模具设计培训、冲压模具设计培训,精雕、ZBrush圆雕培训、Solidworks产品设计培训、pro/E产品设计培训、AutoformR7工艺分析培训,非标自动化设计、PLC编程、工业机器人、CNC电脑锣操机、平面设计等培训课程,潇洒职业培训学校线下、线上等网络学习方式,随到随学,上班学习两不误,欢迎免费试学!
联系电话:13018636633(微信同号) QQ:1740467385
免责声明:
1;所有标注为智造资料网zl.fbzzw.cn的内容均为本站所有,版权均属本站所有,若您需要引用、转载,必须注明来源及原文链接即可,如涉及大面积转载,请来信告知,获取《授权协议》。
2;本网站图片,文字之类版权申明,因为网站可以由注册用户自行上传图片或文字,本网站无法鉴别所上传图片或文字的知识版权,如果侵犯,请及时通知我们,本网站将在第一时间及时删除,相关侵权责任均由相应上传用户自行承担。
[complaint:内容投诉]
智造资料网打造智能制造3D图纸下载,在线视频,软件下载,在线问答综合平台 » 塑胶模具设计由这10大系统构成,新手赶紧收藏
1;所有标注为智造资料网zl.fbzzw.cn的内容均为本站所有,版权均属本站所有,若您需要引用、转载,必须注明来源及原文链接即可,如涉及大面积转载,请来信告知,获取《授权协议》。
2;本网站图片,文字之类版权申明,因为网站可以由注册用户自行上传图片或文字,本网站无法鉴别所上传图片或文字的知识版权,如果侵犯,请及时通知我们,本网站将在第一时间及时删除,相关侵权责任均由相应上传用户自行承担。
[complaint:内容投诉]
智造资料网打造智能制造3D图纸下载,在线视频,软件下载,在线问答综合平台 » 塑胶模具设计由这10大系统构成,新手赶紧收藏

