数控宏程序不是万能的,没有宏程序是不能的。

只有想不到,没有做不到。

光看这些用宏程序加工的作品你就知道月薪上万是没有问题的。

这样的技术你是不是觉得离自己很遥远?

宏程序应用在很多方面,不管是在线测量,自动化控制,还是磨具加工,产品加工,使用过宏程序的人都能感受到宏程序的便利,掌握宏程序编程技术是一件多么牛逼的事情啊!
但是宏程序太复杂怎么办?没有时间详细学怎么办?没有师傅带怎么办?
不急,我有绝技解决上述问题,宏程序编程没有你想象的那么难!
一位学员在工作中遇到一批产品,如下图:

要在数铣上面加工外圆柱以及根部R,这个零件编程也是简单,但是零件根部圆弧R要求3.0-0.2
当时车间并没有R=2.9的圆鼻铣刀,若是定做圆弧R=2.9的铣刀,刀具成本增加不说,关键还耽误生产进度。
前段时间他看了我的宏程序讲解,虽说学的时间不长,但是一看就明白,然后就直接核心技巧套用教程中的一个编程模板,很快就编写出了程序。

有些时候编程最快速的方法不是软件编程,更不是手工编程,而是直接套用之前编写好的宏程序。
很多聪明的人,比如和我学编程的海风,活学活用,直接拿着程序范例来修改,很快又是一个新程序。
比如上面程序,稍微修改下,分分钟就出来一个铣内孔R的程序。
程序如下,(红色圈的是修改的部位)。

当然,还可以根据零件图纸给对应变量赋值,几秒钟就可以完成不同尺寸零件的编程,非常的方便快捷。
这么看起来宏程序编程非常的玄。
说实话,想成为专业的编程工程师,掌握手工高级编程宏程序是一个基本功,学会数控宏程序编程,你的编程水平就会提升一个境界!
所以我就以上面分享的例子为例,给大家传授一点编写宏程序的关键思路:巧用勾股定理计算变量数据,希望给大家一些启发。
先来看看数学中的勾股定理,在一个直角三角形中,如下图:

根据已知条件,可以得出以下几个角与边的公式:
sin a=BC/AC
cos a=AB/AC
tan a=BC/AB
有人可能会问这些公式是怎么来的,这是研究数学的事情(数学课本应该讲过)。我们只需要把上面公式关系搞清楚即可。
比如,计算BC的边长,(知道了夹角a和AC边长)根据sin a=BC/AC 可以计算出BC= AC *SIN a 了。
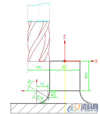
那么我们看零件图,比如下的简图:

那么在数铣上加工这个圆弧R,和上面说的勾股定理有什么关系?
你若从机床中任意拷贝一个程序来看,都由两大部分组成:
1、 G代码
2、 点位坐标数据
是的,任何零件都可以看成由无数个点位数据组成的轮廓,编程的时候,若这些点位的数据处理非常多,那么加工出来的零件轮廓就越光滑。
那么在圆弧上面任意设置点P,以圆弧圆心为坐标系做个直角三角形,如下图:

那么就和勾股定理联系起来了,关系如下:
cos[#3]=#1/#18
sin [#3]=#2/#18
从而计算出:
#1= #18*COS[#3]
#2= #18*SIN[#3]
其中:
角度变量#3取值范围是从0到90度(因为加工1/4圆弧)。
#1,#2为圆弧上面的坐标数据,请注意:
计算出的#1,#2数据是以圆弧圆心为原点的,而编程时候所建立的编程原点很可能不重合。
所以需要转换:

比如圆弧上面任一点 P (相对于编程原点)
X方向坐标点:
[#7+#4]/2+[#18-#1]
Z方向坐标点:
#26+#2
用心看一下推导的关系式。
用心看下上面简图。
简单吗?
很有用,不信,你现在对照看三遍,你就秒懂了。
分析到这儿,我们看铣外圆,外圆深度是#26 ,我设置一个初始变量,比如#5 。
让#5做自增运算(也就是每圈下刀深度),然后利用一个WHILE语句设置一个条件,当条件满足就一直循环WHILE到END之间的程序段。
即:当铣削深度没达到#26所赋予的数值时候,就一直循环加工的铣外圆程序。
程序如下:
G54G0X0Y0
S2000M08
Z50.M03
#7=12
#4=10
#26=15
#18=2.9
#24=[#7+#4]/2
G0X-#24Y0
Z1
#5=0
WHILE[#5LT#26]DO1
#5=#5+2
IF[#5GE#26]THEN#5=#26
G3X-#24Z-#5I#24F300
END1
当条件不满足了,也就是深度加工到了#26赋予的数值时候,外铣削完毕,将会跳出WHILE 循环,即执行END1后面程序段,也就是接着就要铣圆弧R。
所以END1后面紧接着就编写加工圆弧R的程序,如下:
#3=0
WHILE[#3LT90]DO2
#3=#3+3
#1=#18*COS[#3]
#2=#18*SIN[#3]
IF[#3GE90]THEN#3=90
G01X-[#24+[#18-#1]] Z-[#26+#2]F100
G03I[#24+[#18-#1]]
END2
G0Z100
加工圆弧R的时候还是利用WHILE语句设置条件来控制是否加工到尺寸。
好了,案例就不再过多分析。
因为我经常强调,案例不重要,思路很重要,编程方法很重要,今天分析的巧用勾股定理计算变量数据方法很重要。
这个方法不仅仅用于数控铣宏程序编程,数控车的宏程序编程也都可以用。
比如数控车加工一些大螺距螺纹:

比如T型螺纹:

比如车非标圆弧螺纹:

太多了,就不一一举例。
总之,当你真正学会之后,你就会发现宏程序的强大编程魅力,它给你带来的方便,不仅仅是工作中的便利,还有思维上的提升,让你编程功底、技术水平 提升一个层次!
我们是知识搬运工,我们是技术传播者!
东莞潇洒职业培训学校开设课程有:CNC数控编程、塑胶模具设计,压铸模具设计、冲压模具设计, Solidworks/pro/E产品设计、AutoformR7工艺分析,非标自动化设计、PLC编程、文职、电商、平面设计、新媒体等培训课程,潇洒职业培训学校线下、线上、随到随学等学习方式,上班学习两不误,欢迎预约免费试学!
联系电话:13018639977(微信同号)
学校官网:www.dgxspx.com线上免费试学:xsmj.ke.qq.com
即日起,组团3人以上学习CNC电脑锣实操课程,学费全免,学会为止包就业,工资4000-6000以上
1;所有标注为智造资料网zl.fbzzw.cn的内容均为本站所有,版权均属本站所有,若您需要引用、转载,必须注明来源及原文链接即可,如涉及大面积转载,请来信告知,获取《授权协议》。
2;本网站图片,文字之类版权申明,因为网站可以由注册用户自行上传图片或文字,本网站无法鉴别所上传图片或文字的知识版权,如果侵犯,请及时通知我们,本网站将在第一时间及时删除,相关侵权责任均由相应上传用户自行承担。
[complaint:内容投诉]
智造资料网打造智能制造3D图纸下载,在线视频,软件下载,在线问答综合平台 » 分享一个大招,学会后玩转数控编程!

