摆臂在汽车上间接参与方向的控制,是汽车上的关键零件,因此许多汽车企业对摆臂的质量要求较高。

(a)轴测图

(b)侧视图
图1 摆臂
图1所示为某汽车零件上的摆臂,外形尺寸为490mm×378mm×60mm,厚度为3.5mm,材料为QSTE380TM。由图1可以看出,零件形状呈三爪形,向上翘曲,各边均不在同一高度,且外轮廓边线所在曲面的法向也各不相同,要在同一工序实现周边修边难度较大。
经过对摆臂的成形工艺特性及图纸要求进行分析,综合考虑模具结构、可操作性、生产成本等因素,摆臂的成形工艺流程确定为:落料→预拉深→拉深→切端头→修边→吊装斜楔冲孔+侧修边→吊装斜楔修端头+侧修边→整形,共8道工序,如图2所示。

图2 制造工艺流程
为进一步提高摆臂的生产效率,降低生产成本,将预拉深→拉深、切端头→修边、吊装斜楔冲孔+侧修边→吊装斜楔修端头+侧修边分别放在同一工序进行生产,设计为复合模。在上述几个工序中以吊装斜楔冲孔+侧修边→吊装斜楔修端头+侧修边的复合模结构最为复杂,因此设计反式拉钩斜楔机构进行冲孔和修边。
模具结构设计
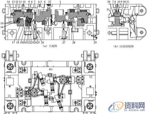
模具结构如图3所示,为完成吊装斜楔冲孔+侧修边及吊装斜楔修端头+侧修边工序的工作内容,模具利用反式拉钩斜楔机构可以实现从零件内部向外进行冲孔和修边等工作。

图3 模具结构
1.上模座 2.氮气缸固定板 3.压料氮气缸 4.压料芯 5.限位螺钉 6.限位块 7.斜楔滑块 8.V形导板 9.V形导板 10.安全螺钉 11.导板 12.导板 13.回程氮气缸 14.垫块 15.V形导板 16.V形导板 17.斜楔滑块 18.侧压料块 19.螺钉 20.下模镶件 21.废料盒 22.导向衬套 23.导向柱 24.冲孔凸模 25.凸模固定板 26.退件装置 27.定位销 28.凸模 29.气路装置 30.导板 31.限位导板
回程氮气缸13通过固定板用螺钉固定在斜楔滑块7上,V形导板9、15和导板12、30用螺钉固定在斜楔滑块7上;同时将冲孔凸模24和导向柱23装入凸模固定板25中,并用螺钉、销钉固定于斜楔滑块7上,装入压料弹簧、将导向衬套22以紧配形式镶嵌在侧压料块18中,使导向柱23和导向衬套22滑动配合,用限位螺钉19加以固定,完成斜楔滑块组件的组装。同理将右侧切端头部分斜楔滑块组件完成组装,因无需压料装置,只需固定好修端头凸模28即可。
上模座1装入相应的V形导板8、导板11、限位块6、垫块14及上、下模板导向装置并用螺钉固定,将组装好的斜楔滑块组件装入上模座1,盖上限位导板31并用螺钉固定,使斜楔滑块只能沿水平方向运动;再装入其他组件及压料芯4,从上模座上面装好压料氮气缸3,采用氮气缸固定板2固定,再装入安全螺钉10和限位螺钉5完成上模组装。
下模座装入斜楔滑块17、下模镶件20及上、下模板导向装置,采用螺钉、销钉固定;再分别装入冲孔凹模、定位销27和斜楔下滑块组件,最后固定退件装置26及气路装置29即完成下模组装。
模具工作原理

图4 反式拉钩斜楔结构
反式拉钩斜楔结构如图4所示,冲孔凸模24通过凸模固定板25固定在斜楔滑块7上,当上模整体向下运动时迫使斜楔滑块7沿水平方向向左侧(即模具外部)运动,与常规斜楔向内运动方式相反,冲孔凸模24与斜楔滑块7组成整体如斜钩一样逐渐进入零件内将废料切除,称之为反式拉钩斜楔。
模具闭合时,将前工序完成的摆臂件放置在下模镶件20及其余定位型面上,定位销27和定位型面共同定位,限制零件转动;机床滑块带动上模向下持续运动,压料芯4接触零件开始压料,继续下行,压料氮气缸3受到压缩,上模再向下运动,斜楔滑块7上的V形导板15与V形导板16接触并沿接触面平行方向向下滑动。由于斜楔滑块7受限位导板31的限制,只能沿水平方向向左运动,迫使回程氮气缸13受压缩短。当斜楔滑块7向左运动时带动固定在滑块上的侧压料装置、冲孔凸模24沿冲孔凸模轴向向下运动,随着上模继续向下运动,侧压料装置逐渐开始压料,直到冲孔凸模24进入冲孔凹模,当回程氮气缸13压缩到设定的行程后,冲孔凸模24停止运动,即已经到达上模运动的下止点,上模停止运动,完成冲孔、吊装斜楔修端头工作,运动关系如图5(a)所示。冲裁的废料通过冲孔凹模背后的漏料孔落入废料盒或由废料滑板将废料滑出模具。

(a)闭合过程

(b)开模过程
图5 斜楔运动过程
同理,模具开模时,机床滑块带动上模向上持续运动,压料氮气缸3开始卸载所受压力,逐渐恢复初始状态,压料芯4向上运动的同时,由于受到压料氮气缸3释放压力的作用向下运动;同时斜楔滑块7随上模座向上运动,回程氮气缸13开始释放压力逐渐恢复,迫使斜楔滑块7水平向右运动,因斜楔滑块7同时向上、向右运动,最终的合成运动为沿V形导板15、16的接触面平行方向向上运动,直到V形导板15、16脱离接触后,斜楔滑块17随上模座垂直向上运动。
当斜楔滑块17沿V形导板15、16的接触面平行方向向上运动时,带动压料弹簧卸载所受压力,逐渐恢复,迫使侧压料块18在离开零件的同时沿冲孔凸模24轴向向下运动,直到限位螺钉19停止轴向向下运动,逐渐脱离零件,冲孔凸模也随之离开冲孔凹模,侧压料芯完全离开零件后,压料芯4最终脱离零件,随上模座运动到设定开模高度后停止运动,开模运动关系如图5(b)所示。
气路装置29带动退件装置26向上运动,使零件脱模,人工取出零件,完成整个开模过程,冲裁后的工序件如图6所示。

图6 工序零件
模具结构紧凑,设计合理,操作方便,生产效率高,零件取放方便,对于同类汽车摆臂零件的成形具有一定的参考作用。反式拉钩斜楔机构冲孔修边复合模,满足了摆臂零件的成形质量要求,提高了生产效率,降低了生产成本。
我们是知识搬运工,我们是技术传播者!
东莞潇洒职业培训学校开设课程有:CNC数控编程、塑胶模具设计,压铸模具设计、冲压模具设计, Solidworks/pro/E产品设计、AutoformR7工艺分析,非标自动化设计、PLC编程、文职、电商、平面设计、新媒体等培训课程,潇洒职业培训学校线下、线上、随到随学等学习方式,上班学习两不误,欢迎预约免费试学!
联系电话:18029183455(微信同号)QQ:2799669782
线上免费试学: xsmj.ke.qq.com
1;所有标注为智造资料网zl.fbzzw.cn的内容均为本站所有,版权均属本站所有,若您需要引用、转载,必须注明来源及原文链接即可,如涉及大面积转载,请来信告知,获取《授权协议》。
2;本网站图片,文字之类版权申明,因为网站可以由注册用户自行上传图片或文字,本网站无法鉴别所上传图片或文字的知识版权,如果侵犯,请及时通知我们,本网站将在第一时间及时删除,相关侵权责任均由相应上传用户自行承担。
[complaint:内容投诉]
智造资料网打造智能制造3D图纸下载,在线视频,软件下载,在线问答综合平台 » 汽车模具资料一线经验总结反式拉钩斜楔冲孔修边复合模设计 ...

