
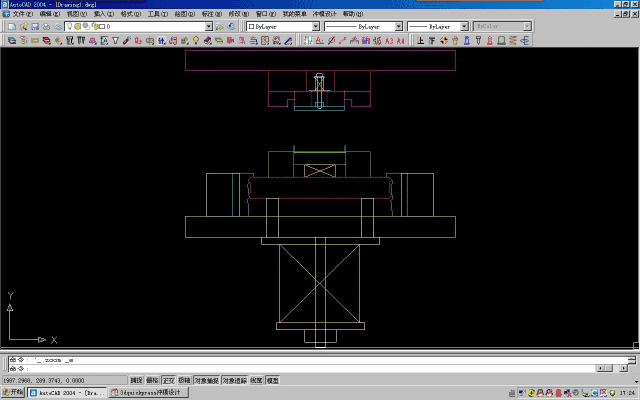
不知道上图这个旋切模具的运动轨迹朋友们有没有看明白呢?下面小编来说下设计这种模具的要点吧:
1、切边凸模要比制件单边小0.1毫米,凹模间隙单边取0.2毫米;
2、凸模定位芯要装配复位机构(在装载定位芯时我们要把螺丝孔加大,保证其足够的移动量,使它在移动时不会受到干扰)
3、滑块厚度由料厚决定是否取值12至20毫米
4:、滑块角度取常规值45°,夹角的直线值根据料厚决定是否为2到5毫米。材料选取CR12-CR12MOV,淬火硬度为60~63HRC
5、垫板厚度的取值为10到15毫米,材料选用CR12到CR12MOV,淬火硬度为58到63HRC
6根据料厚的2倍来确定、旋切移动取值

7、等高限位柱决定凹凸模之间的平面间隙,凸模的高度、材料间的间隙影响限位柱的高度,材料间隙比常规单边小0.05毫米
8、滑块下面顶件力必须要大,因为如果力小了就切不断,断面质量差有很大毛刺,就会导致切不断模具,被拉断的结果,会使模具的寿命降低。如果力大则会导致滑块和导轨间的摩擦而加快磨损,所以这个力度要适当
9、导轨中全部的夹角都不能有尖角:直线段根据料厚决定取值为2-5毫米
10、毛刺取向外旋切(凸模运动凹模固定)毛刺朝外,反之相反
11、滑块和导轨间隙取值为单边0.05-0.10毫米

东莞潇洒职业培训学校开设课程有:高升专、专升本学历提升、全日制中职学校学位、积分入户、数控编程培训、塑胶模具设计培训,压铸模具设计培训、冲压模具设计培训,精雕、ZBrush圆雕培训、Solidworks产品设计培训、pro/E产品设计培训、AutoformR7工艺分析培训,非标自动化设计、PLC编程、CNC电脑锣操机、平面设计等培训,潇洒职业培训学校线下、线上等网络学习方式,随到随学,上班学习两不误,欢迎免费试学!
联系电话:18029180991(微信同号)QQ:3461766451
学校官网:www.dgxspx.com 智造人才网:www.58hr.net
学习地址:东莞市横沥镇新城工业区兴业路121号-潇洒职业培训学校
1;所有标注为智造资料网zl.fbzzw.cn的内容均为本站所有,版权均属本站所有,若您需要引用、转载,必须注明来源及原文链接即可,如涉及大面积转载,请来信告知,获取《授权协议》。
2;本网站图片,文字之类版权申明,因为网站可以由注册用户自行上传图片或文字,本网站无法鉴别所上传图片或文字的知识版权,如果侵犯,请及时通知我们,本网站将在第一时间及时删除,相关侵权责任均由相应上传用户自行承担。
[complaint:内容投诉]
智造资料网打造智能制造3D图纸下载,在线视频,软件下载,在线问答综合平台 » 分享旋切模具设计要点

