首页
图纸下载
冲压模具
塑胶模具
数控编程
机械设备
家用电器
更多
软件下载
二维软件
三维软件
编程软件
CAE软件
系统软件
更多
图文资讯
软件应用
模具制造
机械制造
机械知识
平面设计
其他
软件安装
帮助中心
注册问题
登录问题
上传问题
下载问题
充值问题
更多
在线视频
新站课程
本站课程
在线问答
登录
注册
要点 第2页
最新标签
HTML
入门
精通
摩托车
三轮
狂想
两栖
图文
作用
水泵
诱导
前置
视频
测试
咨询
售后
违规
注册
登录
充值
积分
流程
提现
编号
大小
提取
0167
XSSJUG
取值
旋切
毫米
按照
上传
退稿
稿件
无法
账号
注销
站上
qiufukang
右上角
绑定
下拉
帐号
原作者
以下简称
本站
协议
会员
其它
刀路
桃木
夹板
关联性
鸟瞰
文章
PAUSE
command
主视图
长度
RCDATA
计算
ID
开发
雕刻机
生成
注释
端盖
中设
标题
回到
外公切线
圆心
立体
实验
布局
浮动
外部
参照
网格
多线
显示
缩放
特性
编组
门厅
源点
附着
光源
图片
一圆
基点
SolidEdge
教程
属性
10.3
有的
弧段
正交
栅格
及图
文章排序
时间
标题
热度
留言
随机
潇洒模具李老师分享连续模拉伸膜的三大知识要点,建议收藏 ...
要点
潇洒
模具
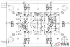
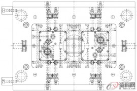
推块顶出大型注塑模设计要点
要点
设计
塑胶模具设计,四面抽芯多型腔注射模的设计要点,你学到了吗! ...
型腔
模具设计
要点
17个设计要点教你如何做好塑胶产品结构设计
结构设计
要点
塑胶
冲压模具设计:汽车铸件模具设计三大工序设计注意要点
模具设计
冲压
要点
冲压模具设计:30个汽车冲压模具设计与成型工艺经验,个个都是要点! ...
模具设计
冲压
成型
要点
五金模具设计:冲压模具设计注意要点
模具设计
冲压
要点
看完这些设计要点,分分钟提高高速精密冲压连续模设计技术 ...
设计
冲压
要点
冲压钣金件设计要点总结,收藏以后就不怕错了!
冲压
要点
UG编程-怎么装模架,草图有那些要点
模架
草图
要点
UG模具设计:模具设计时有哪些注意要点?
模具设计
要点
五金模具设计:端子模设计的要点
模具设计
要点
设计
冲压模具设计冲压进级模生产中的故障排除及设计中的要点
冲压
模具设计
要点
塑胶模具设计以后开展的技术要点
模具设计
要点
塑胶
UG汽车塑胶模具保险杠设计要点总结
要点
编程师傅必备知识-UG编程平面铣加工要点
要点
平面
塑胶模具设计-塑料制件设计的一般要点
制件
模具设计
要点
塑胶
一般
塑胶模具设计-注塑件模具设计几个基本要点
模具设计
要点
塑胶
模具设计-模具组立图制作要点
模具设计
要点
模具
制作
塑胶模具设计-鼠标底壳注塑模设计要点
底壳
模具设计
要点
塑胶
塑胶模具设计-数据传输接头后壳注塑模设计要点
模具设计
要点
塑胶模具设计-注塑制件的设计要点
制件
模具设计
注塑
要点
塑胶
塑胶模具设计-精密塑胶模具设计要点
模具设计
要点
塑胶
数据传输接头后壳注塑模设计要点
要点
设计
塑胶模具设计-精密注塑模具设计要点
模具设计
注塑
要点
塑胶
必背的模具设计要点,让你轻松变成模具设计工程师精英!
模具设计
要点
冲压模具设计——冲压模具之凸模与凹模镶块结构的设计要点 ...
模具设计
冲压
要点
结构
注塑模设计——手机护套中框设计要点
设计
要点
塑胶模具设计——室外监控仪面壳注塑模设计要点
模具设计
要点
塑胶
潜水泵安全使用要点(图文教程)
要点
使用
教程
水泵使用的要点(图文教程)
要点
使用
教程
消防水泵房关键设计和布置要点!(图文教程)
要点
1
2
3
首页
发布
用户中心
积分充值
开通会员
客服