浩辰CAD2011机械_(26)二级斜齿轮减速器左视图绘制(图文教程) ...

在前几期教程中,我们为大家介绍了二级斜齿轮减速器主视图、俯视图绘制。而熟悉机械设计的设计师都知道,想要完整的表现设计物体的结构,我们还需要绘制左视图。今天,我们就为大家带来绘制二级斜齿轮减速器左视图的CAD教程,工具依然为浩辰CAD机械2011,大家可以自行下载http://www.gstarcad.com/cad_56_45.html。

1、使用浩辰CAD机械2011绘制轴的投影:由主视图和俯视图投影中心线和轮廓,我们可以快速绘制出轴的投影(如图1)。

浩辰CAD2011机械_(26)二级斜齿轮减速器左视图绘制(图文教程) ...,浩辰CAD左视图,斜齿轮,视图,绘制,第1张

图1

2、绘制视孔、视孔盖、游标左视图,由于其结构对称,我们可以使用浩辰CAD机械2011中【对称划线】命令来绘制(如图2)。

浩辰CAD2011机械_(26)二级斜齿轮减速器左视图绘制(图文教程) ...,浩辰教程左视图,斜齿轮,视图,绘制,第2张

图2 

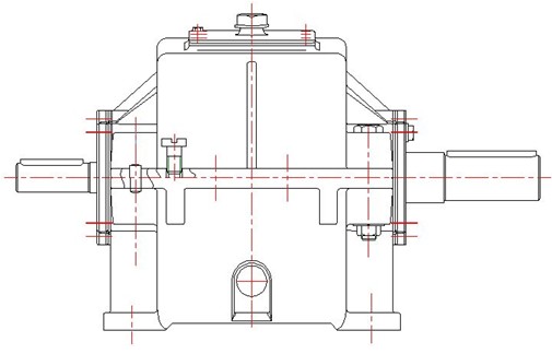
3、最后,绘制左视图外轮廓线(如图3)。

浩辰CAD2011机械_(26)二级斜齿轮减速器左视图绘制(图文教程) ...,教程左视图,斜齿轮,视图,绘制,第3张

图3

这样,一个完整的二级斜齿轮减速器左视图就绘制完成了,通过这个左视图,我们可以清晰的了解该减速器的前后和上下位置关系,也方便我们更好的把握进一步的设计。

至此,关于二级齿轮减速器的视图部分就为大家介绍到这里了,也希望大家能够多加实践,更好的掌握绘制视图的技巧。

免责声明:
1;所有标注为智造资料网zl.fbzzw.cn的内容均为本站所有,版权均属本站所有,若您需要引用、转载,必须注明来源及原文链接即可,如涉及大面积转载,请来信告知,获取《授权协议》。
2;本网站图片,文字之类版权申明,因为网站可以由注册用户自行上传图片或文字,本网站无法鉴别所上传图片或文字的知识版权,如果侵犯,请及时通知我们,本网站将在第一时间及时删除,相关侵权责任均由相应上传用户自行承担。
[complaint:内容投诉]
智造资料网打造智能制造3D图纸下载,在线视频,软件下载,在线问答综合平台 » 浩辰CAD2011机械_(26)二级斜齿轮减速器左视图绘制(图文教程) ...