9.13 后轴
一、实例分析
在圆柱体上切槽。
二、学习目标
掌握圆柱面创建腔体的方法。
三、设计过程
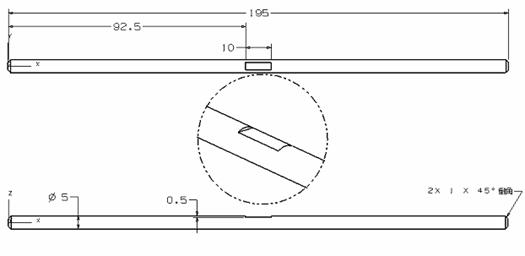
后轴结构如图9-139所示,结构比较简单,绘制步骤如下:

图9-139 后轴结构图
1. 选择“文件”|“新建”命令,新建名称为houzhou.prt的部件文档,再选择“起始”|“建模”命令打开建模功能;
2.单击“特征”工具条上的“圆柱”按钮
,在弹出的对话框内选择“直径,高度”,单击“确定”,选择XC轴方向为圆柱轴线方向,在弹出的“圆柱”参数设置对话框内输入“直径”为“5”,“高度”为“195”,放置点选择(0,0,0),如图9-140所示;


图9-140 绘制圆柱 图9-141创建基准
3.单击“基准平面”按钮
,首先创建“XC-ZC”基准平面,然后将其向上偏置“5/2-0.5”,得到一个基准平面(放置腔体),接着创建“YC-XC”基准平面,再创建一个圆柱体中间的基准平面(定位腔体),单击“基准轴”按钮
,通过圆柱体的轴线创建一个基准轴(腔体水平参考),如图9-141所示;
4.单击“腔体”按钮
,在弹出的对话框中选择“矩形”,选择“”选择第一个基准平面作为放置面,基准轴作为水平参考,方向向上,在弹出的“腔体”参数对话框内输入“长度”为“10”,“宽度”为“10”,“深度”为“0.5”,如图9-142(a)所示,确定后选择“垂直”方式
,借助第3步所设计的基准平面进行定位,定位尺寸均为“0”,连续单击“确定”按钮,效果如图9-142(b)所示;

(a) (b)
9-142 创建腔体
5.将基准移至图层第61层,保存,完成后轴的绘制,如图9-143所示。
6.保存,见光盘part/9/houzhou.pat

图9-143 后轴
1;所有标注为智造资料网zl.fbzzw.cn的内容均为本站所有,版权均属本站所有,若您需要引用、转载,必须注明来源及原文链接即可,如涉及大面积转载,请来信告知,获取《授权协议》。
2;本网站图片,文字之类版权申明,因为网站可以由注册用户自行上传图片或文字,本网站无法鉴别所上传图片或文字的知识版权,如果侵犯,请及时通知我们,本网站将在第一时间及时删除,相关侵权责任均由相应上传用户自行承担。
[complaint:内容投诉]
智造资料网打造智能制造3D图纸下载,在线视频,软件下载,在线问答综合平台 » UG卡丁车设计实例教程(十三)_后轴(图文教程)

