塑料模具设计教程-模具结构零部件的设计

5-4-1 标准注射模架

模架是注射模的骨架和基体,通过它可以将模具的各个部分有机地联系成一个整体,如图5-4-1所示。标准模架一般由定模座板、定模板、动模板、动模支承板、垫块、动模座板、推杆固定板、推板、导柱、导套及复位杆组成。除此之外,还有一些特殊结构的模架,如点浇口模架、带推件板推出的模架等。

注射模具的基本结构有很多共同点,使用标准模架可以提高模具的质量、缩短模具的制造周期、降低模具的制造费用。目前,我国塑料注射模架的国家标准有两个,即《塑料注射模中小型模架》(GB/T12556-1990)和《塑料注射模大型模架》(GB/T12555-1990)。

塑料模具设计教程-模具结构零部件的设计,模具设计,模具,结构,塑料,第1张

图5-4-1 最常见的注射模架

1-定模座板;2-定模板;3-导柱及导套;4-动模板;5-动模支承板;

6-垫块;7-推杆固定板;8-推板;9-动模座板

一 中小型标准模架

中小型模架的周界尺寸范围≤560mm×900mm,按结构特征分基本型和派生型两大类。

1. 基本型

基本型是以直接浇口(包括潜伏式浇口)为主的结构形式,共4种,其代号分别为A1、A2、A3、A4,如图5-4-2所示,其模架的组成、功能及用途见表5-4-1。

表5-4-1 基本型模架的组成、功能及用途

型 号

组成、功能及用途

中小模架A1型

(大型模架A型)

定模采用两块模板,动模采用一块模板,无支承板。设置以推杆推出塑件的机构组成模架。适用于立式与卧式注射机,单分型面一般设在合模面上,可设计成多个型腔成型多个塑件的注射模。

中小模架A2型

(大型模架B型)

定模和动模均采用两块板,有支承板,设置以推杆推出塑件的机构组成模架。适用于立式与卧式注射机上,用于直浇道,采用斜导柱侧向抽芯、单型腔成型,其分型面可在合模面上,也可设置斜滑块垂直分型脱模式机构的注射模。

中小模架A3、A4型

(大型模架P1、P2型)

A3型(P1型)的定模采用两块模板,动模采用一块模板,它们之间设置一块推件板联接推出机构,用以推出塑件,无支承板。

A4型(P2型)的定模和动模均采用两块模板,它们之间设置一块推件板联接推出机构,用以推出塑件,有支承板。

A3、A4型均适用于立式与卧式注射机上,适用于薄壁壳体形塑件,脱模力大,以及塑件表面不允许留有顶出痕迹的塑件注射成型的模具。

注:1. 定、动模座可根据使用要求选用有肩或无肩形式;

2. 根据使用要求选用导向零件和它们的安装形式;

3. A1~A4型的功能及通用性强,是国际上使用模架中具有代表性的结构。

塑料模具设计教程-模具结构零部件的设计,模具设计,模具,结构,塑料,第2张

图5-4-2 基本型标准模架

2. 派生型

派生型是在基本型的基础上派生而来,以点浇口和多分型面为主的结构形式,共9种,其代号分别为P1~P9,如图5-4-3所示,其模架的组成、功能及用途见表5-4-2。

表5-4-2 派生型模架的组成、功能及用途

型 号

派生型模架的组成、功能及用途

中小模架P1~P4型

(大型模架P3、P4型)

P1~P4型由基本型A1~A4对应派生而成,结构形式上的不同点在于去掉了A1~A4型定模板上的固定螺钉,使定模部分增加了一个分型面,多用于点浇口形式的注射模。其功能和用途符合A1~A4型的要求。

中小模架P5型

由两块模板组合而成,主要适用于直接浇口、简单整体型腔结构的注射模。

中小模架P6~P9型

其中P6与P7,P8和P9是互相对应的结构,P7和P9相对于P6和P8只是去掉了定模座板上的固定螺钉。这些模架均适用于复杂结构的注射模,如定距分型自动脱落浇口式注射模等。

注:1. 派生型P1~P4型模架组合尺寸系列和组合要素均与基本型相同;

2. 其模架结构以点浇口、多分型面为主,适用于多动作的复杂注射模;

3. 扩大了模架应用范围,增大了模架标准的覆盖面。

塑料模具设计教程-模具结构零部件的设计,模具设计,模具,结构,塑料,第3张

图5-4-3 派生型标准模架

另外,标准中还规定,以定模、动模座板有肩、无肩划分,又会增加13个品种,总计共26个模架品种。这些模架规格基本上覆盖了注射容量为10~4000cm3注射机用的各种中小型热塑性和热固性塑料注射模具。

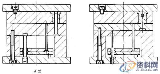
二 大型标准模架

大型模架标准中规定的周界尺寸范围为630mm×630mm~1250mm×2000mm,适用于大型热塑性塑料注射模。模架品种有A型、B型组成的基本型(如图5-4-4所示)以及由P1~P4组成的派生型(如图5-4-5所示),共6种。A型同中小型模架中的A1型,B型同中小型模架中的A2型。大型模架的组成、功能及用途见表5-4-1和表5-4-2。

塑料模具设计教程-模具结构零部件的设计,模具设计,模具,结构,塑料,第4张

图5-4-4 大型标准模架

塑料模具设计教程-模具结构零部件的设计,模具设计,模具,结构,塑料,第5张

图5-4-5 派生型大型标准模架

N95口罩耳带机、N95切片加内置鼻梁一体机、N95口罩机整套现货,预订电话:13018639977

CNC数控编程培训、塑胶模具设计培训,冲压模具设计培训,精雕、ZBrush圆雕培训、Solidworks产品设计培训、pro/E产品设计培训,潇洒职业培训学校线下、线上网络学习方式,随到随学,上班学习两不误,欢迎免费试学!

联系电话:13018639977(微信同号)QQ:2033825601

学习地址:东莞市横沥镇新城工业区兴业路121号-潇洒职业培训学校

免责声明:
1;所有标注为智造资料网zl.fbzzw.cn的内容均为本站所有,版权均属本站所有,若您需要引用、转载,必须注明来源及原文链接即可,如涉及大面积转载,请来信告知,获取《授权协议》。
2;本网站图片,文字之类版权申明,因为网站可以由注册用户自行上传图片或文字,本网站无法鉴别所上传图片或文字的知识版权,如果侵犯,请及时通知我们,本网站将在第一时间及时删除,相关侵权责任均由相应上传用户自行承担。
[complaint:内容投诉]
智造资料网打造智能制造3D图纸下载,在线视频,软件下载,在线问答综合平台 » 塑料模具设计教程-模具结构零部件的设计