【内容概要】本章主要介绍装配图的作用、内容、装配结构的表达方法、常见装配工艺结构等基本知识,结合具体实例,重点介绍了部件测绘的一般方法,要掌握部件测绘的一般步骤,草图绘制方法,零件图和装配图的绘制。在学习本章内容时,要注意将理论和生产实际相结合。
第一讲 装配图的基本知识
1.知识要点
(1)装配图的作用和内容
(2)装配图的视图表达方法
(3)装配工艺结构
(4)装配图尺寸标注和技术要求
(5)装配图上零件的序号和明细栏
(6)机器上的常见装置
2.教学方法
本讲采用电子挂图介绍装配图上的相关内容,可联系作业进行讲解,重点要把装配图和零件图的区别讲清楚,要和生产实际相结合。
3.课前准备:准备几张以往同学绘制的装配图、教具模型。熟悉课件和电子挂图的内容。
4.本讲作业习题集上的相关作业。
5.教学内容
(1)装配图的作用和内容
装配图是表达机器或部件的图样,通常用来表达机器或部件的工作原理及零件、部件间的装配关系,是机械设计和生产中的重要技术文件之一。在产品设计中一般先根据产品的工作原理图画出装配草图,由装配草图整理成装配图,然后在根据装配图进行零件设计,并画出零件图。在产品制造中装配图是制订装配工艺规程、进行装配和检验的技术依据。在机器使用和维修时,也需要通过装配图来了解机器的工作原理和构造。

图10-1滑动轴承
一张完整的装配图必须具备下列内容:
【一组视图】画装配图时,要用一组视图、剖视图等表达出机器(或部件)的工作原理、各零件的相对位置及装配关系、连接方式和重要零件的形状结构。如图10-2所示滑动轴承的装配图,主视图和左视图采用了半剖视图,用来表达轴承座、轴承盖、上下轴瓦等的装配关系和部件的外形;俯视图主要表达轴承盖和轴承座的形状。
【必要的尺寸】在装配图上不需要象零件图那样标注出零件的所有尺寸,制造零件时是根据零件图制造的,装配图上只需要标注机器或部件的性能(规格)尺寸、配合尺寸、安装尺寸、外形尺寸、检验尺寸等。性能(规格)尺寸在设计时已确定,它是设计机器和选用机器的重要依据,图10-2所示滑动轴承的装配图中,孔径φ50H8即为规格尺寸;配合尺寸是指两零件间有配合要求的尺寸,一般要标注出尺寸和配合代号,如滑动轴承中86H9/f8、60F9/f9、φ60H8/k8等;安装尺寸是指将机器或部件安装在地基上或其他机器或部件上所需要的尺寸,如滑动轴承中底板的尺寸;外形尺寸是指机器或部件的外形轮廓尺寸,如总高、总宽、总长等尺寸。
【技术要求】在装配图上,只有配合尺寸要标注配合代号,其他尺寸一般不标注尺寸偏差,装配图上一般也不需要标注表面粗糙度代号和形位公差代号。在明细栏的上方或图形下方的空白处用文字形式说明技术要求的的内容,技术要求的内容主要为机器或部件的性能、装配、调整、试验等所必须满足的技术条件。
【零件的序号、明细栏和标题栏】 装配图中的零件编号和明细栏用于说明每个零件的名称、代号、数量和材料等。标题栏包括部件名称、比例、绘图和设计人员的签名等。编号时应在被编号零、部可见轮廓线内画一小圆点,用细实线画出指引线引出图外,在指引线的端部用细实线画一水平线或圆圈,在水平线上或圆圈内写零件的序号。
为使图形清晰,指引线不宜穿过太多的图形,指引线通过剖面线区域时,不应和剖面线平行,指引线也不要相交,必要时指引线可画成折线,但只能折一次。序号在图上应按水平或垂直方向均匀排列整齐,并按照顺时针或逆时针方向顺序排列。
| 图10-2滑动轴承装配图 |
(2)装配图的表达方法
【装配图的规定画法】
两相邻零件的接触表面和配合表面只画一条线,非接触表面(即使间隙很小)画成两条线,如图10-3所示。

图10-3装配图规定画法(1)
同一个零件所有视图上的剖面线方向相同间隔相等,相邻两个或多个零件的剖面线方向相反或方向相同而间隔不相等。其目的是有利于找出同一零件的各个视图,想象其形状和装配关系。
对于紧固件以及实心的球、轴、键等零件,若剖切平面通过其对称平面或基本轴线时,则这些零件均按不剖绘制。如需要表达这些零件上的孔槽等构造时,可用局部剖视图表示,如10-4所示。
【装配图的特殊表达方法】
假想画法如选择的视图已将大部分零件的形状、结构表达清楚,但仍有少数零件的某些方面还未表达清楚时,可单独画出这些零件的视图或剖视图。为表示部件(或机器)的作用和安装方法,可将其它相邻零件的部分轮廓用双点画线画出。假象轮廓的剖面区域内不画剖面线。如图10-5所示。
拆卸画法 当某些零件的图形遮住了其后的需要表达的零件,或在某一视图上不需要画出某些零件时,可拆去某些零件后绘制,也可选择沿零件结合面进行剖切的画法。如图10-2所示滑动轴承装配图中的俯视图和左视图,是拆去了油杯等零件后绘制的。
简化画法对于装配图中若干相同的零件和部件组,如螺栓连接等,可详细地画出一组,其余只须用点画线表示其位置即可;对薄的垫片等不易画出的零件,可将其涂黑;零件的工艺结构,如小圆角、倒角、退刀槽、起模斜度等,可不画出,如图10-6所示。

图10-4装配图的表达方法

图10-5假想画法

图10-6简化画法
(3)装配图中的尺寸标注
装配图的作用是表达零、部件的装配关系,因此,其尺寸标注的要求不同于零件图。不需要注出每个零件的全部尺寸,一般只需标注规格尺寸、装配尺寸、安装尺寸、外形尺寸和重要尺寸五大类尺寸。
规格尺寸说明部件规格或性能的尺寸,它是设计和选用产品时的主要依据。如图10-2中的φ50H8就是规格尺寸。
装配尺寸装配尺寸是保证部件正确装配,并说明配合性质及装配要求的尺寸。如图10-2中86
、60
及连接螺栓中心距等都属于装配尺寸。
安装尺寸将部件安装到其它零、部件或基础上所需要的尺寸。如图10-2中地脚螺栓孔的尺寸等属于安装尺寸。
外形尺寸机器或部件的总长、总宽和总高尺寸,它反映了机器或部件的体积大小,以提供该机器或部件在包装、运输和安装过程中所占空间的大小。如图10-2中的236、121和76即是外形尺寸。
其它重要尺寸除以上四类尺寸外,在装配或使用中必须说明的尺寸,如运动零件的位移尺寸等。
需要说明的是,装配图上的某些尺寸有时兼有几种意义,而且每一张图上也不一定都具有上述五类尺寸。在标注尺寸时,必须明确每个尺寸的作用,对装配图没有意义的结构尺寸不需注出。
(4)装配图中的零、部件编号
在生产中,为便于图纸管理、生产准备、机器装配和看懂装配图,对装配图上各零、部件都要编注序号和代号。序号是为了看图方便编制的,代号是该零件或部件的图号或国标代号。零、部件图的序号和代号序号和要和明细栏中的序号和代号序号和相一致,不能产生差错。
【一般规定】装配图中所有的零、部件都必须编注序号,规格相同的零件只编一个序号,标准化组件如滚动轴承、电动机等,可看作一个整体编注一个序号;
同一张装配图中,相同的零、部件编注同样的序号。装配图中零件序号应与明细表中的序号一致。
【序号的组成】装配图中的序号一般由指引线(细实线)、圆点(或箭头)横线(或圆圈)和序号数字组成。指引线不要与轮廓线或剖面线等图线平行,指引线之间不允许相交,但指引线允许弯折一次。指引线末端不便画出圆点时,可在指引线末端画出箭头,箭头指向该零件的轮廓线。序号数字比装配图中的尺寸数字大一号或大两号。
(5)标题栏和明细表:
标题栏格式由GB/T10609.1-1989确定,明细栏则按GB/T10609.2-1989规定绘制。
(6)常见的装配工艺结构
为了避免装配时表面互相发生干涉,两零件在同一方向上只应有一个接触面。
两零件有一对相交的表面接触时,在转角处应制出倒角、圆角、凹槽等,以保证表面接触良好。
零件的结构计设要考虑维修时拆卸方便。
有螺纹连紧固件的地方要留足装拆的活动空间。
(7)机器上的常见装置
螺纹防松装置
滚动轴承的固定装置
密封装置
第二讲 部件测绘(1)
1.知识要点
1)部件测绘方法
2)测绘滑动轴承
2.教学方法
结合滑动轴承部件的测绘介绍部件测绘的方法和步骤,进一步巩固上一讲学习的有关装配图的知识。利用课件、模型和黑板图等多种手段组织教学,不要机械的放映课件中的幻灯片。
3.课前准备
准备学生测绘用的模型、图纸和量具。熟悉课件和电子挂图的内容。
4.本讲作业测绘滑动轴承部件(不包括油杯)
5.教学内容
(1)部件测绘的方法和步骤
根据现有部件(或机器)画出其装配图和零件图的过程称为部件测绘。在新产品设计、引进先进设备以及对原有设备进行技术改造和维修时,有时需要对现有的机器或零、部件进行测绘,画出装配图和零件图。因此,掌握测绘技术对工程技术人员具有重要意义。部件测绘的一般方法和步骤如下:
1)了解和分析部件结构 部件测绘时,首先要对部件进行研究分析,了解其工作原理、结构特点和装配关系。
2)画出装配示意图 装配示意图用来表示部件中各零件的相互位置和装配关系,是部件拆卸后重新装配和画装配图的依据。装配示意图有以下特点:
①只用简单的符号和线条表达部件中各零件的大致形状和装配关系;
②一般零件可用简单图形画出其大致轮廓,形状简单的零件如螺钉、轴等可用线段表示,其中常用的标准件如轴承、键等可用国标规定的示意符号表示;
③相邻两零件的接触面或配合面之间应留有间隙;
④全部零件应进行编号,并填写明细栏。
3)拆画零件 拆画零件前要研究拆卸方法和拆卸顺序,机械设备的拆卸顺序一般是由附件到主机,由外部到内部,由上到下进行拆卸。拆卸时要遵循“恢复原机”的原则,即在开始拆卸时就要考虑再装配时要与原机相同,即保证原机的完整性、准确性和密封性。外购部件或不可拆的部分,如过盈配合的衬套、销钉、机壳上的螺柱,以及一些经过调整、拆开后不易调整复位的零件,应尽量不拆,不能采用破坏性拆卸方法。拆卸前要测量一些重要尺寸,如运动部件的极限位置和装配间隙等。拆卸后要对零件进行编号、清洗,并妥善保管,以免丢失。
4)画零件草图 零件草图一般是在测绘现场徒手绘制的,草图的比例是凭眼睛判断的,所以绘制草图时只要求与被测零件大体上符合,并不要求与被测零件保持某种严格的比例。绘制草图时应注意以下几点:
①零件视图表达要完整、线形分明、尺寸标注正确、公差配合、形位公差的设计选择合理;
②对所有非标准件均要绘制零件草图,零件草图应包括零件图的所有内容,标题栏内要记录零件的名称、材料、数量、图号等;
③草图要忠实于实物,不得随意更改,更不能凭主观猜测,零件上一些细小的结构,如孔口、轴端倒角、小圆角、沟槽、退刀槽、凸台和凹坑等。对设计不合理之处,将来在零件图上更改;
④优先测绘基础零件,基础零件一般都比较复杂,与其它零件相关联的尺寸较多,部件装配时常以基础件为核心,将相关的零件装配其上,所以,应特别重视基础件的尺寸测量、精度等要准确无误;
⑤草图上允许标注封闭尺寸和重复尺寸,这是为了便于检查测量尺寸的准确性;
⑥草图上较长的线条,可分段绘制,大的圆弧也可分段绘制。
5)根据装配示意图和零件草图画出装配图。
(2)测绘滑动轴承
【拆画零件草图】
1)首先绘制基础零件轴承座的零件草图,
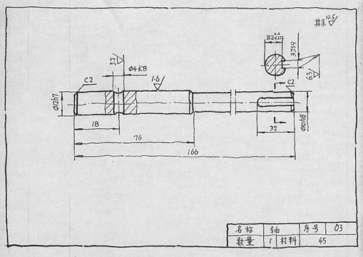
结构分析 滑动轴承座的结构如图10-7所示,其结构具有对称性,主要加工表面为轴孔、定位止口和端面,中间半圆孔的底部是部分外圆柱面。毛坯采用铸件,材料为铸铁。
和其它零件的关系 止口的侧面和盖配合,端面和上下轴瓦配合,轴孔和轴瓦的外圆配合,这些配合尺寸的精度要求较高。盖、座、上下轴瓦通过两个方头螺栓连接在一起,方头螺栓的头部卧在座底部的槽中。
表达方案 采用工作位置为主视图的投影方向,主视图采用半剖视,俯视图不剖,左视图半剖。绘制出的零件草图见图10-9。


图10-7轴承座轴测图图10-8轴承盖轴测图
| 图10-9轴承座草图 |
| 图10-10 轴 承 盖 草 图 | ||
| | | | ||
2)绘轴承盖:
零件分析与研究,滑动轴承盖的结构10-8图所示,其结构具有对称性,主要加工表面为轴孔、定位止口和端面,毛坯采用铸件,材料为铸铁。
和其它零件的关系,轴承盖和轴承座通过止口的侧面定位,所以,止口的侧面是一个配合尺寸,轴承座的槽相当于孔,轴承盖的凸台相当于轴。其内孔和座的内孔一起加工,所以座和盖的轴孔虽是半圆孔,却要按整孔处理。另外,轴孔的端面卡在上下轴瓦的两轴肩之间,是一个配合尺寸,轴瓦轴肩之间的轴向尺寸相当于孔,轴承盖的两端面之间的尺寸相当于轴。装配关系如图所示。
表达方案,主视图投影方向采用工作位置,主、左视图绘制成半剖视,俯视图不剖。绘制的零件草图见图10-10。
3)上、下轴瓦测绘
由同学绘制出轴瓦的零件草图,注意轴瓦与轴承盖和轴承座的相关连尺寸。

图10-11上下轴瓦轴测图
【整理草图】对测绘的零件草图进行加工整理,并在此基础上绘制装配草图,再整理成装配图。绘制出装配图后,根据零件草图和装配图绘制零件工作图。
装配图的作用是表达机器或部件的工作原理、装配关系以及主要零件的结构形状。绘制装配草图时,要以最少的视图,完整、清晰地表达出机器或部件的工作原理和装配关系,所以,绘制装配图时要注意以下几点:
进行部件分析 对要绘制的机器或部件的工作原理、装配关系及主要零件的形状、零件与零件之间的相对位置、定位方式等进行深入细致的分析。
确定主视图 主视图的选择应能较好地表达部件工作原理和主要装配关系,并尽可能按工作位置放置,使主要装配轴线处于水平或垂直位置。
确定其他视图 针对主视图还没有表达清楚的装配关系和零件间的相对位置,选用其他视图给予补充,可采用剖视、断面、拆去某些零件等表达方法。其目的是将装配关系表达清楚。
确定表达方案时可多设计几套方案,通过分析各种表达方案的优缺点选择比较理想的表达方案。滑动轴承的作用是支承旋转轴,主要零件有轴承座、轴承盖和上、下轴瓦,轴承座和轴承盖水平方向由止口定位,竖直方向有轴瓦的外圆定位,装配关系主要表达这四个零件的相对位置和结构形状。
由于结构对称,所以主视图可采用半剖视图,这样既清楚的表达了轴承座和轴承盖由螺栓连接、止口定位的装配关系,也表示了盖和座的外形结构。由于上、下轴瓦与轴承座、轴承盖的轴向装配关系不够清楚,所以配置了左视图和俯视图,根据俯视图和左视图的结构对称,所以也采用了半剖视图,俯视图采用了沿盖和座的结合面剖切的表达方法,其作用除表示下轴瓦与轴承座的关系外,主要表示滑动轴承的外形结构。整理后的零件图和装配图见图10-12、图10-13和图10-2。

图10-12轴承座零件图

图10-13轴承盖零件图 该文章所属专题:AutoCAD机械制图教程
第三讲 部件测绘(2)
本讲介绍齿轮油泵的测绘方法和步骤,教学方法和作业布置和第二讲相同,只是部件的非标准件个数较多。密封结构部分的装配关系要在黑板上演示画图步骤。

图10-14齿轮油泵
【工作原理】齿轮油泵的工作原理如图10-15所示。当主动齿轮作逆时针方向旋转时,带动从动齿轮作顺时针方向的旋转,这时右边啮合的轮齿逐渐分开,右边的空腔体积逐渐扩大,压力降低,机油被吸入,齿隙中的油随着齿轮的旋转被带到左边,而左边的轮齿又重新啮合,空腔体积变小,是齿隙中不断挤出的机油成为高压油,并由出口压出,经管道送到需要润滑的各零件处。
【装配示意图】了解工作原理后,为了简洁的表示其装配关系,需要绘制装配示意图,在绘制装配示意图的同时,将已拆卸下的零件进行编号,若零件较多时,还应当对零件粘贴标签。对标准件只需测量其公称尺寸,然后从有关的国家标准中查出其规格、标准代号;对非标准件要绘制草图,确定其材料、毛坯制造方法等,制成明细表,作为将来绘制装配草图的依据。如图10-16所示。
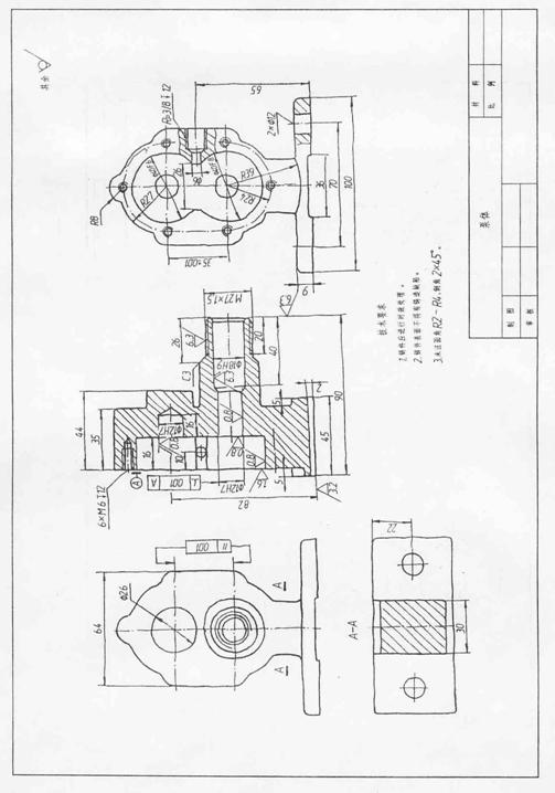
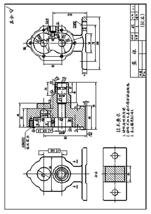
【测绘零件】齿轮油泵的基础零件是泵体,其它主要零件有泵盖、齿轮和轴、压盖螺母等。这些零件都要绘制出零件草图。我们首先测绘泵体,然后测绘泵盖,齿轮、轴和压盖螺母。其零件草图见图10-17、图10-18、图10-19、图10-20、图10-21。
【绘制装配图】根据装配示意图和零件草图,绘制装配图,如图10-22所示。
【绘制零件工作图】根据画好的装配图和零件测绘草图,绘制出非标准件的零件工作图,在绘制零件工作图时,原来草图上的一些结构和数据需要调整的要进行调整。绘制好的泵体零件图如图10-23所示。

图10-15齿轮油泵工作原理

图10-16齿轮油泵装配示意图
| 图10-17泵体零件草图 |

图10-18泵盖零件草图

图10-19齿轮零件草图

图10-20轴零件草图

图10-21压盖螺母零件草图
| 图10-22齿轮油泵装配图 |
| 图10-23泵体零件图 |
该文章所属专题:AutoCAD机械制图教程
第四讲 读装配图
1.知识要点
(1)读装配图的方法和步骤
(2)由装配图拆画零件图
(3)由零件图拼画装配图
2.教学方法
本讲采用课件讲解,拆画装配图和拼画装配图使用AutoCAD软件在课堂上演示绘图过程,拆画装配图以阀为例,拼画装配图以四通阀为例。
3.课前准备
熟练使用AutoCAD软件拆画零件图、拼画装配图。
4.本讲作业习题集上的相关作业
5.教学内容
(1)读装配图的方法和步骤
不同的工作岗位看图的目的是不同的,有的仅了解机器或部件的用途和工作原理;有的要了解零件的连接方法和拆卸顺序;有的要拆画零件图等。一般来说,应按以下方法和步骤读装配图。
概括了解从标题栏和有关的说明书中了解机器或部件的名称和大致用途,从明细栏和图中的序号了解了解机器或部件的组成。
对视图进行初步的分析,明确装配图的表达方法、投影关系和剖切位置,并结合标注的尺寸想象出主要零件的结构形状。
图10-24为阀的装配图,该部件装配在液体管路中,用以控制管路的通与不通,采用了主视图(全剖)、俯视图(全剖)、左视图和B向局部视图的表达方法,有一条装配轴线,部件通过阀体上的G1/2螺纹孔、φ12螺栓孔和管接头上的G3/4螺纹孔装入液体管路中。
分析工作原理和装配关系在概括了解的基础上,应对照各视图进一步研究机器或部件的工作原理和装配关系,从反映工作原理的视图入手,分析机器或部件中零件的运动情况,从而了解机器或部件的工作原理,从反映装配关系的的视图入手,分析各条装配轴线,弄清零件相互间的配合要求、定位和连接方式等。
图10-24所示阀的工作原理从主视图上看最清楚,当旋转塞子2推动杆1向左压钢球4时,管路接通;当旋转塞子向右移动时,钢球在弹簧5作用下,向右运动关闭管路,用旋塞7可以调节弹簧的压力。装配时先将钢球和弹簧装入管接头6中,然后旋入旋塞7,调整好压力后,再将管接头旋入阀体左侧M30×1.5的螺孔中,右侧将杆1装入塞子2中,在将塞子旋入阀体右侧M30×1.5的螺孔中。杆1和管接头2径向有
分析零件结构,对主要的复杂零件进行投影分析,想象出其主要形状及结构,必要时拆画出其零件图。
1;所有标注为智造资料网zl.fbzzw.cn的内容均为本站所有,版权均属本站所有,若您需要引用、转载,必须注明来源及原文链接即可,如涉及大面积转载,请来信告知,获取《授权协议》。
2;本网站图片,文字之类版权申明,因为网站可以由注册用户自行上传图片或文字,本网站无法鉴别所上传图片或文字的知识版权,如果侵犯,请及时通知我们,本网站将在第一时间及时删除,相关侵权责任均由相应上传用户自行承担。
[complaint:内容投诉]
智造资料网打造智能制造3D图纸下载,在线视频,软件下载,在线问答综合平台 » 十、装配图|AutoCAD机械制图教程(图文教程)







