在做室内装修设计的时候,电视背景墙往往是我们需要考虑的重点。
1.打开平面布置图。

2.复制一份,主要复制电视墙区域。

3.矩形选框框选电视墙区域。

4.删除选框意外的线条。

5.旋转90度,让我们正对电视墙。

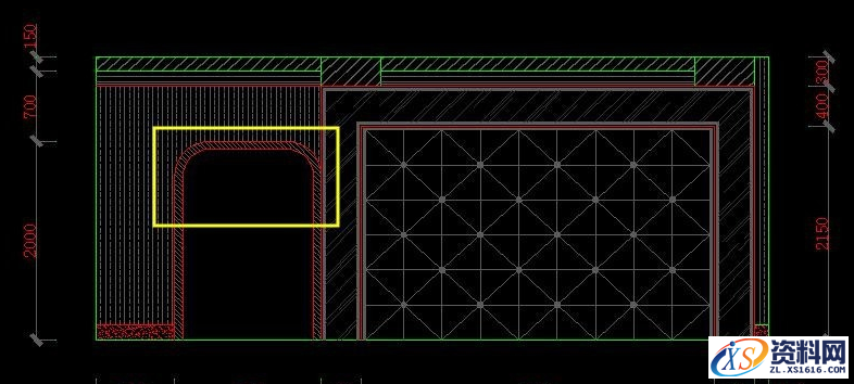
6.在下方画基准线,作为墙角线。

7.参考平面截图,用辅助线画好墙面设施情况。

8.删除多余的线条,墙面原始结构就出来了。

9.绘制出踢脚线位置。

10.绘制吊顶剖面造型。

11.流出窗帘盒位置,墙面墙纸部分填充表示。

12.绘制出弧形门套。

13.绘制不锈钢包边线条。

14边框镜面用填充表示。

15.中间软包自己绘制表示。

16.标注尺寸。

17.文字说明

免责声明:
1;所有标注为智造资料网zl.fbzzw.cn的内容均为本站所有,版权均属本站所有,若您需要引用、转载,必须注明来源及原文链接即可,如涉及大面积转载,请来信告知,获取《授权协议》。
2;本网站图片,文字之类版权申明,因为网站可以由注册用户自行上传图片或文字,本网站无法鉴别所上传图片或文字的知识版权,如果侵犯,请及时通知我们,本网站将在第一时间及时删除,相关侵权责任均由相应上传用户自行承担。
[complaint:内容投诉]
智造资料网打造智能制造3D图纸下载,在线视频,软件下载,在线问答综合平台 » 运用AutoCAD绘制电视背景墙的画法教程
1;所有标注为智造资料网zl.fbzzw.cn的内容均为本站所有,版权均属本站所有,若您需要引用、转载,必须注明来源及原文链接即可,如涉及大面积转载,请来信告知,获取《授权协议》。
2;本网站图片,文字之类版权申明,因为网站可以由注册用户自行上传图片或文字,本网站无法鉴别所上传图片或文字的知识版权,如果侵犯,请及时通知我们,本网站将在第一时间及时删除,相关侵权责任均由相应上传用户自行承担。
[complaint:内容投诉]
智造资料网打造智能制造3D图纸下载,在线视频,软件下载,在线问答综合平台 » 运用AutoCAD绘制电视背景墙的画法教程

