一.制品分析
香水盒产品图如图1所示。塑件材料为PP,缩水率为1.016,塑件平均壁厚为1.30mm,塑件最大外形尺寸为110.08mmX 103.99mmX 50.49mm.塑件质量31.25从图1可以看出,塑件基本形状为轮辐状壳体,外侧有一圈凹槽,沿凹槽有3条骨位,在圆周呈90゜分布,另一角有一个空心圆柱。凹槽需要设计滑块成型。塑件上下各有一段螺纹,外螺纹一般不需要设计自动脱螺纹机构,通过滑块可以解决其脱模问题。
香水盒属于化妆品包材类塑料件,精致的外表是基本要求,塑件尺寸精度和螺纹均要满足装配要求。因此塑件必须避免各种注射成型的缺陷,保证塑件质量。

图1-1香水盒 产品图

图1-2香水盒2D产品图
二.模具设计要点
1.模具排位:香水盒产品生产批量较大,且需要设计滑块抽芯。出模数量为1出4,从模具结构出发,型腔排位采取直线型排位。模胚规格为非标模架4880.为了保证模具精度,模架上精框、滑块槽、铲机槽等全部由模架厂加工,减少变形。

图2 香水盒模具设计图
2.浇注系统设计:
整套模具采用了细水口转潜伏式浇口进胶。熔融塑料自短小主流道进入分型面后,分2点通过潜伏式浇口在塑件内圆进胶。开模时,为确保水口料能分离,设计了弹销弹动水口料。 现在很多学习模具设计的小伙伴越来越多,很多人问我有没有资料,第一本书看什么比较好,根据你们的需求,我将一些模具设计的资料进行了分类管理,希望你们能在模具行业前途无量。私信回复我“资料"即可领取 !

图3 香水盒模具设计图
3.侧向分型机构设计:
塑件的圆周凹槽,通过2个哈弗滑块抽芯解决。每个滑块采用2支斜导柱驱动,斜楔设计在模具上原身留出,增加滑块锁模力。为了节省空间,每个滑块负责两个型腔,因此滑块较长,为了使其滑动顺畅,在每个滑块的中心设计了导向条。


图4 香水盒模具设计图
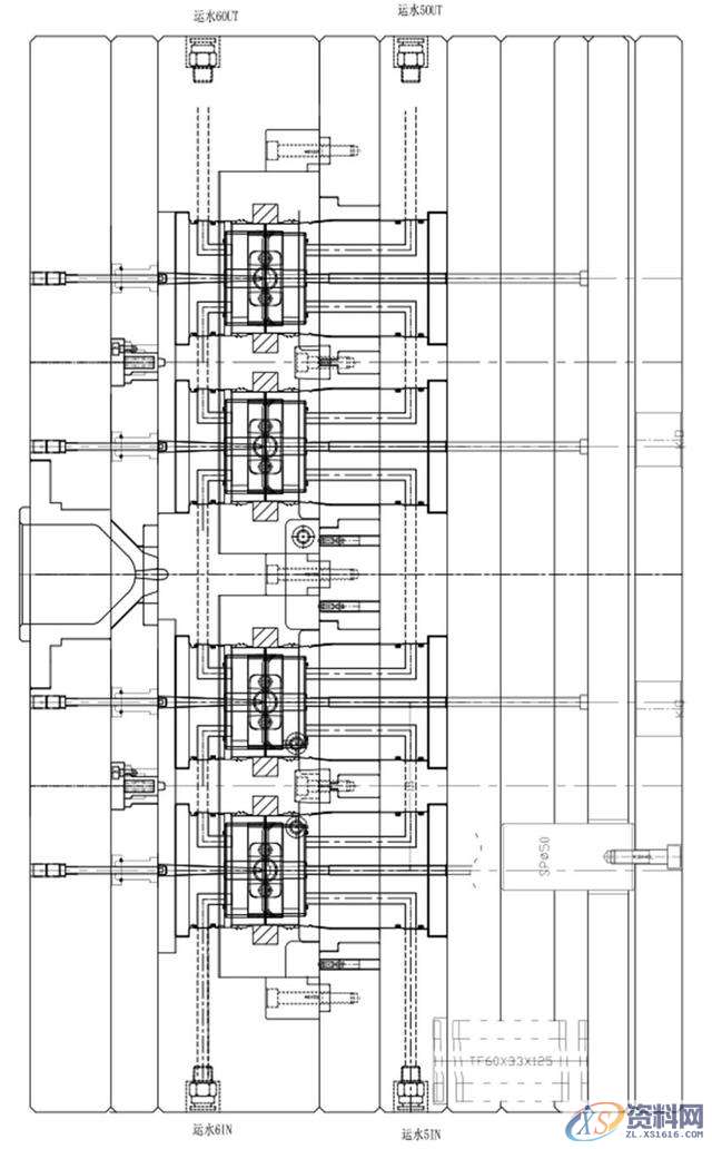
三. 冷却:
整套模具设计了良好的冷却系统,动模、定模和滑块分别设计了冷却回路,见模具设计图2.圆形镶件的冷却,采用圆周密封圈密封,注意需要在镶件的外周设计台阶,避免密封圈被挤破。
四.加工精度:
对于前后模芯圆形的情形,塑件的同心度非常重要。这种情形下,模具的精度往往在于前后模芯孔的加工精度,一般要求为同心度不大于0.015,这是多腔模具设计的基础。
五. 塑件顶出:
塑件的壁厚较小,骨位较深,包紧力较大,内部空间较小,因此设计了推板顶出,可以保证塑件在顶出时不至于变形。

图5香水盒模具设计图
东莞潇洒职业培训学校目前开设课程有:学历提升、积分入户、数控编程培训、塑胶模具设计培训,压铸模具设计培训、冲压模具设计培训,精雕、ZBrush圆雕培训、Solidworks产品设计培训、pro/E产品设计培训、AutoformR7工艺分析培训,非标自动化设计、PLC编程、CNC电脑锣操机、平面设计等培训,潇洒职业培训学校线下、线上等网络学习方式,随到随学,上班学习两不误,欢迎免费试学!
联系电话:13018636633(微信同号) QQ:1740467385
学习地址:东莞市横沥镇
1;所有标注为智造资料网zl.fbzzw.cn的内容均为本站所有,版权均属本站所有,若您需要引用、转载,必须注明来源及原文链接即可,如涉及大面积转载,请来信告知,获取《授权协议》。
2;本网站图片,文字之类版权申明,因为网站可以由注册用户自行上传图片或文字,本网站无法鉴别所上传图片或文字的知识版权,如果侵犯,请及时通知我们,本网站将在第一时间及时删除,相关侵权责任均由相应上传用户自行承担。
[complaint:内容投诉]
智造资料网打造智能制造3D图纸下载,在线视频,软件下载,在线问答综合平台 » 塑胶模具设计之有一定难度香水盒的设计方法

