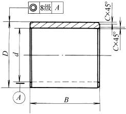
铜合金整体轴套薄壁系列的尺寸

内径d | 外径D | 宽度B | 倒角C |
| 内径d | 外径D | 宽度B | 倒角C |
6 | 10 | 6,8,10 | 0.3 |
| 60 | 70 | 40,45,50,55,60,65,70,75,80 | 0.8 |
8 | 12 | 6,8,10,12 | 65 | 75 | 45,50,55,60,65,70,75,80 | 1.0 | ||
10 | 14 | 6,8,10,12,16 | 70 | 80 | 45,50,55,60,65,70,75,80,90 | |||
12 | 16 | 8,10,12,16,20 | 75 | 85 | 50,55,60,65,70,75,80,90 | |||
14 | 18 | 8,10,12,16,20,25 | 80 | 90 | 55,60,65,70,75,80,90,100 | |||
16 | 20 | 12,16,20,25 | 85 | 95 | 55,60,65,70,75,80,90,100 | |||
18 | 22 | 12,16,20,25,30 | 90 | 105 | 55,60,65,70,75,80,90,100,120 | |||
20 | 24 | 16,20,25,30,35 | 95 | 110 | 60,65,70,75,80,90,100,120 | |||
22 | 26 | 16,20,25,30,35 | 100 | 115 | 75,80,90,100,120 | |||
25 | 30 | 16,20,25,30,35,40 | 105 | 120 | 75,80,90,100,120 | |||
28 | 34 | 20,25,30,35,40,45 | 110 | 125 | 80,90,100,120 | |||
30 | 36 | 20,25,30,35,40,45 | 120 | 135 | 100,120,150 | |||
32 | 38 | 20,25,30,35,40,45 | 0.8 | 130 | 145 | 100,120,150 | 2.0 | |
35 | 42 | 25,30,35,40,45,50 | 140 | 155 | 100,120,150,180 | |||
38 | 45 | 20,30,35,40,45,50,55 | 150 | 165 | 120,150,180 | |||
40 | 48 | 25,30,35,40,45,50,55,60 | 160 | 180 | 120,150,180 | |||
42 | 50 | 25,30,35,40,45,50,55,60,65 | 170 | 190 | 120,150,180,200 | |||
45 | 53 | 30,35,40,45,50,55,60,65 | 180 | 200 | 150,180,200,250 | |||
48 | 56 | 35,40,45,50,55,60,65 | 190 | 210 | 150,180,200,250 | |||
50 | 58 | 35,40,45,50,55,60,65 | 200 | 220 | 180,200,250 | |||
55 | 63 | 35,40,45,50,55,60,65,70 |
|
|
|
1;所有标注为智造资料网zl.fbzzw.cn的内容均为本站所有,版权均属本站所有,若您需要引用、转载,必须注明来源及原文链接即可,如涉及大面积转载,请来信告知,获取《授权协议》。
2;本网站图片,文字之类版权申明,因为网站可以由注册用户自行上传图片或文字,本网站无法鉴别所上传图片或文字的知识版权,如果侵犯,请及时通知我们,本网站将在第一时间及时删除,相关侵权责任均由相应上传用户自行承担。
[complaint:内容投诉]
智造资料网打造智能制造3D图纸下载,在线视频,软件下载,在线问答综合平台 » 铜合金整体轴套薄壁系列的尺寸(图文教程)

