铜合金带挡边整体轴套的尺寸(图文教程)

    铜合金带挡边整体轴套的尺寸

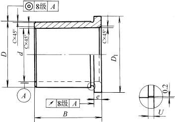
铜合金带挡边整体轴套的尺寸(图文教程),铜合金带挡边整体轴套的尺寸,尺寸,0.5,第1张

d

D

D1

e

C

U

B

 

d

D

D1

e

C

U

B

6

12

14

3

0.3

1

6,8,10

 

60

75

83

7.5

0.8

2

40,45,50,55,60,65,70,75,80

8

14

18

6,8,10,12

65

80

88

1.0

45,50,55,60,65,70,75,80

10

16

20

6,8,10,12,16

70

85

95

45,50,55,60,65,70,75,80,90

12

18

22

0.5

8,10,12,16,20

75

90

100

3

50,55,60,65,70,75,80,90

14

20

25

10,12,16,20,25

80

95

105

55,60,65,70,75,80,90,100

16

22

28

1.5

12,16,20,25

85

100

110

55,60,65,70,75,80,90,100

18

24

30

12,16,20,25,30

90

110

120

10

55,60,65,70,75,80,90,100,120

20

26

32

16,20,25,30,35

95

115

125

60,65,70,75,80,90,100,120

22

28

34

16,20,25,30,35

100

120

130

75,80,90,100,120

25

32

38

4

20,25,30,35,40

105

125

135

75,80,90,100,120

28

36

42

20,25,30,35,40,45

110

130

140

80,90,100,120

30

38

44

2

20,25,30,35,40,45

120

140

150

100,120,150

32

40

46

0.8

20,25,30,35,40,45

130

150

160

2.0

4

100,120,150

35

45

50

5

25,30,35,40,45,50

140

160

170

100,120,150,180

38

48

54

25,30,35,40,45,50,55,60

150

170

180

120,150,180

40

50

58

25,30,35,40,45,50,55,60

160

185

200

12.5

120,150,180

42

52

60

25,30,35,40,45,50,55,60,65

170

195

210

120,150,180,200

45

55

63

30,35,40,45,50,55,60,65

180

210

220

15

150,180,200,250

48

58

66

35,40,45,50,55,60,65

190

220

230

150,180,200,250

50

60

68

35,40,45,50,55,60,65

200

230

240

180,200,250

55

65

73

35,40,45,50,55,60,65,70

 

 

 

 


免责声明:
1;所有标注为智造资料网zl.fbzzw.cn的内容均为本站所有,版权均属本站所有,若您需要引用、转载,必须注明来源及原文链接即可,如涉及大面积转载,请来信告知,获取《授权协议》。
2;本网站图片,文字之类版权申明,因为网站可以由注册用户自行上传图片或文字,本网站无法鉴别所上传图片或文字的知识版权,如果侵犯,请及时通知我们,本网站将在第一时间及时删除,相关侵权责任均由相应上传用户自行承担。
[complaint:内容投诉]
智造资料网打造智能制造3D图纸下载,在线视频,软件下载,在线问答综合平台 » 铜合金带挡边整体轴套的尺寸(图文教程)