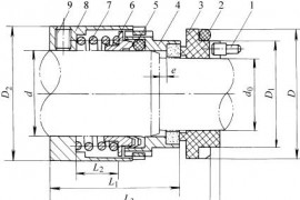
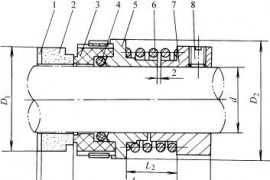
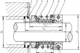
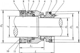
尺寸 第6页