预备知识:
指令: G92螺纹切削循环指令,
格式:G92X-Z-F-(公制螺纹)
G92X-Z-I-(英制螺纹)
说明:X Z-终点的坐标值。
G-螺距(导程)
I-英制螺纹,I是非模态指令。
注意事项:
1)螺纹加工必须设置升速进刀段与降速退刀段,其经验公式如下;
2)主轴转速与螺距是相关联并相制约的,改变主轴转速的百分率,将切出不规则的升速进刀段δ1=S•L/1800x3.065
降速退刀段δ2=S•L/1800
S—主轴转速
L—导程
3)在螺纹加工过程中株主轴倍率有效,但在切螺纹中,如改变了倍率,由于升降速的影响不能切出正确的螺纹。
4)加工螺纹中,进给速度倍率无效,固定在100%。
编程实例:
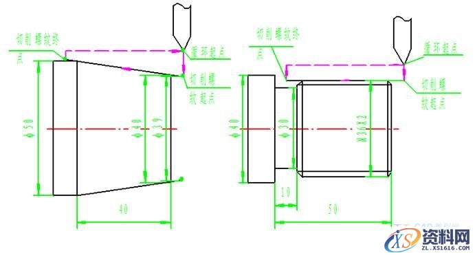
如下图所示。
(1)采用FANUC 0i 系统
(2)采用60°螺纹车刀
(3)加工程序如下:

用G92加工螺纹循环切削程序:
O1234 程序名
N10 G54 G98 用G54设定工件坐标系
N20 M03 S500 主轴正转,500r/min
N30 T0303 选择3号刀具,导入3号刀补
N40 G00 X52 Z5 快速定位
N50 G92 X49 Z-40 I-5.5 F2.0 螺纹循环加工
N60 X48
N70 X47.4
N80 G00 X120 Z50 快速返回起刀点
N90 M05 主轴停转
N100 M30 程序结束
% 程序结束符
扩展知识:(加工见上图)
1、G92加工锥螺纹的指令应用
G92X-Z-R-F-(公制螺纹)
G92X-Z-R-I-(英制螺纹)
说明:X Z-终点的坐标值。
F-螺距(导程)
I-英制螺纹,I是非模态指令
R-循环起点与终点的半径之差。
1;所有标注为智造资料网zl.fbzzw.cn的内容均为本站所有,版权均属本站所有,若您需要引用、转载,必须注明来源及原文链接即可,如涉及大面积转载,请来信告知,获取《授权协议》。
2;本网站图片,文字之类版权申明,因为网站可以由注册用户自行上传图片或文字,本网站无法鉴别所上传图片或文字的知识版权,如果侵犯,请及时通知我们,本网站将在第一时间及时删除,相关侵权责任均由相应上传用户自行承担。
[complaint:内容投诉]
智造资料网打造智能制造3D图纸下载,在线视频,软件下载,在线问答综合平台 » FANUC0i螺纹的循环指令(G92)说明与编程实例(图文教程) ...

